451 The Queensway S, Georgina, Ontario L4P 2C9

Listed for:
$3,333
0 beds
0 baths
Listed 220 days ago
451 The Queensway S, Georgina, Ontario L4P 2C9

View all 8 photos

About

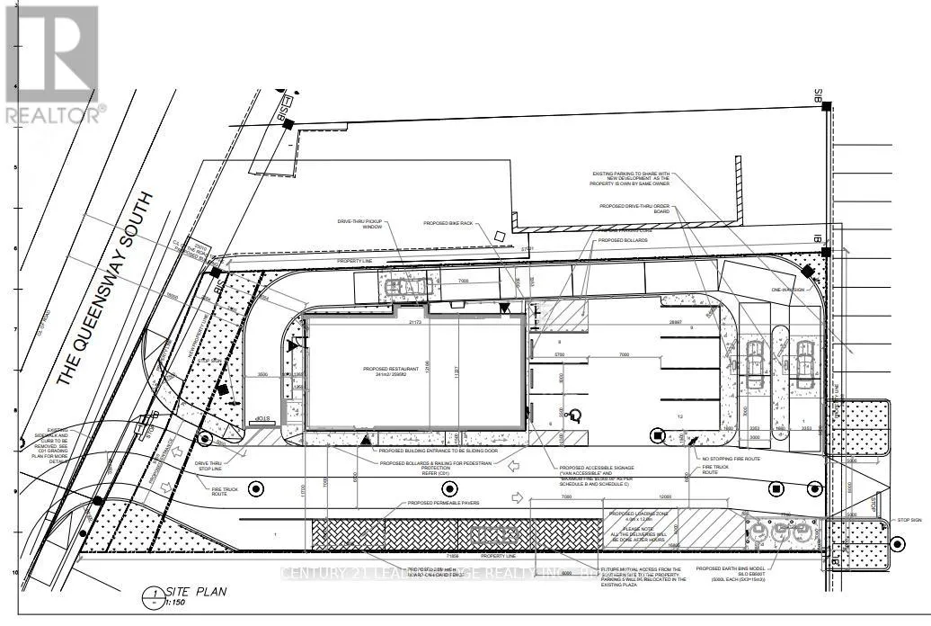
The Queensway S/Glenwoods Ave Prime commercial/retail site land lease located on an arterial road in the heart of Keswick (Combined lot: 451 and 453 The Queensway South). Stand-alone site with no exclusivity restrictions! Surrounded by thousands of homes, schools, and public transit. Adjacent to one of the busiest plaza in town with various franchise restaurants (Frescho, Dollarama, Tim Hortons, Pizza Pizza, Kumon, Global Pets, etc.) and retail shops. This site is ideal for private or franchise Quick Service Restaurants w/ drive-thru. Competitive rent w/ long term lease available. Site plan for 2595sqft w/ drive-thru and ample overflow parking available. (id:27476)

Property Highlights

MLS® Number
N12071561
Type
Retail
Community Name
Keswick South
Land Size
96.72 x 236.43 FT ; 236.43ft x 94.8ft x 197.25ft x 96.72ft

Building

Square Footage
2595 sqft
Fireplace Present
No
Basement Type
Basement Features
Building Heating Type
No heat
Heating Fuel
Building Cooling Type
None

Location

Learn more about this property
Listing provided by:
CENTURY 21 LEADING EDGE REALTY INC.
MLS® number:
N12071561
Agent:
Wei Hwa
*Indicates required field
Name is required
Email is required
Please enter a valid phone number (e.g., 416-111-1111).