25154 Valley View Drive, Georgina, Ontario L0E 1R0

Listed for:
$1,799,000
5 beds
5 baths
Listed 28 days ago
House for rent: 25154 Valley View Drive, Georgina, Ontario L0E 1R0

View all 50 photos

Learn more about this property
Listing provided by:
KELLER WILLIAMS REALTY CENTRES
MLS® number:
N12475352
Agent:
Bella Bahadori
*Indicates required field
Name is required
Email is required
Please enter a valid phone number (e.g., 416-111-1111).

About

Cross Streets: Old Homestead & Valley View Dr. ** Directions: Hwy 48 and Old Homestead. Whether your dream is to settle into a forever home, create a thriving Airbnb, or host unforgettable retreats, this one-of-a-kind property offers more than just a home-it's a lifestyle experience only an hour from Downtown Toronto! This fully renovated country retreat combines luxury and functionality on nearly 10 acres of private land. Over $$$ invested in upgrades and renovations over the past three years and have transformed it into a true showcase of modern rural living. The home features 5 bedrooms and 4+1 bathrooms, including two primary suites-one on each floor-making the main level convenient with 2 bedrooms and 2 bathrooms, and the remaining bedrooms upstairs. The spacious living room impresses with cathedral ceilings, large picturesque windows, refinished parquet floors, and a wood-burning fireplace with a custom sunken seating area made from reclaimed barn beams. Additional highlights include a bright kitchen and dining room with direct access to the patio, a main-floor primary suite with a 4-pc ensuite, Jacuzzi, and sunroom with panoramic views, plus a second primary suite with a balcony, wet bar, and 3-pc ensuite. Outdoor features include a large deck with a 12-ft year-round hot tub, private pond, fire pit, and a nearly 400-sqft detached finished studio ideal for office, art, or wellness use. More to explore: a vegetable garden, storage shed, and a fancy custom chicken coop that perfectly complements the property's countryside charm. Located on a quiet cul-de-sac just minutes from Lake Simcoe, Sibbald Point Park, and Jackson's Point,schools, library, restaurants, grocery stores, and golf courses.This property offers the perfect balance of comfort, privacy, and rural elegance. (id:27476)

Property Highlights

MLS® Number
N12475352
Type
Single Family
Community Name
Sutton & Jackson's Point
Ownership Type
Freehold
Land Size
686.5 x 622.4 FT|5 - 9.99 acres
Parking Space Total
10

Building

Building Type
House
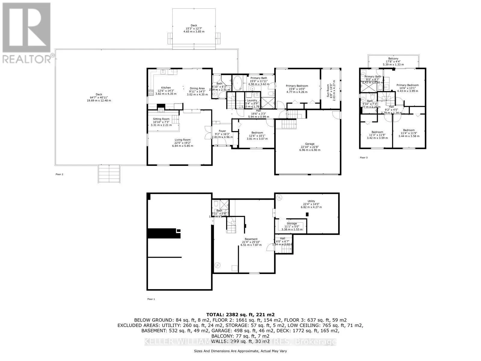
Square Footage
2500 - 3000 sqft
Bathrooms Total
5
Bedrooms Above Ground
5
Bedrooms Total
5
Amenities
Fireplace(s) Beach, Golf Nearby, Schools
Exterior Finish
Brick
Fireplace Present
Yes
Basement Type
N/A (Unfinished)
Basement Features
Building Heating Type
Forced air
Heating Fuel
Propane
Building Cooling Type
Central air conditioning

Utilities

Water
Drilled Well
Utility Sewer
Septic System

Room Layout

Primary Bedroom
Second level
4.43 m x 3.99 m
Bedroom 2
Second level
3.42 m x 3.59 m
Bedroom 3
Second level
3.44 m x 3.58 m
Kitchen
Main level
3.82 m x 4.35 m
Dining room
Main level
3.02 m x 4.35 m
Living room
Main level
6.84 m x 5.85 m
Primary Bedroom
Main level
4.77 m x 4.26 m
Bedroom
Main level
3.81 m x 3.07 m
Laundry room
Main level
1.63 m x 1.76 m
Workshop
Ground level
7.92 m x 4.5 m

Location

Community Spotlight: Homes For sale in Your Neighborhood