40-a Riverglen Drive, Georgina, Ontario L4P 2R1

Listed for:
$599,900
0 beds
0 baths
Listed 62 days ago
40-a Riverglen Drive, Georgina, Ontario L4P 2R1

View all 11 photos

About

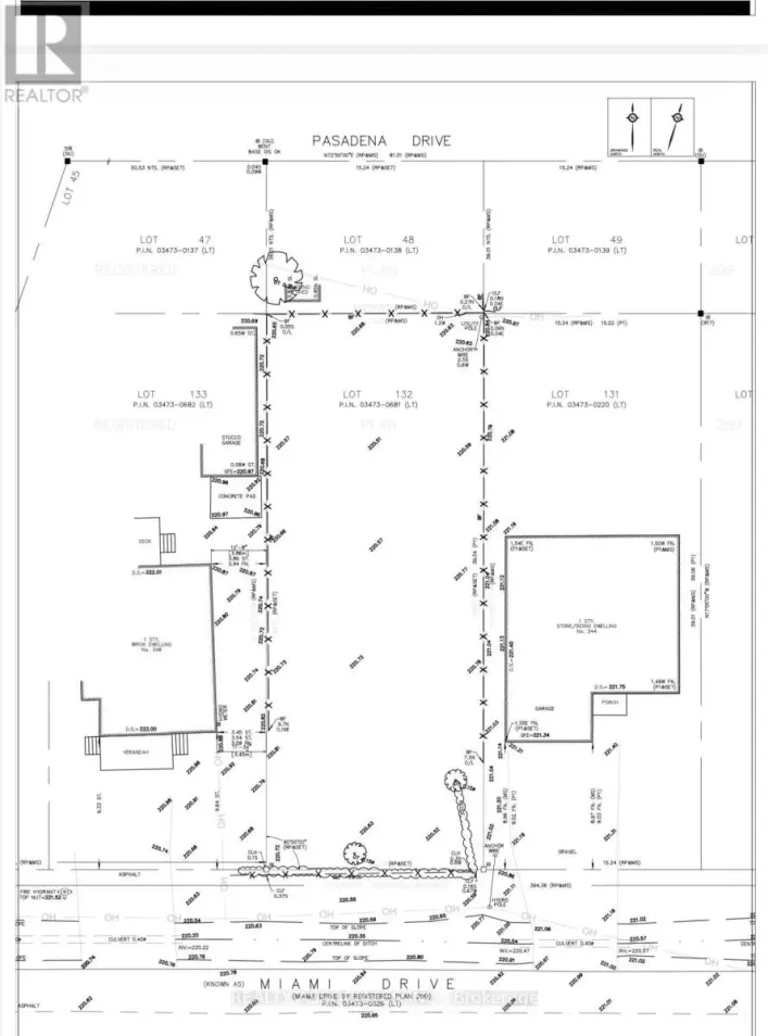
The Queensway & Riverglen Build your dream home on this beautiful 114' X 431' private riverfront lot. Over an acre, in town and on the water is definitely a rare find! Potential to sever into 2 building lots. Water & sewers are not installed to the lot line. Regulated by the L.S.R.C.A. Buyer to do their own due diligence. **EXTRAS** 72 hours upon solicitors approval at the Sellers Estates direction (id:27476)

Property Highlights

MLS® Number
N12888462
Type
Vacant Land
Community Name
Keswick South
Land Size
114 x 431 FT|1/2 - 1.99 acres

Building

Square Footage
0 - 699 sqft
Amenities
Golf Nearby, Marina, Park, Public Transit
Fireplace Present
No
Basement Type
Basement Features
Building Heating Type
Heating Fuel
Building Cooling Type

Location

Learn more about this property
Listing provided by:
RE/MAX ALL-STARS REALTY INC.
MLS® number:
N12888462
Agent:
Wayne M. Winch
*Indicates required field
Name is required
Email is required
Please enter a valid phone number (e.g., 416-111-1111).