182 Shearwater Trail, Goderich), Ontario N7A 0C3

Listed for:
$899,000
5 beds
4 baths
Listed 12 days ago
House for rent: 182 Shearwater Trail, Goderich), Ontario N7A 0C3

View all 44 photos

About

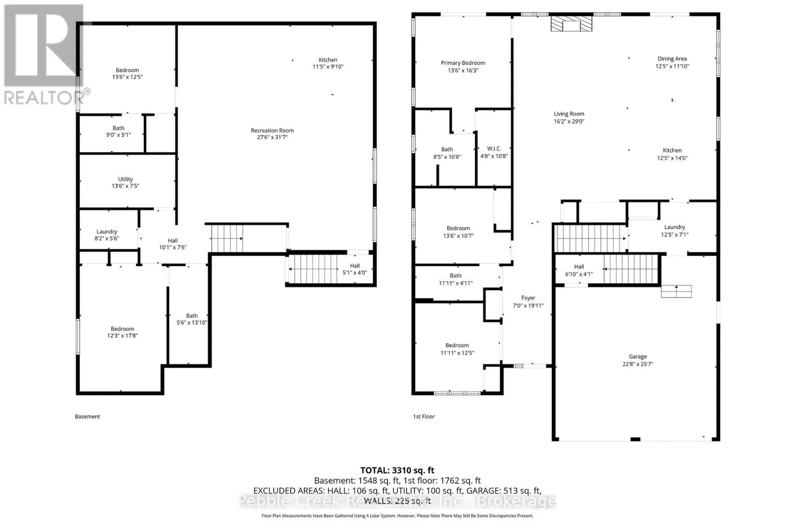
Cross Streets: Warren St. ** Directions: From Hwy 21 S, turn left on Suncoast Dr W, turn left on Eldon St S, turn right onto Brimicombe Crescent, turn left onto Bethune Crescent, turn left onto Warren St, turn left onto Shearwater Trail. Welcome to 182 Shearwater Trail - a stunning executive home located in the highly sought-after community of The Coast in Goderich. This home offers 5 bedrooms and 4 bathrooms with almost 3500 sq ft of living space. The main level offers 3 spacious bedrooms, including a master bedroom complete with a walk- in closet and an ensuite bathroom. Enjoy the bright, open-concept layout featuring a beautifully upgraded fireplace, elegant hardwood flooring, and large windows that fill the home with natural light. The fully finished basement consist a separate entrance through the garage. It features 9-foot ceilings, 2 large bedrooms with ensuite bathrooms and its own open-concept kitchen and living space - ideal for extended family or potential rental income. Additional highlights include a double car garage and a generous backyard, perfect for relaxing or entertaining. Nestled in a quiet neighbourhood, this home is just minutes from the lake, downtown amenities, shopping, schools, and recreation. Offered at $899,000, this property is truly priced to sell. Whether you're looking for a place to call home, an investment opportunity, or both - this is one you won't want to miss! (More pictures coming soon!) (id:27476)

Property Highlights

MLS® Number
X12905964
Type
Single Family
Community Name
Goderich (Town)
Ownership Type
Freehold
Land Size
59.1 x 147.6 FT
Parking Space Total
4

Building

Building Type
House
Storeys
1.00
Square Footage
1500 - 2000 sqft
Bathrooms Total
4
Bedrooms Above Ground
3
Bedrooms Total
5
Exterior Finish
Brick
Fireplace Present
Yes
Basement Type
Full
Basement Features
Apartment in basement
Building Heating Type
Forced air
Heating Fuel
Natural gas
Building Cooling Type
Central air conditioning, Ventilation system

Utilities

Water
Municipal water

Location

Learn more about this property
Listing provided by:
Pebble Creek Real Estate Inc.
MLS® number:
X12905964
Agent:
Karen Terpstra
*Indicates required field
Name is required
Email is required
Please enter a valid phone number (e.g., 416-111-1111).

Community Spotlight: Homes For sale in Your Neighborhood