15 Gore Street, Gore Bay, Ontario P0P 1H0

Listed for:
$479,000
3 beds
2 baths
Listed 94 days ago
House for rent: 15 Gore Street, Gore Bay, Ontario P0P 1H0

View all 94 photos

Learn more about this property
Listing provided by:
BOUSQUET REALTY, BROKERAGE
MLS® number:
2125093
Agent:
Scott Mcdougall
*Indicates required field
Name is required
Email is required
Please enter a valid phone number (e.g., 416-111-1111).

About

This unique stone bungalow, combined with the stone landscaping, and flower gardens gives this property an amazing curb appeal. It is located on a large town lot within easy walking distance to downtown amenities and the local marina. The stone exterior is from the famous Casa Loma castle in Toronto, and the fireplace mantle is an old organ top also from Casa Loma. The fireplace place is the center piece of the large 15 ft. x 31 ft. living room. The basement is unfinished, and offers lot of space for storage, hobbies, and easy access to the mechanicals. Patio doors from the living room lead to a very private back deck. The back yard is totally fenced and there is also a patio with a gazebo. (id:27476)

Property Highlights

MLS® Number
2125093
Type
Single Family
Ownership Type
Freehold
Land Size
1/2 - 1 acre

Building

Building Type
House
Bathrooms Total
2
Bedrooms Total
3
Exterior Finish
Stone
Fireplace Present
No
Basement Type
Full
Basement Features
Building Heating Type
Forced air
Heating Fuel
Building Cooling Type
Central air conditioning

Utilities

Water
Municipal water
Utility Sewer
Municipal sewage system

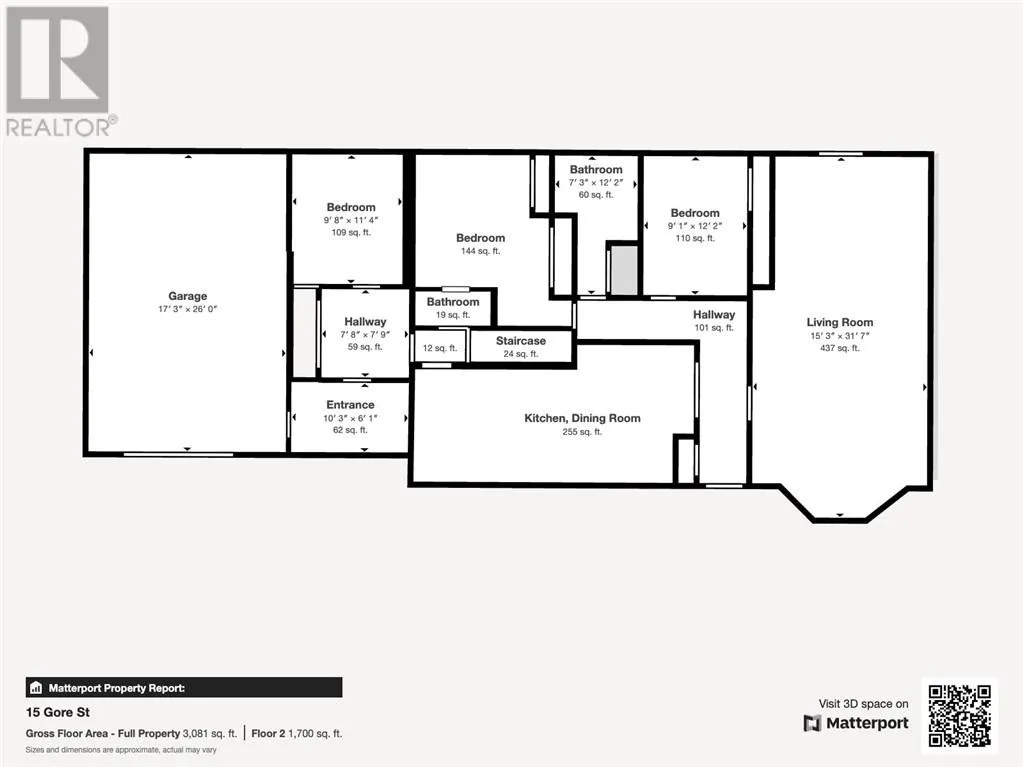
Room Layout

Bedroom
Main level
9'1"" x 12'2""
4pc Bathroom
Main level
7'3"" x 12'2""
2pc Ensuite bath
Main level
Measurements not available
Primary Bedroom
Main level
11' x 12'
Bedroom
Main level
9'8"" x 11'4""
Living room
Main level
15'3"" x 31'7""
Eat in kitchen
Main level
22' x 10'
Foyer
Main level
10'3"" x 6'1""

Location