1 Eleanor Street, Gore Bay, Ontario P0P 1H0

Listed for:
$415,000
0 beds
0 baths
Listed 22 days ago
1 Eleanor Street, Gore Bay, Ontario P0P 1H0

View all 72 photos

About

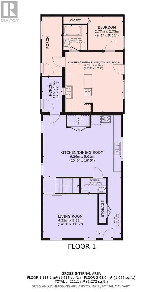
This Tri-Plex is in a prime location in the heart of downtown Gore Bay. There has been many upgrades in recent years including, insulation, electrical service, etc.. It has 2 - 1 bedroom units, with a larger 2-level unit that has 2 bedrooms and a den or possible 3rd bedroom. (Apartment #2 is shown as vacant, but it is currently occupied.) (id:27476)

Property Highlights

MLS® Number
2126854
Type
Multi-family
Ownership Type
Freehold
Land Size
under 1/2 acre

Building

Amenities
Playground, Schools, Shopping
Exterior Finish
Vinyl siding
Fireplace Present
No
Basement Type
Cellar
Basement Features
Building Heating Type
High-Efficiency Furnace, Baseboard heaters
Heating Fuel
Building Cooling Type
None

Utilities

Water
Municipal water
Utility Sewer
Municipal sewage system

Location

Learn more about this property
Listing provided by:
BOUSQUET REALTY, BROKERAGE
MLS® number:
2126854
Agent:
Scott Mcdougall
*Indicates required field
Name is required
Email is required
Please enter a valid phone number (e.g., 416-111-1111).