755 Bethune Drive S, Gravenhurst), Ontario P1P 1K1

Listed for:
$1
0 beds
0 baths
Listed 83 days ago
755 Bethune Drive S, Gravenhurst), Ontario P1P 1K1

View all 4 photos

About

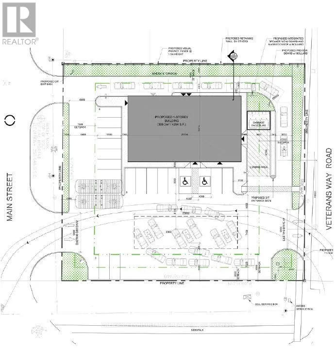
Bethune Dr S / Veterans Way Exceptional 0.70-acre of land with site plan approval for a gas station business and a retail investment development opportunity. The site is approved for a +/- 4,294 SF commercial retail building consisting of three units with an endcap drive-thru wrap around, a three gas pump bar, two underground storage tanks, and 19 parking spaces (2 H. accessible). The property has frontage on three streets along with multiple access points from both Main Street and Veterans Way. Esso-approved location with projected 5 million litres. LOI from petroleum retailers to lease gas bar and c-store for $175,000 + TMI per annum. Preliminary interests from franchise QSR brands for the retail units projecting over $110,000 annual rental income. (id:27476)

Property Highlights

MLS® Number
X12677800
Type
Vacant Land
Community Name
Muskoka (S)
Land Size
0.7 ac
Parking Space Total
19

Building

Square Footage
1 ac
Fireplace Present
No
Basement Type
Basement Features
Building Heating Type
Heating Fuel
Building Cooling Type
None

Utilities

Water
Municipal water

Location

Learn more about this property
Listing provided by:
CREILAND CONSULTANTS REALTY INC.
MLS® number:
X12677800
Agent:
Adam George Watson
*Indicates required field
Name is required
Email is required
Please enter a valid phone number (e.g., 416-111-1111).

Community Spotlight: Homes For sale in Your Neighborhood