90 Roy Street, Greater Sudbury, Ontario P0M 3C0

Listed for:
$500,000
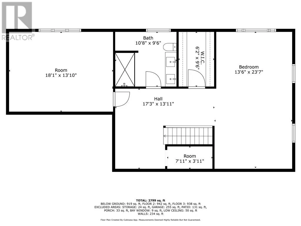
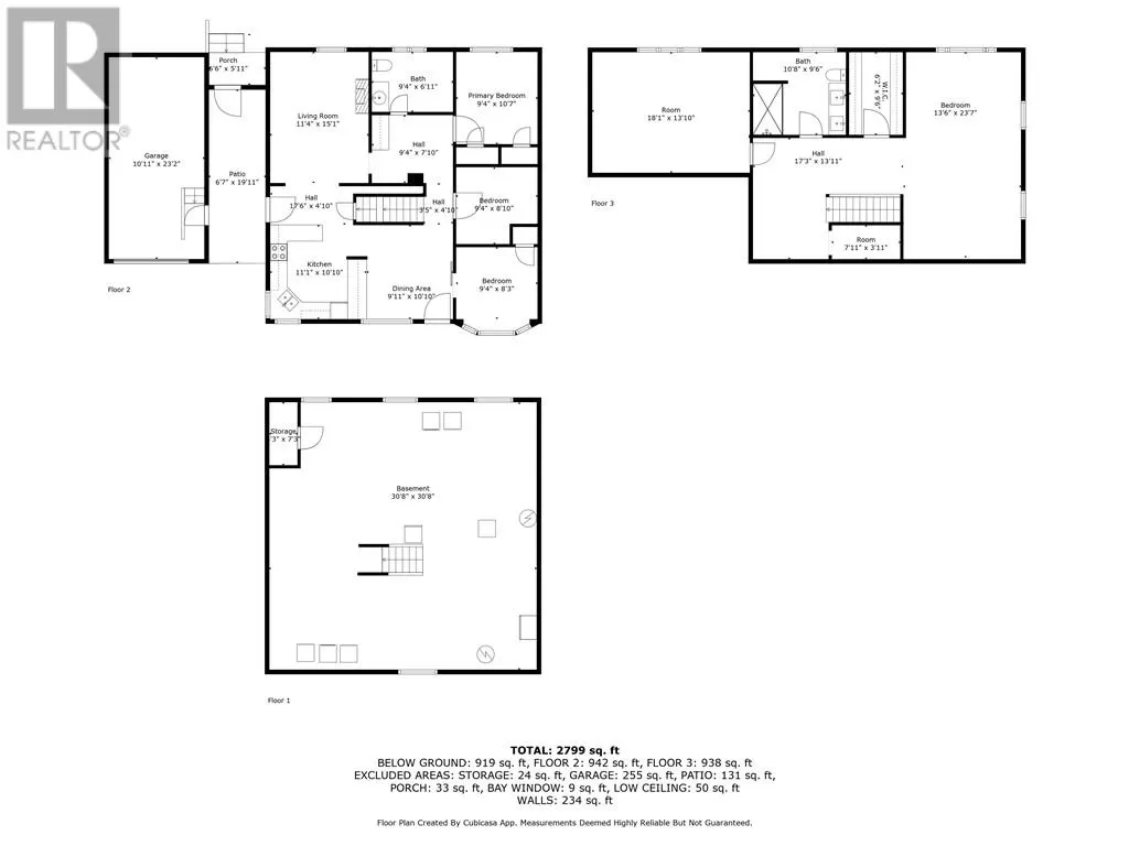
3 beds
2 baths
Listed 96 days ago
House for rent: 90 Roy Street, Greater Sudbury, Ontario P0M 3C0

View all 46 photos

Learn more about this property
Listing provided by:
SUTTON-BENCHMARK REALTY INC., BROKERAGE
MLS® number:
2124082
Agent:
Tyler Peroni
*Indicates required field
Name is required
Email is required
Please enter a valid phone number (e.g., 416-111-1111).

About

Discover your dream waterfront family home on the scenic Wahnapitae River. Nestled at the end of a quiet street, this 3-bedroom, 2-bath property offers almost an acre of land with stunning privacy and versatility. Enjoy a spacious waterfront backyard with your own dock for boating, fishing, or simply relaxing with nature. A rare bonus: an expansive front yard perfect for a playground, garden, or whatever your heart desires. Inside, a bright kitchen with a bay window looks over the yard that is over 300 feet deep! The durable metal roof, attached garage, storage shed, and basement storage add practicality. With mature trees framing both yard spaces, this property is a true retreat for families and nature lovers alike. Located in Wahnapitae, close to amenities yet offering peaceful seclusion. This home blends lifestyle, location, and land in one unbeatable package. (id:27476)

Property Highlights

MLS® Number
2124082
Type
Single Family
Ownership Type
Freehold
Land Size
32,670 - 43,559 sqft (3/4 - 1 ac)

Building

Building Type
House
Storeys
2.00
Bathrooms Total
2
Bedrooms Total
3
Fireplace Present
No
Basement Type
Full
Basement Features
Building Heating Type
Forced air
Heating Fuel
Building Cooling Type

Utilities

Water
Municipal water
Utility Sewer
Municipal sewage system

Room Layout

Kitchen
Main level
12 x 10
Bedroom
Main level
8.5 x 10.2

Location