667 St Clair Street, Greater Sudbury, Ontario P3E 4G9

Listed for:
$715,000
0 beds
0 baths
Listed 43 days ago
667 St Clair Street, Greater Sudbury, Ontario P3E 4G9

View all 31 photos

About

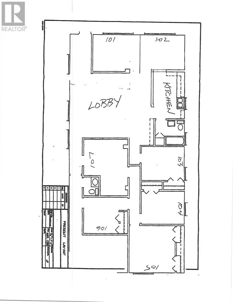
Very well-maintained office building of almost 4200 square feet in quiet residential area. Main floor and basement areas of 2080 square feet each, improved with 7 offices, kitchen, reception area, 3 washrooms, along with newer siding and windows, and newer furnace and central air. Weeping tiles were replaced in 2023, and the site is fully paved with parking at the front and rear. Zoning is R2-3, but we believe the property is legal non-conforming and will work toward obtaining a Letter of Opinion. Building will be vacant at closing. (id:27476)

Property Highlights

MLS® Number
2126668
Type
Office
Ownership Type
Freehold
Land Size
under 1/2 acre

Building

Exterior Finish
Vinyl
Fireplace Present
No
Basement Type
Basement Features
Building Heating Type
High-Efficiency Furnace
Heating Fuel
Building Cooling Type
Central air conditioning

Utilities

Water
Municipal water
Utility Sewer
Municipal sewage system

Location

Learn more about this property
Listing provided by:
ROYAL LEPAGE NORTH HERITAGE REALTY, BROKERAGE
MLS® number:
2126668
Agent:
Paul Kusnierczyk
*Indicates required field
Name is required
Email is required
Please enter a valid phone number (e.g., 416-111-1111).