429528 8th Concession B, Grey Highlands, Ontario N0C 1M0

Listed for:
$845,000
3 beds
3 baths
Listed 174 days ago
House for rent: 429528 8th Concession B, Grey Highlands, Ontario N0C 1M0

View all 50 photos

Learn more about this property
Listing provided by:
RE/MAX Summit Group Realty Brokerage
MLS® number:
X12134872
Agent:
Erin Boynton-seeley
*Indicates required field
Name is required
Email is required
Please enter a valid phone number (e.g., 416-111-1111).

About

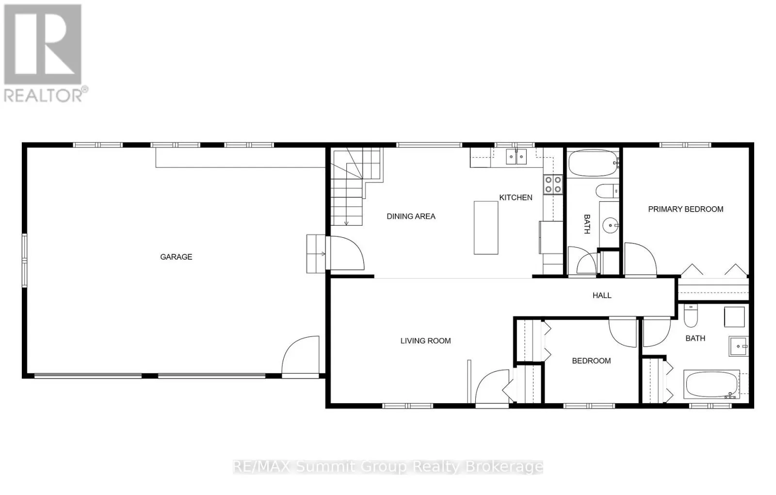
Cross Streets: Grey Rd 124 and Road 31. ** Directions: Go North of Singhampton from Cty Rd 124, on the Osprey-Clearview Townline (Grey Rd 31) then left/west onto 8th Concession B 3 kms to property on the left/south side. Looking for a home that offers space, flexibility, and the kind of setting that makes everyday life feel like a getaway? This 2+1 bedroom, 3 full bath bungalow sits on just under 2 acres, surrounded by mature trees, a peaceful pond, and a natural wetland that welcomes ducks every spring. Just 15 minutes from Collingwood, this property offers the perfect blend of comfort and country charm. Inside, the open-concept main floor is bright and functional. The kitchen, dining, and living areas flow together seamlessly, ideal for both everyday living and entertaining. The primary bedroom is steps from a full bath with a soaker tub. If main floor laundry is important to you, it's included in this space, while the second bedroom has a dedicated bathroom across the hall, creating a thoughtful and flexible layout. The finished walkout basement adds even more versatility. Set up as a self-contained apartment with its own kitchenette, full bath, and 2nd laundry, it's ready for extended family, guests, or a private entertaining space, whatever fits your life best. Step outside, and the lifestyle begins. The oversized 24'x30' garage gives you room for vehicles, tools, or hobbies. A chicken coop offers a chance to enjoy farm-fresh eggs, while an included sea can provides secure extra storage for seasonal gear or equipment. The backyard is private enough that you'll feel completely at ease enjoying the seller's favorite feature, the outdoor shower. Once you've tried it, you'll wonder why you didn't have one all along. The back deck, shaded by a gazebo, is the perfect spot to sit and take it all in. Whether it's morning coffee, an evening drink, or just a quiet moment at the end of the day, the peace and privacy here are what make this place feel like home. (id:27476)

Property Highlights

MLS® Number
X12134872
Type
Single Family
Community Name
Grey Highlands
Ownership Type
Freehold
Land Size
330.1 x 260 FT
Parking Space Total
10

Building

Building Type
House
Storeys
1.00
Square Footage
700 - 1100 sqft
Bathrooms Total
3
Bedrooms Above Ground
3
Bedrooms Total
3
Exterior Finish
Vinyl siding
Fireplace Present
No
Basement Type
Full (Finished)
Basement Features
Building Heating Type
Forced air
Heating Fuel
Propane
Building Cooling Type
None

Utilities

Water
Drilled Well
Utility Sewer
Septic System

Room Layout

Recreational, Games room
Lower level
5.99 m x 7.19 m
Utility room
Lower level
4.19 m x 4.19 m
Bedroom 3
Lower level
3.28 m x 4.01 m
Kitchen
Main level
3.66 m x 2.64 m
Living room
Main level
4.17 m x 3.68 m
Dining room
Main level
3.68 m x 3.07 m
Primary Bedroom
Main level
3.68 m x 3.73 m
Bedroom 2
Main level
2.62 m x 2.84 m

Location

Community Spotlight: Homes For sale in Your Neighborhood