115 Wellington Street, Grey Highlands, Ontario N0C 1C0

Listed for:
$495,000
0 beds
1 baths
Listed 59 days ago
Residential Commercial Mix for rent: 115 Wellington Street, Grey Highlands, Ontario N0C 1C0

View all 50 photos

Learn more about this property
Listing provided by:
RE/MAX Summit Group Realty Brokerage
MLS® number:
X12308014
Agent:
Erin Boynton-seeley
*Indicates required field
Name is required
Email is required
Please enter a valid phone number (e.g., 416-111-1111).

About

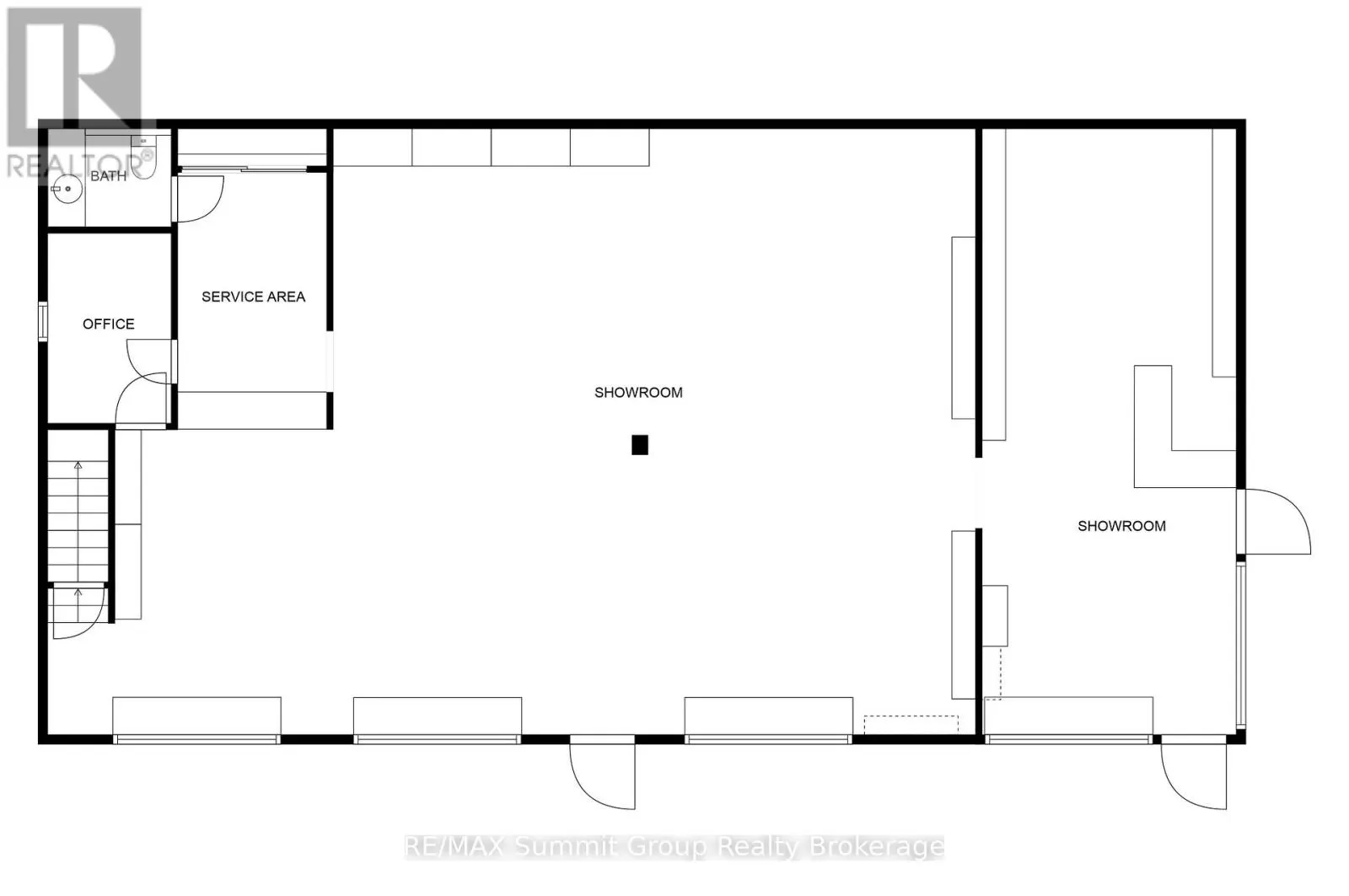
Cross Streets: Grey Road 2 & Wellington Street. ** Directions: From Flesherton, go east on Grey Rd 4, then north/left on Grey Rd 2, then east/right on Wellington St to property on north/left side. Set in the village of Feversham and backing onto the Beaver River, this light industrial property offers endless opportunities for your business. With large front windows, multiple access doors, a side deck, and ample parking, it's an ideal setup for a business that needs both visibility and functionality. The main part of the showroom has a ceiling height of 9.5 ft, while the section known as "Tippy Canoe" features a clearance of 14 ft. Picture a modern kitchen showroom, stone countertops, maybe a dedicated window and door sales space, a siding or garage door showroom, equipment sales, a building supply center, or possibly a yoga or fitness studio. The light industrial zoning permits a variety of uses, including warehousing and wholesaling, assembly and light manufacturing, open storage, equipment sales, and one residence for security or caretaking purposes. Upstairs, an unfinished loft adds future potential. It could be used for staff space, storage, or even a residential unit to help offset expenses. There is currently no well or septic in place. If you've been looking for a versatile property where you can grow your business and create a space that stands out, this is it. (id:27476)

Property Highlights

MLS® Number
X12308014
Type
Retail
Community Name
Grey Highlands
Land Size
100.39 x 133.94 FT
Parking Space Total
7

Building

Building Type
Residential Commercial Mix
Square Footage
2080 sqft
Bathrooms Total
1
Fireplace Present
No
Basement Type
Basement Features
Building Heating Type
Heating Fuel
Building Cooling Type
Fully air conditioned

Location