135260 9th Line, Grey Highlands, Ontario N0C 1H0

Listed for:
$1,599,000
7 beds
4 baths
Listed 53 days ago
House for rent: 135260 9th Line, Grey Highlands, Ontario N0C 1H0

View all 50 photos

Learn more about this property
Listing provided by:
Grey County Real Estate Inc.
MLS® number:
X12346111
Agent:
Eric Robertson
*Indicates required field
Name is required
Email is required
Please enter a valid phone number (e.g., 416-111-1111).

About

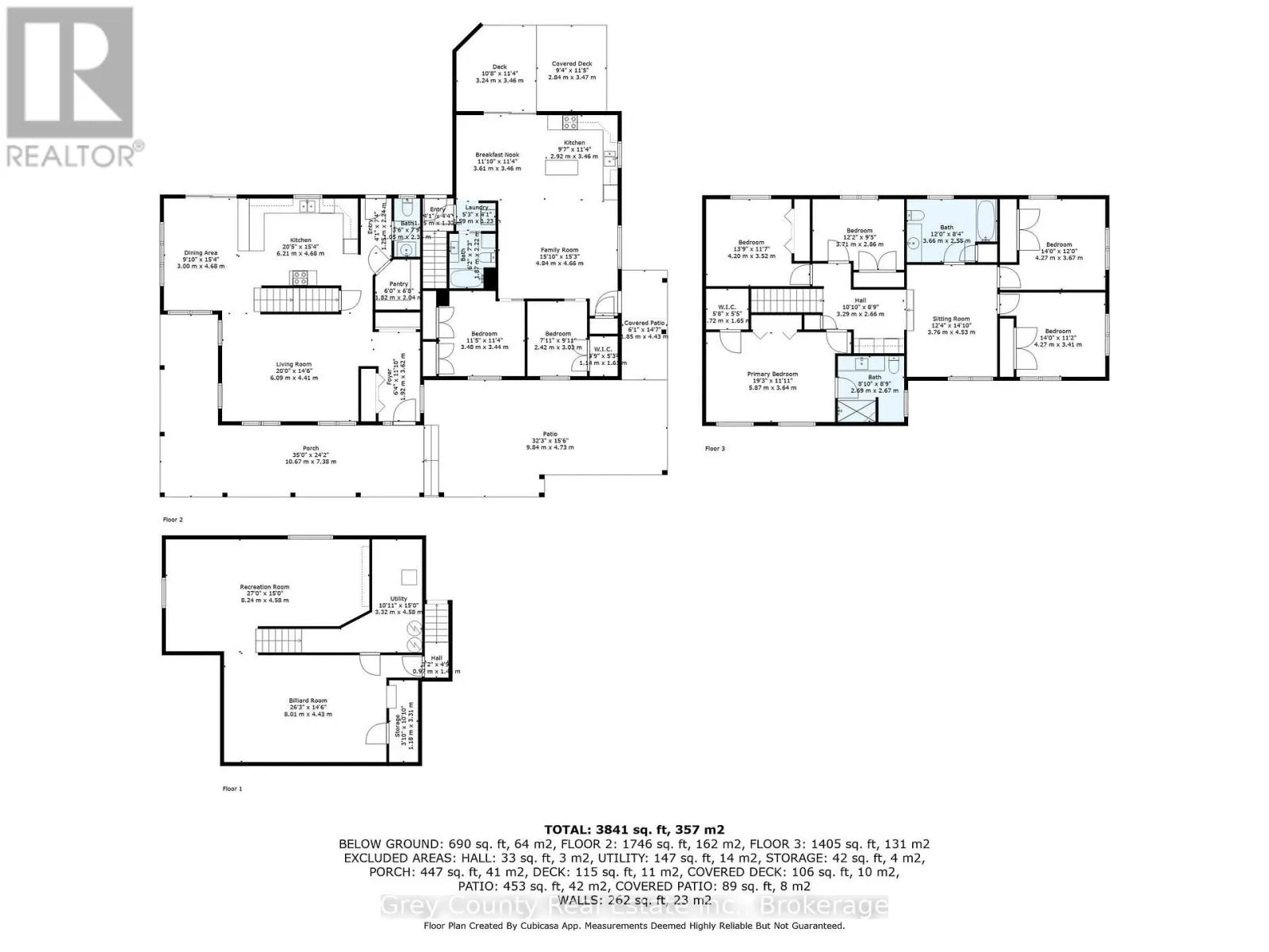
Cross Streets: Grey Rd 30 & 9th Line. ** Directions: From the lights in Markdale go east on Grey Rd 12, Right on Grey Rd 30, Left on 9th Line, follow to sign on Right. Welcome to your own piece of the country, this impressive property offers the space, privacy, and flexibility youve been searching for. Set on 12 beautiful acres, the main home features 5 bedrooms and a warm, inviting layout perfect for both family living and entertaining. Natural light pours through large windows, showcasing the surrounding countryside and creating a bright, airy atmosphere throughout. The spacious kitchen and dining area flow easily into comfortable living spaces, while generous bedrooms and updated bathrooms provide comfort for the whole family. rare highlight of this home is the attached yet completely private 2-bedroom in-law suite. With its own entrance, full kitchen, living area, and bath, this self-contained space is ideal for multi-generational living, guest accommodations, or even rental potential. Outdoors, youll find a detached 3-car garage offering plenty of room for vehicles, recreational toys, and storage with an attached workshop providing an ideal space for hobbies, woodworking, or small business use. The expansive property offers a blend of open areas and natural beauty, giving you endless possibilitiesgardening, recreation, trails, or simply relaxing in your own private retreat. Located just a short drive from town amenities and the Beaver Valley, this property offers the best of both worlds: the peace and quiet of rural living with convenient access to everything you need. Whether youre looking to accommodate extended family, work from home, or simply enjoy the space and freedom of country life, this home is ready to welcome you. (id:27476)

Property Highlights

MLS® Number
X12346111
Type
Single Family
Community Name
Grey Highlands
Land Size
473.2 x 1234.1 FT|10 - 24.99 acres
Parking Space Total
13

Building

Building Type
House
Storeys
2.00
Square Footage
3000 - 3500 sqft
Bathrooms Total
4
Bedrooms Above Ground
5
Bedrooms Total
7
Amenities
Ski area
Exterior Finish
Wood, Stone
Fireplace Present
No
Basement Type
N/A (Finished)
Basement Features
Building Heating Type
Forced air
Heating Fuel
Geo Thermal
Building Cooling Type
Central air conditioning

Utilities

Water
Drilled Well
Utility Sewer
Septic System

Location