249311 Grey 9 Road, Grey Highlands, Ontario N0C 1B0

Listed for:
$1,470,000
3 beds
3 baths
Listed 27 days ago
House for rent: 249311 Grey 9 Road, Grey Highlands, Ontario N0C 1B0

View all 50 photos

About

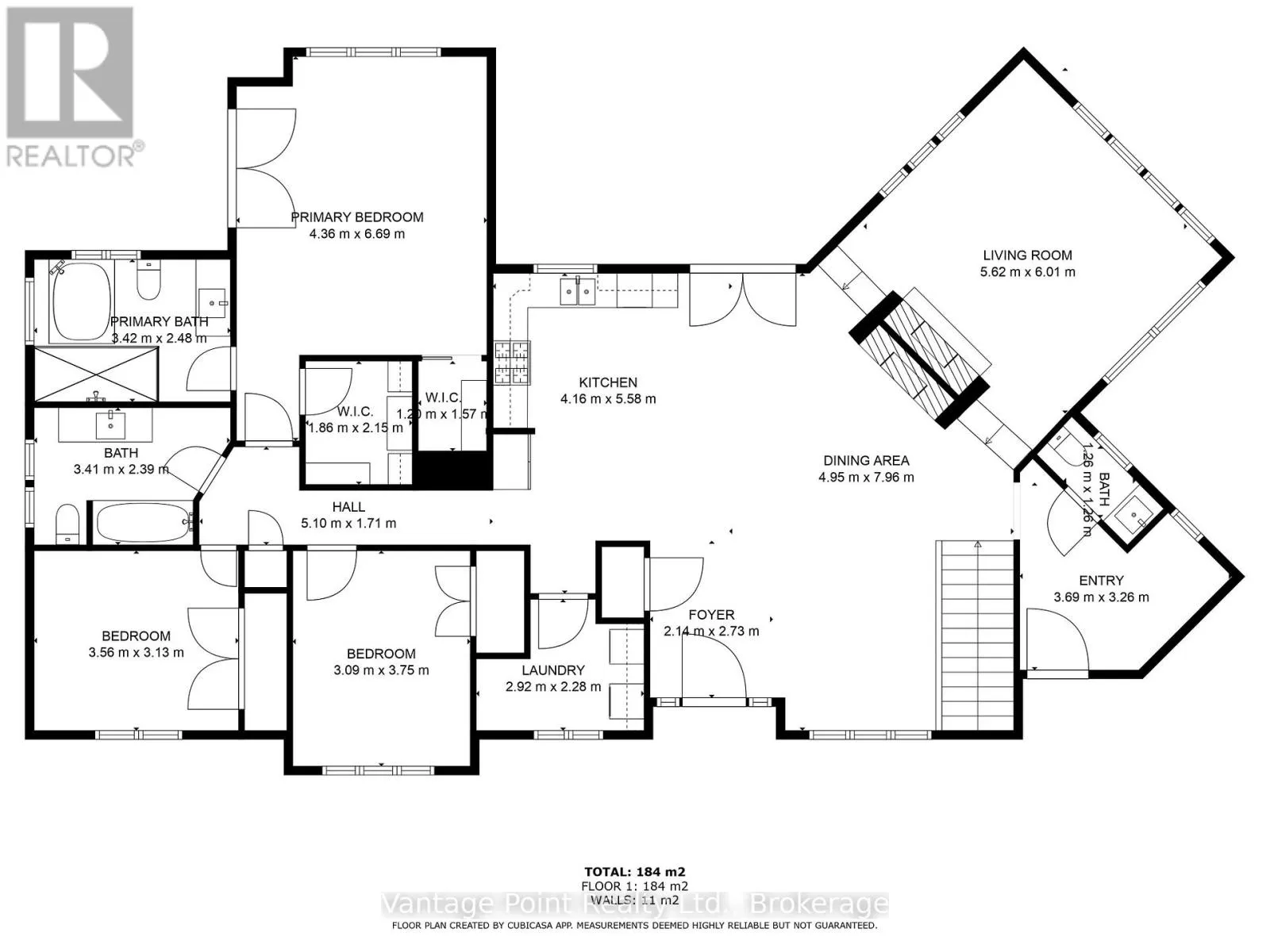
Cross Streets: 10 Line NE. ** Directions: East of Dundalk. Tucked away on a 3.3-acre lot on a paved road just minutes from the town of Dundalk, this beautifully crafted home offers a seamless blend of modern luxury and natural surroundings. From the moment you arrive, the professionally landscaped grounds, stone walkways, timber beams, and armor stone set the tone for what's inside. The main living space is open and inviting, with vaulted ceilings, and a striking floor-to-ceiling stone fireplace that is centered as focal point. The sunken living room creates a cozy atmosphere, while the kitchen features a large island, quartz countertops, and a walkout to the raised deck ideal for barbequing & entertaining. The primary suite is a true escape, complete with two walk-in closets, a spa-like ensuite with a soaker tub overlooking the woods, and its own private deck. A large mudroom connects the home to an oversized two-car garage, making day-to-day life feel effortless. Downstairs, the walkout basement is full of potential including the opportunity to become an in-law suite. This home delivers on both style and substance with quality finishes throughout - a rare combination of privacy, convenience, and high-end craftsmanship. 5 minutes to Dundalk, 15 min to Shelburne, 30 min to Collingwood, 40 min to Orangeville, 1 hr 45 min to Toronto. (id:27476)

Property Highlights

MLS® Number
X12709890
Type
Single Family
Community Name
Grey Highlands
Land Size
439.7 x 335.8 FT|2 - 4.99 acres
Parking Space Total
8

Building

Building Type
House
Storeys
1.00
Square Footage
2000 - 2500 sqft
Bathrooms Total
3
Bedrooms Above Ground
3
Bedrooms Total
3
Amenities
Fireplace(s)
Exterior Finish
Stone, Vinyl siding
Fireplace Present
Yes
Basement Type
N/A (Unfinished)
Basement Features
Building Heating Type
Forced air
Heating Fuel
Propane
Building Cooling Type
Central air conditioning

Utilities

Water
Drilled Well
Utility Sewer
Septic System

Location

Learn more about this property
Listing provided by:
Vantage Point Realty Ltd.
MLS® number:
X12709890
Agent:
Tony Madill
*Indicates required field
Name is required
Email is required
Please enter a valid phone number (e.g., 416-111-1111).

Community Spotlight: Homes For sale in Your Neighborhood