124 Lorne Street, Grey Highlands, Ontario N0C 1H0

Listed for:
$499,000
3 beds
2 baths
Listed 1 day ago
House for rent: 124 Lorne Street, Grey Highlands, Ontario N0C 1H0

View all 46 photos

About

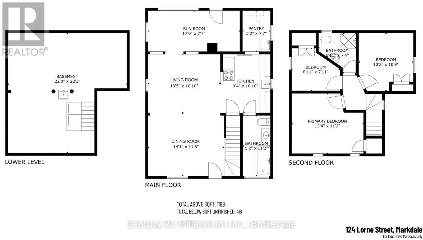
Cross Streets: Lorne St. & McDuff St. ** Directions: From Markdale, travel west on Grey Road 12. Turn northwest onto McDuff Street, then turn southwest onto Lorne Street. The property will be on the northwest side of the street. Beautiful mature lot in the heart of Markdale! Welcome to 124 Lorne Street, a charming 1.5-storey home set on a generous 61' x 132' lot surrounded by established trees, offering a peaceful setting within town limits. Featuring 3 bedrooms and 2 bathrooms across approximately 1,200 sq ft, the home offers a functional layout with bright living and dining spaces, a kitchen with pantry, and a sunroom overlooking the backyard. Upstairs, you'll find three comfortable bedrooms and a second full bathroom. Recent improvements include updated flooring, trim, and modern light fixtures with added pot lights, bringing a fresh feel to the interior.The outdoor space is a standout, with a deep lot, mature landscaping, and a backdrop onto a neighbouring church property that offers a uniquely open rear setting. A detached garage with hydro and private driveway provide added convenience. Situated in a quiet, friendly neighbourhood known for its great sense of community, and within walking distance to shops, parks, and amenities. Just a short drive to Owen Sound, Hanover, and Collingwood; enjoy small-town living in the growing community of Markdale. (id:27476)

Property Highlights

MLS® Number
X13006406
Type
Single Family
Community Name
Grey Highlands
Ownership Type
Freehold
Land Size
61 x 132 FT
Parking Space Total
3

Building

Building Type
House
Storeys
1.50
Square Footage
1100 - 1500 sqft
Bathrooms Total
2
Bedrooms Above Ground
3
Bedrooms Total
3
Exterior Finish
Vinyl siding
Fireplace Present
No
Basement Type
N/A (Unfinished)
Basement Features
Building Heating Type
Forced air
Heating Fuel
Natural gas
Building Cooling Type
None

Utilities

Water
Municipal water
Utility Sewer
Sanitary sewer

Room Layout

Primary Bedroom
Second level
4.06 m x 3.4 m
Bedroom
Second level
3.28 m x 3.28 m
Bedroom
Second level
2.72 m x 2.41 m
Bathroom
Second level
2.08 m x 2.24 m
Living room
Main level
4.09 m x 3.3 m
Dining room
Main level
4.29 m x 3.56 m
Sunroom
Main level
5.18 m x 2.31 m
Kitchen
Main level
2.84 m x 3.3 m
Pantry
Main level
1.57 m x 2.31 m
Bathroom
Main level
1.57 m x 3.4 m

Location

Learn more about this property
Listing provided by:
Century 21 Millennium Inc.
MLS® number:
X13006406
Agent:
Susan Moffat
*Indicates required field
Name is required
Email is required
Please enter a valid phone number (e.g., 416-111-1111).

Community Spotlight: Homes For sale in Your Neighborhood