149 Dorchester Drive, Grimsby, Ontario L3M 5J9

Listed for:
$1,098,000
4 beds
4 baths
Listed 32 days ago
House for rent: 149 Dorchester Drive, Grimsby, Ontario L3M 5J9

View all 50 photos

Learn more about this property
Listing provided by:
ROYAL LEPAGE NRC REALTY
MLS® number:
X12315848
Agent:
B Angela Agopian
*Indicates required field
Name is required
Email is required
Please enter a valid phone number (e.g., 416-111-1111).

About

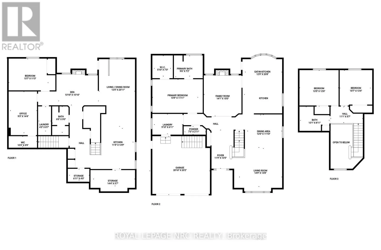
Cross Streets: Baker. ** Directions: From Main St East, go south onto Dorchester Drive. Welcome to prestigious Dorchester Drive in Grimsby facing the beautiful Niagara Escarpment, So much larger than it appears with 3241 sq' of living space! Featuring a full IN-LAW APARTMENT in the lower level with a private walk out to the backyard & convenient concrete walkway from the front. This well maintained home has great curb appeal with lush gardens & inground sprinklers front & back, numerous updates throughout making it completely move-in ready. Upon entering the main level you are greeted with a 2 storey foyer with a large front facing living/dining room with hardwood floors, an updated kitchen with granite counters, stainless appliances & a garden door leading to a large backyard covered deck(2025), a family room with hardwood floors & gas fireplace, 2 pc bathroom, large primary bedroom complete with a walk-in closet and 4 pc ensuite, large laundry/mud room leading to the garage. Upstairs are 2 generous sized bedrooms and a 4pc bathroom. The very bright basement level has a brand new spacious white kitchen, living/dining room, den with gas fireplace, 1 bedroom + office both with closets, a 3pc bathroom and its own laundry room. This fresh lower level apartment has a private garden door leading to a backyard concrete patio and an extra interior stairway leading into the garage. This 4 bedroom, 4 bathroom, 2 kitchen home is perfect for a growing family with senior parents, adult children, hosting out of town guests or potential rental income. This house is much larger than it appears, nestled in front of the Niagara Escarpment in the quaint town of Grimsby with quick QEW access for an easy commute. Including a complimentary 1 Year Safe Close Home Systems and Appliance Breakdown Warranty for the Buyer with Canadian Home Shield** (Some conditions & limitations apply) (id:27476)

Property Highlights

MLS® Number
X12315848
Type
Single Family
Community Name
542 - Grimsby East
Ownership Type
Freehold
Land Size
60.9 x 100 FT
Parking Space Total
4

Building

Building Type
House
Storeys
1.50
Square Footage
2000 - 2500 sqft
Bathrooms Total
4
Bedrooms Above Ground
4
Bedrooms Total
4
Amenities
Fireplace(s)
Exterior Finish
Brick, Stucco
Fireplace Present
Yes
Basement Type
N/A (Finished)
Basement Features
Walk out
Building Heating Type
Forced air
Heating Fuel
Natural gas
Building Cooling Type
Central air conditioning

Utilities

Water
Municipal water
Utility Sewer
Sanitary sewer

Room Layout

Bedroom 3
Second level
3.81 m x 3.23 m
Bathroom
Second level
3.07 m x 2.72 m
Bedroom 2
Second level
4.09 m x 3.81 m
Kitchen
Basement
4.5 m x 3.48 m
Living room
Basement
7.9 m x 3.78 m
Den
Basement
4.22 m x 3.3 m
Bedroom 4
Basement
4.14 m x 3.43 m
Office
Basement
4.37 m x 2.82 m
Bathroom
Basement
2.74 m x 1.83 m
Laundry room
Basement
2.62 m x 1.3 m
Foyer
Ground level
4.09 m x 3.58 m
Living room
Ground level
4.5 m x 4.17 m
Dining room
Ground level
3.65 m x 3.61 m
Kitchen
Ground level
9.04 m x 3.89 m
Family room
Ground level
4.57 m x 4.29 m
Primary Bedroom
Ground level
3.63 m x 4.8 m
Bathroom
Ground level
2.9 m x 2.8 m
Bathroom
Ground level
2.21 m x 0.89 m
Laundry room
Ground level
3 m x 2.11 m

Location

Street Spotlight - For sale