9 Bartlett Avenue, Grimsby, Ontario L3M 5N7

Listed for:
$549,900
0 beds
0 baths
Listed 3 days ago
9 Bartlett Avenue, Grimsby, Ontario L3M 5N7

View all 3 photos

Learn more about this property
Listing provided by:
RE/MAX Escarpment Realty Inc.
MLS® number:
40756391
Agent:
Milena Sozio
*Indicates required field
Name is required
Email is required
Please enter a valid phone number (e.g., 416-111-1111).

About

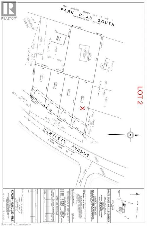
QEW Exit Bartlett Avenue, left on Bartlett (heading south towards escarpment) Build your dream home. Grimsby enjoys the tranquility of small-town living, it is conveniently located near major urban centers, within 30 minutes of the U.S. border..There is a thriving arts scene, with the Grimsby Art Gallery and Public Library, the Grimsby Museum, and many festivals and events. This home is is 1.3 km to beach and water on Lake Ontario, enjoy hiking on the Bruce Trail, biking and cross-country skiing in conservation areas and has over 30 parks and Located in the wine bench this home is in close proximity to many wineries and resturants. (id:27476)

Property Highlights

MLS® Number
40756391
Type
Vacant Land
Ownership Type
Freehold
Land Size
under 1/2 acre

Building

Amenities
Hospital, Schools
Fireplace Present
No
Basement Type
None
Basement Features
Building Heating Type
Heating Fuel
Building Cooling Type

Utilities

Water
Municipal water
Utility Sewer
Municipal sewage system

Location