55 Ridge Road E, Grimsby, Ontario L3M 4E7

Listed for:
$449,000
0 beds
0 baths
Listed 121 days ago
55 Ridge Road E, Grimsby, Ontario L3M 4E7

View all 5 photos

About

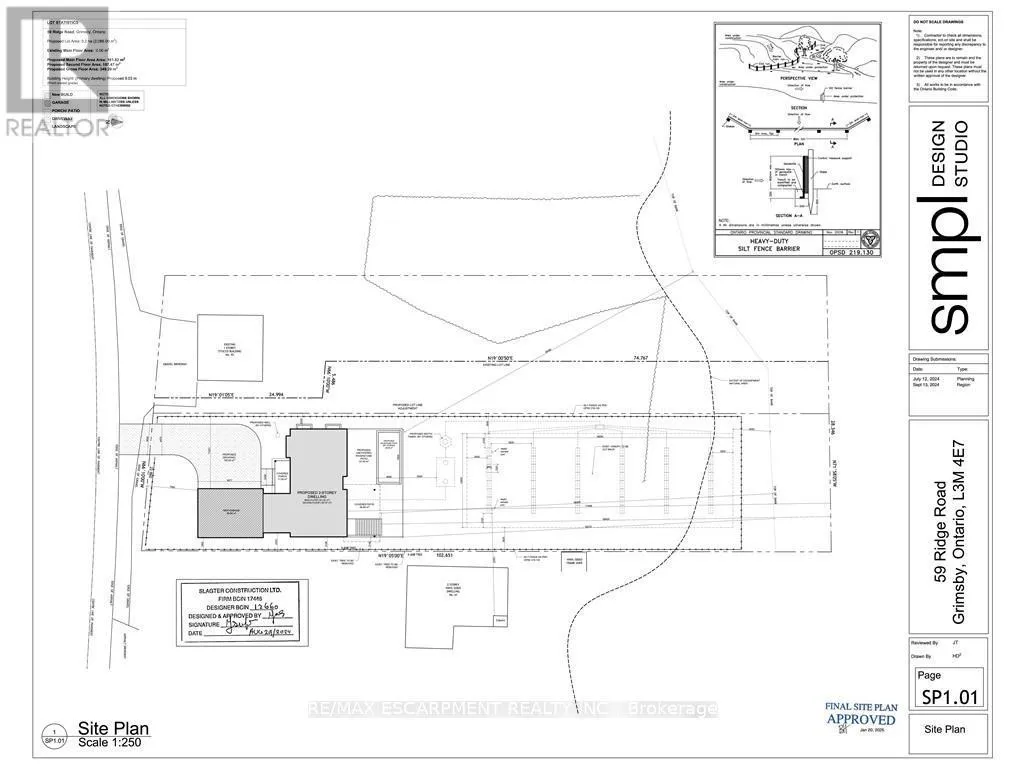
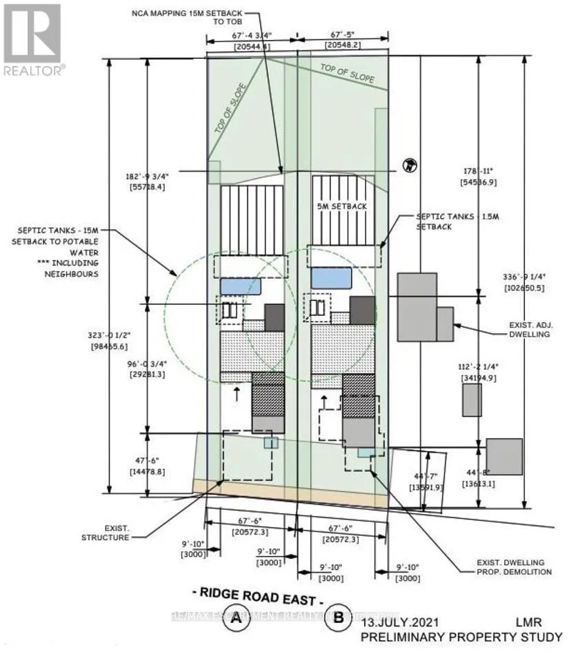
Cross Streets: Mountain St & Ridge Rd E. ** Directions: QEW Exit Christie St, head South Mountain St turn East on Ridge Rd E. Welcome to 55 Ridge Road East, Grimsby - a rare and remarkable opportunity to build your dream home on a breathtaking lot perched on the sought-after Ridge Road, overlooking the Niagara Escarpment. Through the forest take in the serene views of Lake Ontario, CN Tower, Toronto skyline, and downtown Grimsby. The Seller is motivated. On the adjacent property the NEC has granted a permit for a custom 3,600+ sq ft modern home. That site plan provides room for a pool and an area to create a backyard oasis. The same could be done on this property. The lot backs onto mature trees and the Bruce Trail, with no front or rear neighbours - offering total privacy and serenity just minutes from the downtown core. Hydro, natural gas, and cable are at the road. This is a builder's or end-user's dream-perfect for those looking to create a one-of-a-kind residence on the ridge in one of Grimsby's most coveted locations. Whether you're an investor, developer, or someone ready to build a forever home surrounded by nature, this offering delivers unmatched value. Enjoy country-like living just minutes from the QEW, future Grimsby GO Station, schools, marinas, vineyards, shops, and the hospital. With sweeping views this is an extraordinary opportunity not to be missed. (id:27476)

Property Highlights

MLS® Number
X12495144
Type
Vacant Land
Community Name
055 - Grimsby Escarpment
Land Size
67.6 x 319.59 FT|under 1/2 acre

Building

Amenities
Beach, Hospital, Marina, Place of Worship
Fireplace Present
No
Basement Type
Basement Features
Building Heating Type
Heating Fuel
Building Cooling Type

Location

Learn more about this property
Listing provided by:
RE/MAX ESCARPMENT REALTY INC.
MLS® number:
X12495144
Agent:
David Boersma
*Indicates required field
Name is required
Email is required
Please enter a valid phone number (e.g., 416-111-1111).