Lot 3 George Street, Guelph/Eramosa, Ontario N0B 2K0

Listed for:
$1,299,000
4 beds
4 baths
Listed 69 days ago
House for rent: Lot 3 George Street, Guelph/Eramosa, Ontario N0B 2K0

View all 4 photos

About

Cross Streets: Hwy 7 and George St. ** Directions: East on George St from Hwy 7. Don't miss out on the chance to create your dream home with Crescent Homes in the charming Village of Rockwood! We currently have three stunning lots available, along with the option to choose from two thoughtfully designed floor plans that cater to your family's needs.Our homes boast impressive 9-foot ceilings and a carpet-free main floor, featuring a gourmet kitchen, four spacious bedrooms, three full bathrooms, and an additional powder room. Plus, the convenience of an upstairs laundry makes everyday living a breeze. There's ample space for everyone to enjoy!Reach out to us today to discover more about building your new home in Rockwood. Your dream home awaits! (id:27476)

Property Highlights

MLS® Number
X12432306
Type
Single Family
Community Name
Rockwood
Ownership Type
Freehold
Land Size
45.5 x 182 FT
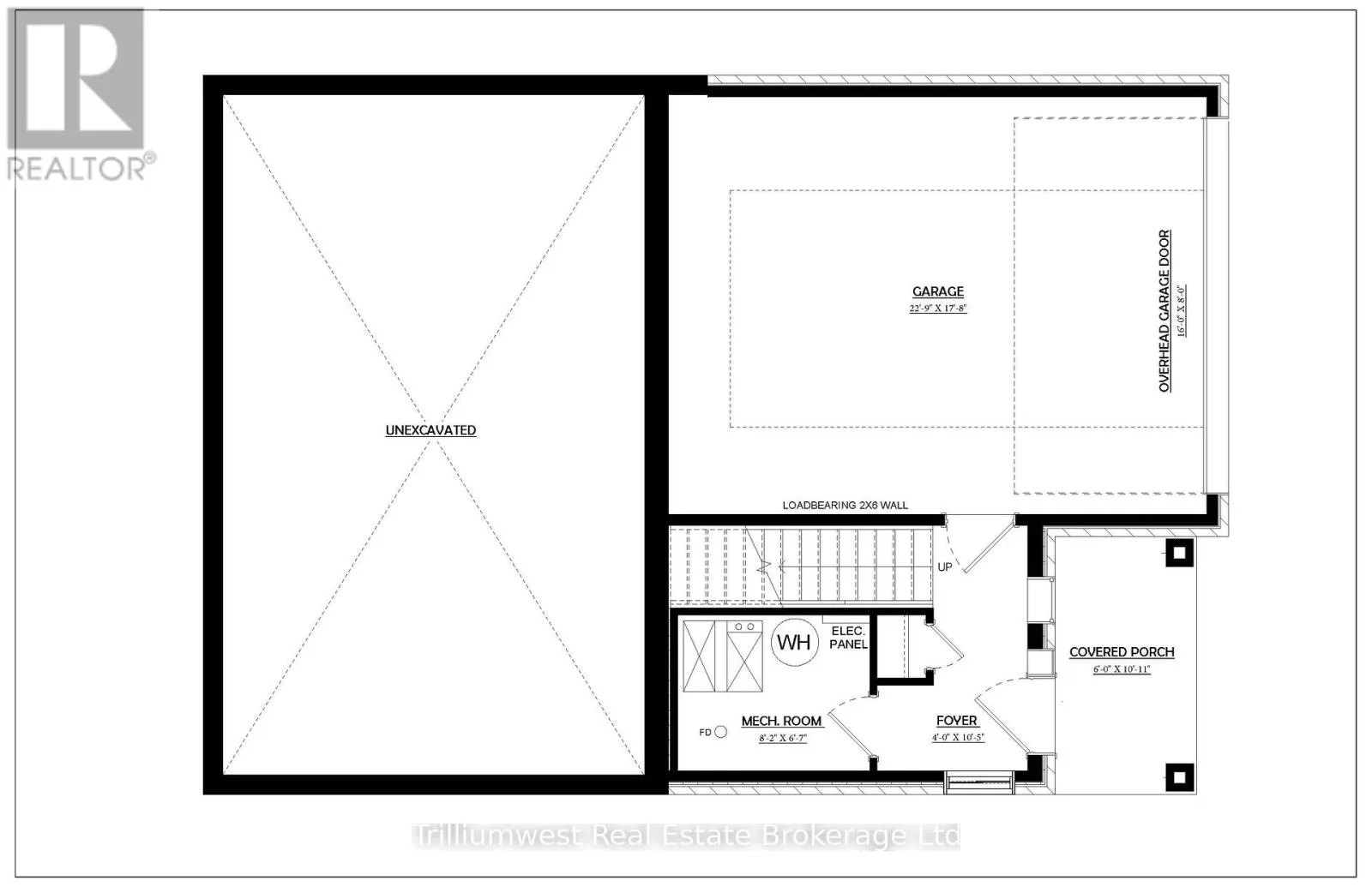
Parking Space Total
4

Building

Building Type
House
Storeys
2.00
Square Footage
2500 - 3000 sqft
Bathrooms Total
4
Bedrooms Above Ground
4
Bedrooms Total
4
Exterior Finish
Brick, Vinyl siding
Fireplace Present
No
Basement Type
Partial
Basement Features
Building Heating Type
Forced air
Heating Fuel
Natural gas
Building Cooling Type
None

Utilities

Water
Municipal water
Utility Sewer
Sanitary sewer

Room Layout

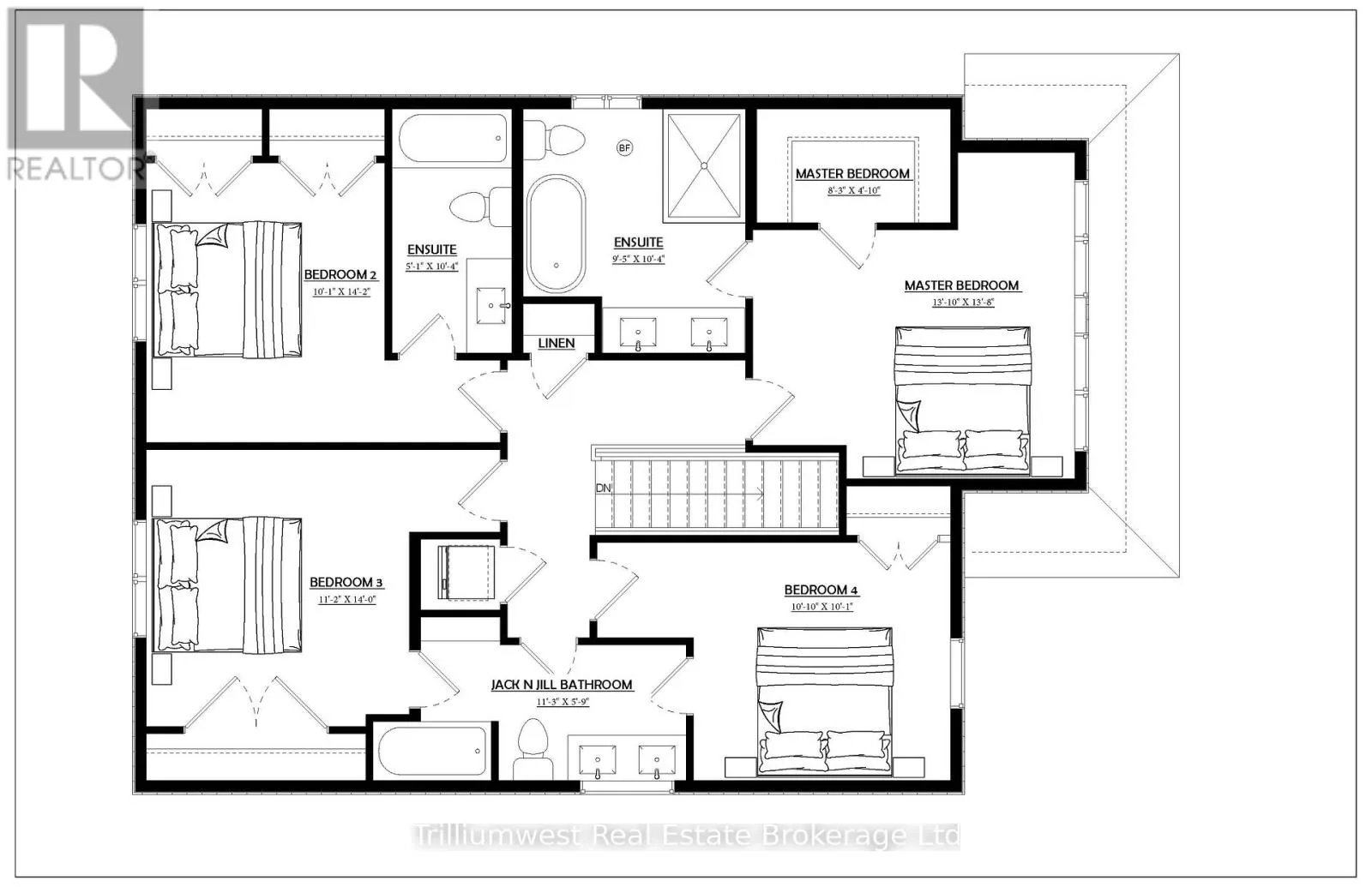
Primary Bedroom
Second level
4.8 m x 4.63 m
Bedroom 2
Second level
4.96 m x 3.96 m
Bedroom 3
Second level
4.96 m x 3.96 m
Bedroom 4
Second level
4.66 m x 3.11 m
Bathroom
Second level
3.2 m x 3.38 m
Bathroom
Second level
1.55 m x 3.08 m
Bathroom
Second level
4.08 m x 4.1 m
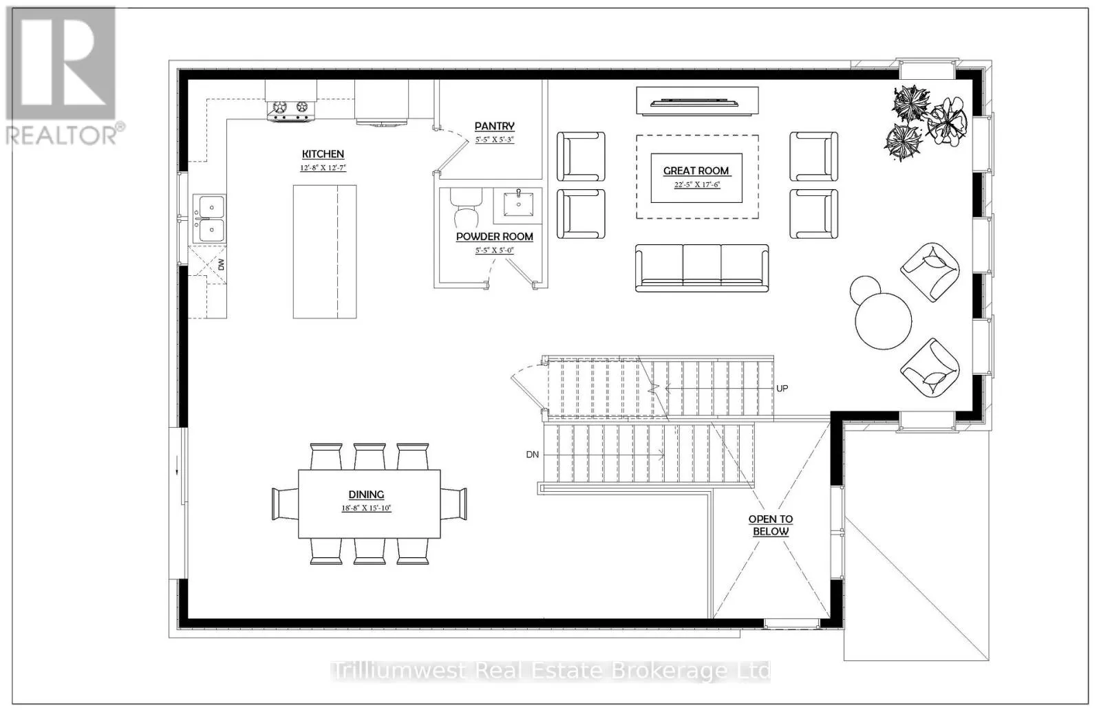
Kitchen
Main level
4.8 m x 3.69 m
Bathroom
Main level
1.68 m x 1.52 m
Dining room
Main level
6.55 m x 5.51 m
Great room
Main level
8.4 m x 6.1 m

Location

Learn more about this property
Listing provided by:
Trilliumwest Real Estate Brokerage
MLS® number:
X12432306
Agent:
Tracey Morrow
*Indicates required field
Name is required
Email is required
Please enter a valid phone number (e.g., 416-111-1111).