45 Linden Avenue, Guelph/Eramosa, Ontario N0B 2K0

Listed for:
$998,000
3 beds
3 baths
Listed 2 days ago
Row / Townhouse for rent: 45 Linden Avenue, Guelph/Eramosa, Ontario N0B 2K0

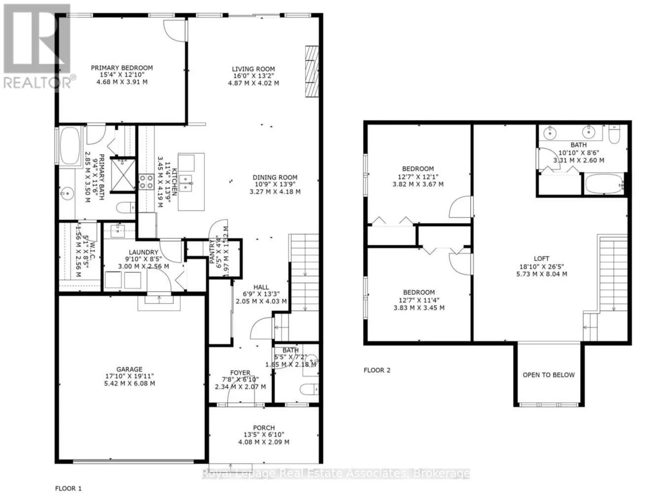
View all 35 photos

About

Cross Streets: Hwy 7/Ridge Rd. ** Directions: Ridge Rd/Jolliffe Ave. Welcome to 45 Linden Ave, a beautiful end-unit bungaloft condo townhome offering stylish, low-maintenance living in the heart of Rockwood. The spacious foyer greets you with high ceilings, ceramic flooring, a double closet & the convenience of a 2-pc bath. The main floor features a bright open-concept design with hardwood flooring, updated light fixtures & large windows. The dining area flows seamlessly into the Barzotti kitchen, complete with a centre island with seating, stainless steel appliances, granite countertops, a ceramic backsplash, soft-closing drawers, under-cabinet lighting & a walk-in pantry. Overlooking it all, the living room offers a cozy gas fireplace, pot lights & a walkout to the private deck, perfect for barbequing or relaxing outdoors. Beside the kitchen, a well-designed laundry room with built-in cabinetry, laundry sink, storage closet& direct garage access adds everyday convenience. The main floor primary suite is a private retreat, featuring a 4-pc ensuite with a soaker tub, stand-up shower, linen closet, large window & a walk-in closet directly off the bathroom. Upstairs, the loft provides flexible living space with a family room overlooking the foyer, pot lights & an office nook. Two additional bedrooms, each with large windows & double closets, share a 5-pc bath with a combined tub/shower, double vanity & linen closet. The fully insulated, builder-framed basement with a rough-in for a central vacuum is ready for your vision, whether it's for a home gym, games room, or additional living space. Parking is plentiful with a double car garage, private double-wide driveway (refinished in 2025) & visitor parking nearby. Maintenance fees cover snow removal, grass cutting, landscaping, visitor parking & exterior upkeep, including roof & gutters. Just steps from conservation areas, scenic trails, local shops & family-friendly amenities, this home is the perfect opportunity to experience Rockwood living at its best. (id:27476)

Property Highlights

MLS® Number
X12936282
Type
Single Family
Community Name
Rockwood
Maintenance Fee
320.00
Ownership Type
Condominium/Strata
Parking Space Total
4

Building

Building Type
Row / Townhouse
Storeys
1.50
Square Footage
2000 - 2249 sqft
Bathrooms Total
3
Bedrooms Above Ground
3
Bedrooms Total
3
Amenities
Visitor Parking, Fireplace(s) Park, Schools
Exterior Finish
Brick
Fireplace Present
Yes
Basement Type
Full (Unfinished)
Basement Features
Building Heating Type
Forced air
Heating Fuel
Natural gas
Building Cooling Type
Central air conditioning

Location

Learn more about this property
Listing provided by:
Royal Lepage Real Estate Associates
MLS® number:
X12936282
Agent:
Christine Monckton
*Indicates required field
Name is required
Email is required
Please enter a valid phone number (e.g., 416-111-1111).

Community Spotlight: Homes For sale in Your Neighborhood