242 Farley Drive Unit# Lower, Guelph, Ontario N1L 1N2

Listed for:
$1,850
2 beds
1 baths
Listed 20 days ago
Apartment for rent: 242 Farley Drive Unit# Lower, Guelph, Ontario N1L 1N2

View all 11 photos

Learn more about this property
Listing provided by:
REALTY EXECUTIVES EDGE INC.
MLS® number:
40784940
Agent:
Nelson Mathew
*Indicates required field
Name is required
Email is required
Please enter a valid phone number (e.g., 416-111-1111).

About

Gordon/clairfields Bright & Spacious 2 bedroom Basement apartment in the sought after west minster woods community in the south end. Large rooms. Lots of windows. Updated Kitchen with dishwasher. Private entrance, In unit laundry, full bathroom with tub. Direct bus to U of G and downtown, walking distance to Pergola commons - Grocery stores, Restaurants, banks, library, fitness center, movie, LCBO, beer store etc. Rent $1850 + 30% Utilities. Lots of storage. 1 parking included. (id:27476)

Property Highlights

MLS® Number
40784940
Type
Single Family
Ownership Type
Freehold
Land Size
Unknown
Parking Space Total
1

Building

Building Type
Apartment
Storeys
2.00
Square Footage
850 sqft
Bathrooms Total
1
Bedrooms Total
2
Amenities
Park, Public Transit, Schools, Shopping
Exterior Finish
Brick Veneer, Vinyl siding
Fireplace Present
No
Basement Type
Full (Finished)
Basement Features
Building Heating Type
Forced air
Heating Fuel
Natural gas
Building Cooling Type
Central air conditioning

Utilities

Water
Municipal water
Utility Sewer
Municipal sewage system

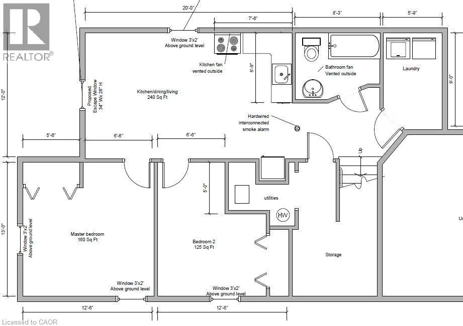
Room Layout

Laundry room
Basement
Measurements not available
4pc Bathroom
Basement
Measurements not available
Bedroom
Basement
12'0'' x 9'0''
Bedroom
Basement
12'0'' x 12'0''
Living room
Basement
12'0'' x 12'0''
Kitchen
Basement
12'0'' x 10'0''

Location