3 - 94 Woodlawn Road E, Guelph, Ontario N1E 1B7

Listed for:
$899,900
4 beds
3 baths
Listed 3 days ago
Row / Townhouse for rent: 3 - 94 Woodlawn Road E, Guelph, Ontario N1E 1B7

View all 30 photos

Learn more about this property
Listing provided by:
RE/MAX Real Estate Centre Inc
MLS® number:
X12530370
Agent:
Bradley Wylde
*Indicates required field
Name is required
Email is required
Please enter a valid phone number (e.g., 416-111-1111).

About

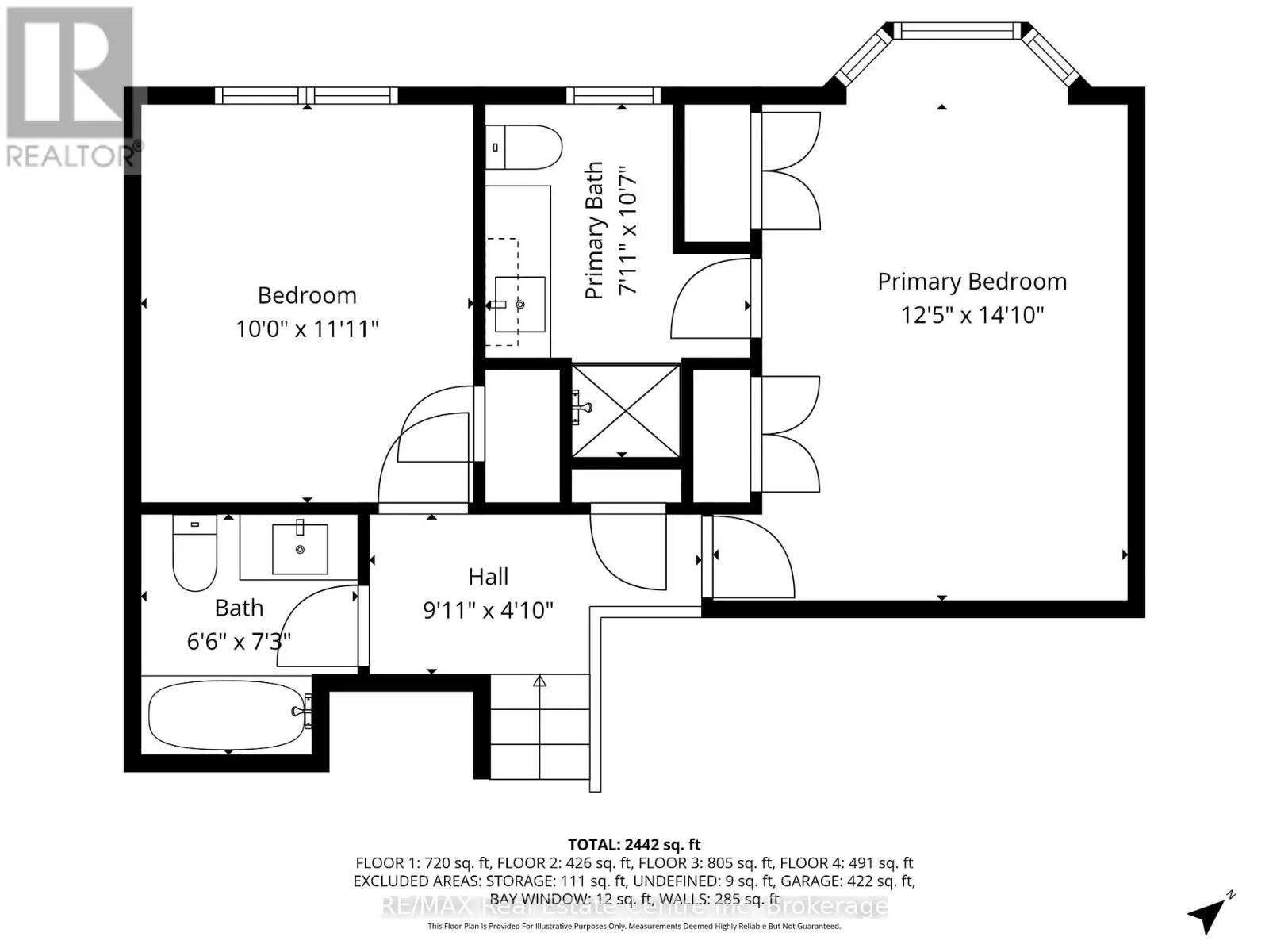
Country Club Dr Rarely offered 4-bdrm executive split-level townhome backing onto greenspace in coveted River Ridge enclave-mature community where homes are so loved they seldom hit the market! Steps from Guelph Country Club & Royal Rec Trail, some of Guelph's most scenic walking & biking trails, this renovated home blends privacy of nature W/convenience of urban living. With over 4 finished levels this home offers flexible space for growing families, work-from-home professionals, downsizers or those looking for multigenerational potential. Kitchen W/custom cabinetry W/glass display uppers, B/I wine rack, large pantry, S/S appliances, quartz counters & backsplash, pendant lighting & island W/bar seating. DRW/hardwood & bay window. 2-storey LR is bathed in natural light from expansive windows. Versatile main floor bdrm offers flexibility for guests or remote work. Upstairs primary bdrm offers bay window & renovated ensuite W/quartz vanity, makeup/prep counter & W/I shower. Another large bdrm & updated 4pc bath round out 2nd level. On lower level (above grade) enjoy FR W/fireplace & oversized windows-ideal for relaxing, entertaining or converting to your dream studio, gym or creative space. Finished bsmt adds 4th bdrm, bonus room/den, 3pc bath & storage room. Private front courtyard offers perfect spot for morning coffee or winding down while the 10 X 16 deck provides add'l outdoor space for relaxing & entertaining. Rare 2-car garage W/interior access & lots of visitor parking. Major exterior updates: windows, doors, roof & updated deck within last 5yrs. Freshly painted in last 5yrs & California shutters & blinds throughout. Newer appliances: 2023 LG fridge, 2020 Maytag DW,2022 LG washer/dryer, Maytag dbl oven & new HWT & softener. Condo corp takes care of everything: roof, windows, doors, deck, patios &exterior maint. River Ridge residents enjoy heated outdoor pool, tennis & pickleball courts! River Ridge is not just a place to live, it's a community people stay in for decades. (id:27476)

Property Highlights

MLS® Number
X12530370
Type
Single Family
Community Name
Victoria North
Maintenance Fee
736.00
Ownership Type
Condominium/Strata
Parking Space Total
4

Building

Building Type
Row / Townhouse
Square Footage
2250 - 2499 sqft
Bathrooms Total
3
Bedrooms Above Ground
3
Bedrooms Total
4
Amenities
Visitor Parking, Fireplace(s) Hospital, Public Transit, Schools
Exterior Finish
Aluminum siding, Brick
Fireplace Present
Yes
Basement Type
Full (Finished)
Basement Features
Building Heating Type
Forced air
Heating Fuel
Natural gas
Building Cooling Type
Central air conditioning

Location

Street Spotlight - For sale