1205 - 93 Arthur Street S, Guelph, Ontario N1E 0S6

Listed for:
$2,100
1 beds
1 baths
Listed 28 days ago
Apartment for rent: 1205 - 93 Arthur Street S, Guelph, Ontario N1E 0S6

View all 24 photos

Learn more about this property
Listing provided by:
RE/MAX REAL ESTATE CENTRE INC.
MLS® number:
X12598992
Agent:
Mani Batoo
*Indicates required field
Name is required
Email is required
Please enter a valid phone number (e.g., 416-111-1111).

About

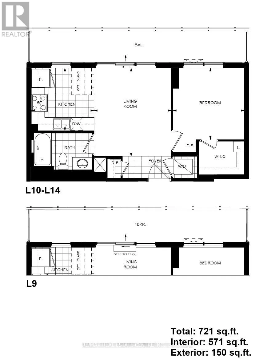
Cross Streets: Wellington St E/Neeve St. ** Directions: East Of Wellington St E. Brand New 1 Bedroom Suite Offering A Total Of 721 Sq Ft With 150 Sq Ft Terrace In The Iconic Anthem By The Metalworks Condos. Functional Floor Plan With Open Concept Layout Featuring Modern And Professional Finishes Throughout. No Carpet! Soaring 9' Ceilings And Walk-Out To Terrace Offering Panoramic Views And Plenty Of Natural Light. Professionally Designed Kitchen Offers Quartz Counters And Full Size Stainless Steel Appliances. Large Bedroom Complete With Walk-In Closet. Enjoy State Of The Art Condo Amenities Include Fitness Centre, Piano Lounge, Private Dining Room, Rooftop Terrace, Pet Spa And More! Located Along The Banks Of The Grand River In Downtown Guelph, Surrounded By Countless Conveniences Including Dining Options, Shops, Cafes, Services, Transit Options, Parks And Walking Trails, Minutes From University of Guelph. High Speed Internet Included. (id:27476)

Property Highlights

MLS® Number
X12598992
Type
Single Family
Community Name
St. Patrick's Ward
Ownership Type
Condominium/Strata

Building

Building Type
Apartment
Square Footage
500 - 599 sqft
Bathrooms Total
1
Bedrooms Above Ground
1
Bedrooms Total
1
Amenities
Party Room, Exercise Centre, Visitor Parking, Storage - Locker Park, Place of Worship
Exterior Finish
Brick, Aluminum siding
Fireplace Present
No
Basement Type
None
Basement Features
Building Heating Type
Heat Pump, Not known
Heating Fuel
Electric
Building Cooling Type
Central air conditioning

Location

Street Spotlight - For rent