9 Shakespeare Drive, Guelph, Ontario N1E 0T1

Listed for:
$899,900
3 beds
3 baths
Listed 87 days ago
Row / Townhouse for rent: 9 Shakespeare Drive, Guelph, Ontario N1E 0T1

View all 5 photos

About

Cross Streets: Shakespeare and Eramosaa. ** Directions: East on Eramosa, North on Shakespeare. Discover one of the city's premier freehold corner unit townnhomes with a rare double car garage -offering over 1,700 sq. ft. of refined living space with no condo fees. Built by the award-winning Terra View Homes, this "to-be-built" residence combines architectural elegance with functional design. The main floor boasts luxury vinyl plank flooring, upgraded trim work, and oversized windows that flood the home with natural light. At the heart of the home sits a large kitchen featuring a massive social island. Retreat to a sprawling primary suite complete with a walk-in closet and private ensuite. With construction yet to begin, this is your rare opportunity to customize your finishes and truly make this home your own. (id:27476)

Property Highlights

MLS® Number
X12806074
Type
Single Family
Community Name
Victoria North
Ownership Type
Freehold
Land Size
39.8 x 101 FT
Parking Space Total
4

Building

Building Type
Row / Townhouse
Storeys
2.00
Square Footage
1500 - 2000 sqft
Bathrooms Total
3
Bedrooms Above Ground
3
Bedrooms Total
3
Exterior Finish
Brick, Vinyl siding
Fireplace Present
No
Basement Type
Basement Features
Building Heating Type
Forced air, Heat Pump, Not known
Heating Fuel
Electric
Building Cooling Type

Utilities

Water
Municipal water
Utility Sewer
Sanitary sewer

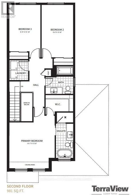
Room Layout

Primary Bedroom
Second level
13.66 m x 13.58 m
Bedroom
Second level
9.33 m x 15.67 m
Bedroom
Second level
13.83 m x 9.33 m
Laundry room
Second level
8 m x 5.66 m
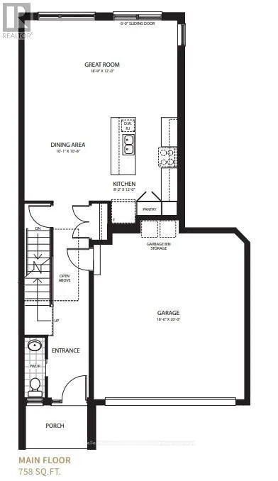
Great room
Main level
12 m x 18.75 m
Kitchen
Main level
12 m x 8.2 m
Dining room
Main level
10.67 m x 10.08 m

Location

Learn more about this property
Listing provided by:
Keller Williams Home Group Realty
MLS® number:
X12806074
Agent:
Lisa Schuett
*Indicates required field
Name is required
Email is required
Please enter a valid phone number (e.g., 416-111-1111).

Community Spotlight: Homes For sale in Your Neighborhood