13 Chester Street, Guelph, Ontario N1H 1K7

Listed for:
$699,000
6 beds
6 baths
Listed 10 days ago
Duplex for rent: 13 Chester Street, Guelph, Ontario N1H 1K7

View all 40 photos

About

Cross Streets: Speedvale Ave W & Woolwich S. ** Directions: At Speedvale Ave W & Woolwich St head West on Speedvale Ave W; 300m Turn left onto Exhibition St; 73m Turn right onto Chester St; Destination will be on the right. **Prime Duplex Opportunity in Exhibition Park, Guelph**Welcome to 13 Chester St, an exceptional opportunity in the heart of Guelph's highly sought-after Exhibition Park neighbourhood. Ideal for builders, investors, and renovators, this partially completed project offers the chance to customize and add significant value in a prime central location just steps from downtown. Also available is the neighbouring property at 11 Chester St - the seller prefers to sell both together but will consider separate sales.**Flexible Layout & Income Potential**This 2-storey brick and stone duplex is framed for 4 bedrooms and 2 bathrooms above grade. Plans and permits are in place for a 2-bedroom, 2-bathroom legal secondary dwelling unit in the basement, complete with a separate side entrance - offering excellent potential for multi-generational living or rental income. All major services are already connected and development charges have been paid, streamlining the path to completion.**Ready for Your Finishing Touches**With construction already underway, this property is a blank canvas ready for your vision. Complete the build to your specifications and choose your own finishes to maximize value and returns. Being sold as-is, where-is, this is a rare chance to step into a project mid-way in a high-demand neighbourhood.**Desirable Location & Lifestyle**Situated on a 32.5 ft x 90 ft lot with a private driveway and attached garage, offering parking for multiple vehicles. Located steps to Exhibition Park and minutes from Downtown Guelph, with easy access to shops, restaurants, schools, and transit in a mature, established community.A rare opportunity to complete and customize a duplex in one of Guelph's most desirable areas with strong upside potential. (id:27476)

Property Highlights

MLS® Number
X12907256
Type
Multi-family
Community Name
Exhibition Park
Land Size
32.5 x 91 FT|under 1/2 acre
Parking Space Total
2

Building

Building Type
Duplex
Storeys
2.00
Square Footage
2000 - 2500 sqft
Bathrooms Total
6
Bedrooms Above Ground
4
Bedrooms Total
6
Amenities
Schools, Place of Worship, Hospital, Park
Exterior Finish
Brick, Stucco
Fireplace Present
Yes
Basement Type
N/A
Basement Features
Separate entrance
Building Heating Type
Other
Heating Fuel
Building Cooling Type

Utilities

Water
Municipal water
Utility Sewer
Sanitary sewer

Room Layout

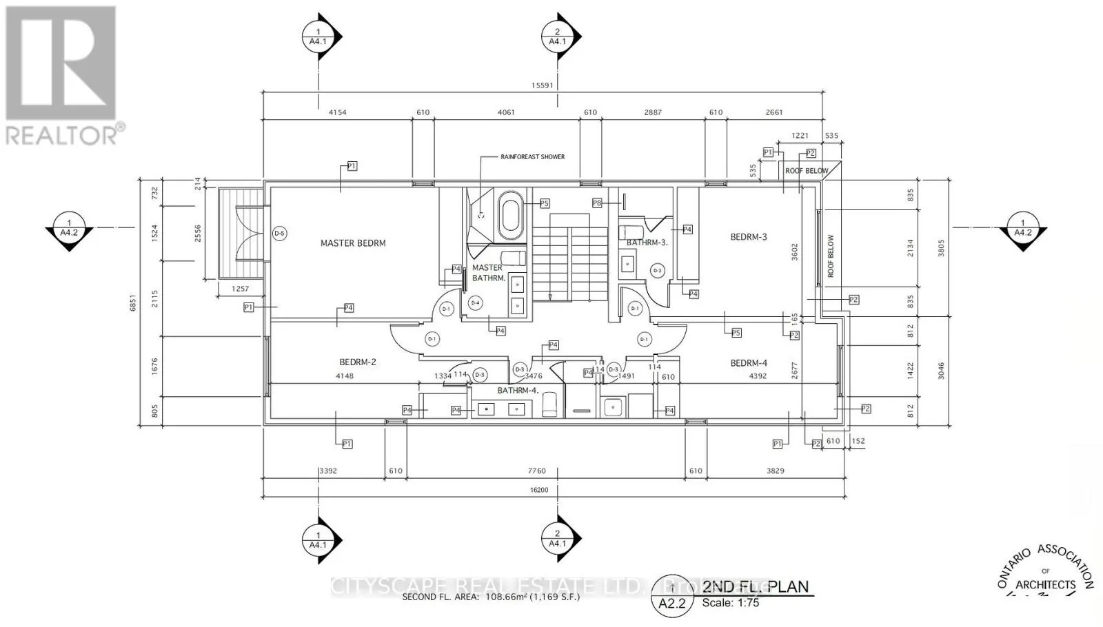
Bedroom 3
Second level
Measurements not available
Bedroom 4
Second level
Measurements not available
Primary Bedroom
Second level
Measurements not available
Bedroom 2
Second level
Measurements not available
Bedroom 3
Second level
Measurements not available
Bathroom
Second level
Measurements not available
Laundry room
Second level
Measurements not available
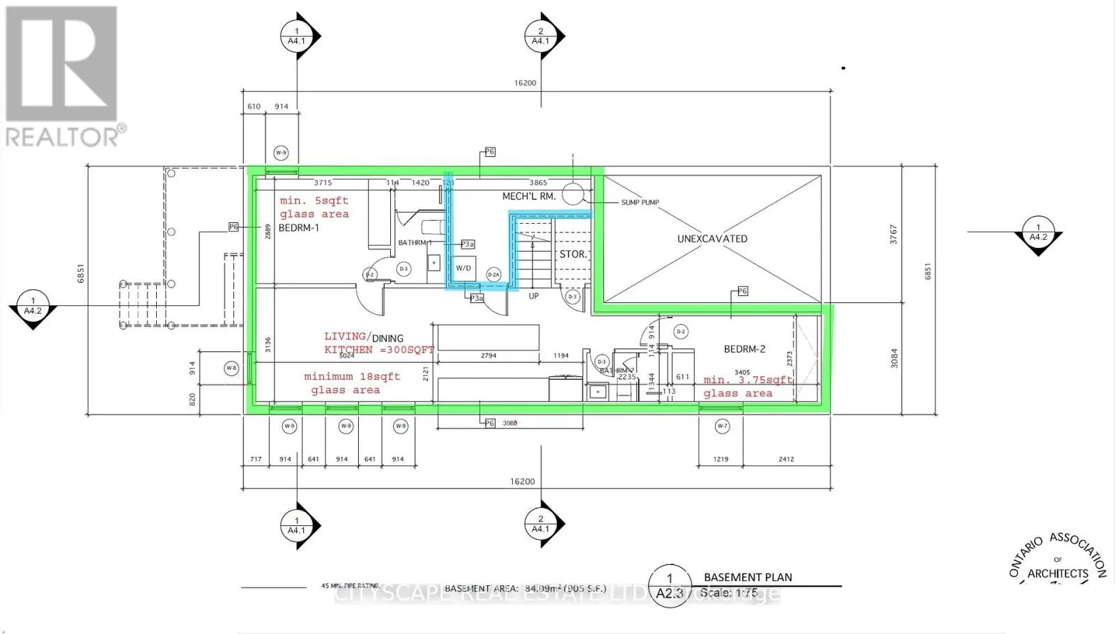
Living room
Basement
Measurements not available
Dining room
Basement
Measurements not available
Kitchen
Basement
Measurements not available
Bedroom
Basement
Measurements not available
Bedroom
Basement
Measurements not available
Bathroom
Basement
Measurements not available
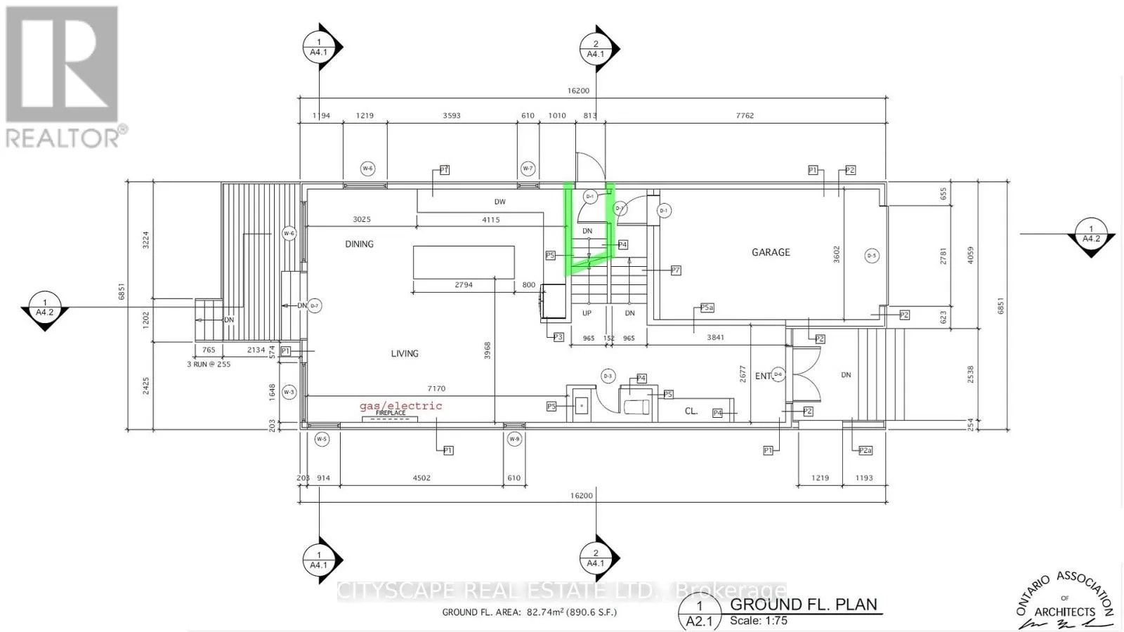
Foyer
Ground level
Measurements not available
Kitchen
Ground level
Measurements not available
Living room
Ground level
Measurements not available
Dining room
Ground level
Measurements not available

Location

Learn more about this property
Listing provided by:
CITYSCAPE REAL ESTATE LTD.
MLS® number:
X12907256
Agent:
Rakesh Chander Babber
*Indicates required field
Name is required
Email is required
Please enter a valid phone number (e.g., 416-111-1111).