45a Howard Street, Hagersville, Ontario N0A 1H0

Listed for:
$659,900
3 beds
3 baths
Listed 116 days ago
House for rent: 45a Howard Street, Hagersville, Ontario N0A 1H0

View all 15 photos

About

King St W, South on Howard St Take advantage of the new HST rebate with this incredible opportunity to own a brand-new home at a reduced price. Stylish finishes, functional layout, and exceptional value make this a must-see. This stunning, brand new 1,887 sq. ft. semi-detached home has been crafted by renowned builder Venture Homes and is situated in an established Hagersville neighbourhood. Featuring a bright and spacious main floor with engineered hardwood, this home offers large principal rooms perfect for entertaining and family life. The chef’s kitchen boasts quartz countertops, an island, stylish backsplash, under-cabinet lighting, and soft-close cabinetry. Upstairs, three oversized bedrooms await, including a primary suite with a huge walk-in closet and a convenient ensuite bath. Enjoy the practicality of a second-floor laundry room and a total of three modern bathrooms. Additional upgrades include central air, an insulated garage with automatic opener and a 10’ wide door, a covered front porch, elegant wood railings with steel balustrades, 5” baseboards throughout and ideally situated on a 140’ deep lot offering rear access from a rear alley. Includes 4 appliances, Tankless water heater, back deck and insulated garage with garage door opener. Quick closing is available. Attractive financing guaranteed 3.99% for 3-5 yr mortgages 25 yr amortization OAC. The home is Tarion-certified for peace of mind, and the location is unbeatable—close to schools, shopping, and the hospital. Move-in ready with no disappointments! (id:27476)

Property Highlights

MLS® Number
40801057
Type
Single Family
Ownership Type
Freehold
Land Size
under 1/2 acre
Parking Space Total
5

Building

Building Type
House
Storeys
2.00
Square Footage
1887 sqft
Bathrooms Total
3
Bedrooms Above Ground
3
Bedrooms Total
3
Amenities
Golf Nearby, Hospital, Place of Worship, Schools
Exterior Finish
Stone, Vinyl siding
Fireplace Present
Yes
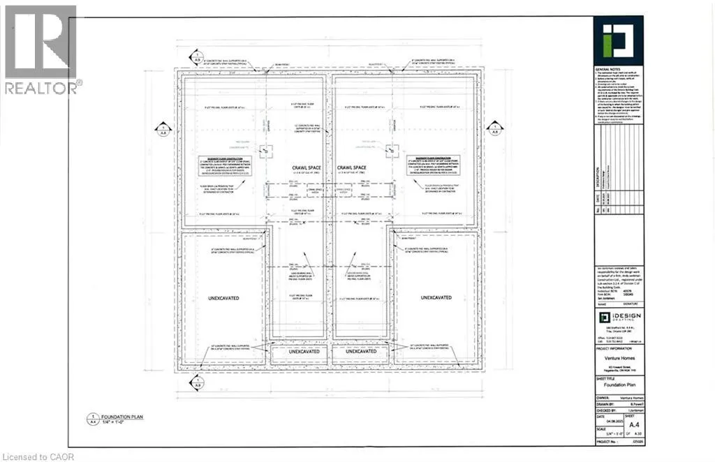
Basement Type
Crawl space (Unfinished)
Basement Features
Building Heating Type
Forced air
Heating Fuel
Natural gas
Building Cooling Type
Central air conditioning

Utilities

Water
Municipal water
Utility Sewer
Municipal sewage system

Room Layout

Other
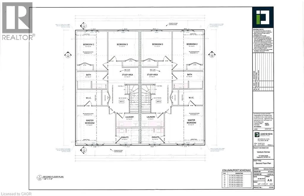
Second level
6'3'' x 6'0''
Laundry room
Second level
5'0'' x 8'6''
4pc Bathroom
Second level
Measurements not available
Bedroom
Second level
11'0'' x 11'6''
Bedroom
Second level
12'6'' x 11'6''
Full bathroom
Second level
8'6'' x 6'0''
Primary Bedroom
Second level
14'3'' x 14'7''
Utility room
Basement
Measurements not available
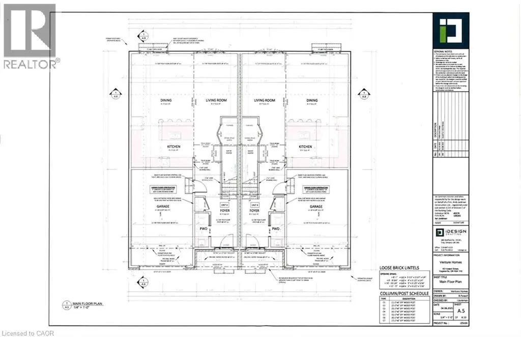
Living room
Main level
13'9'' x 9'7''
Dining room
Main level
13'9'' x 13'8''
Kitchen
Main level
11'2'' x 13'8''
2pc Bathroom
Main level
7'6'' x 3'1''
Foyer
Main level
10'8'' x 5'10''

Location

Learn more about this property
Listing provided by:
RE/MAX Escarpment Realty Inc.
MLS® number:
40801057
Agent:
Peter Vandendool
*Indicates required field
Name is required
Email is required
Please enter a valid phone number (e.g., 416-111-1111).