109 Cross Street E, Haldimand, Ontario N1A 1B7

Listed for:
$515,000
3 beds
1 baths
Listed 52 days ago
House for rent: 109 Cross Street E, Haldimand, Ontario N1A 1B7

View all 32 photos

Learn more about this property
Listing provided by:
ROYAL LEPAGE NRC REALTY
MLS® number:
X12342608
Agent:
Sherry Hoover
*Indicates required field
Name is required
Email is required
Please enter a valid phone number (e.g., 416-111-1111).

About

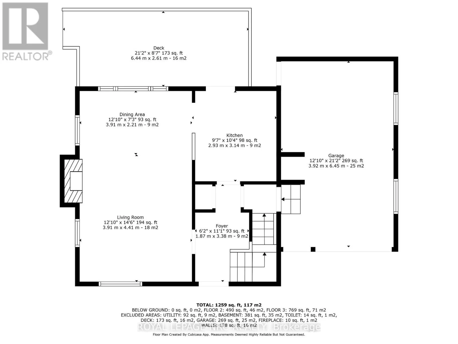
Cross Streets: Cedar and Cross. ** Directions: Hwy 3/Broad St to Cedar, turn North, to Cross St E, turn right. Loads of character in this fabulous home! Lots of hardwood, beautiful windows, natural wood trim and doors. Main floor features a galley kitchen open to the dining area and a large living room with a woodburning fireplace. Note that the fireplace has not been used. There is access from the kitchen to a great deck overlooking the mostly fenced manageable yard! Just enough room for gardens and a play area but not overwhelming and quick to cut! The upstairs has 4 bedrooms and a bathroom with a large walk in shower. The primary bedroom is huge and if you don't need 4 bedrooms, this spacious room could be your family room! The laundry has cleverly been put into the garage area to be more manageable for the owners, but there is still lots of room if you want to use it for your car! The basement is full , unspoiled and could be finished. There is roughed in bathroom that could also be finished. Updates include many windows 2019, front door 2019, back door 2016, deck 2018 and furnace and air 2016.The laundry has cleverly been put into the garage area to be more manageable for the owners. This home needs some TLC but if you love the character, you can only make it your own. No neighbours to the east, just a laneway! Only a few minutes walk to downtown and the GRAND RIVER! (id:27476)

Property Highlights

MLS® Number
X12342608
Type
Single Family
Community Name
Dunnville
Ownership Type
Freehold
Land Size
45 x 60.1 FT
Parking Space Total
2

Building

Building Type
House
Storeys
2.00
Square Footage
1100 - 1500 sqft
Bathrooms Total
1
Bedrooms Above Ground
3
Bedrooms Total
3
Amenities
Fireplace(s) Marina
Exterior Finish
Vinyl siding
Fireplace Present
Yes
Basement Type
Full (Unfinished)
Basement Features
Building Heating Type
Forced air
Heating Fuel
Natural gas
Building Cooling Type
Central air conditioning

Utilities

Water
Municipal water
Utility Sewer
Sanitary sewer

Room Layout

Primary Bedroom
Second level
6.44 m x 3.92 m
Bedroom 2
Second level
3.26 m x 2.36 m
Bedroom 3
Second level
4.37 m x 3.25 m
Bedroom 4
Second level
3.44 m x 3.24 m
Bathroom
Second level
2.2 m x 1.6 m
Utility room
Basement
2.92 m x 2.74 m
Other
Basement
6.62 m x 5.89 m
Foyer
Main level
3.38 m x 1.87 m
Living room
Main level
4.41 m x 3.91 m
Kitchen
Main level
3.14 m x 2.93 m
Dining room
Main level
2.21 m x 3.91 m

Location

Community Spotlight: Homes For sale in Your Neighborhood