14 - 334 Rattlesnake Road, Haldimand, Ontario N0A 1K0

Listed for:
$50,000
1 beds
1 baths
Listed 33 days ago
Mobile Home for rent: 14 - 334 Rattlesnake Road, Haldimand, Ontario N0A 1K0

View all 28 photos

About

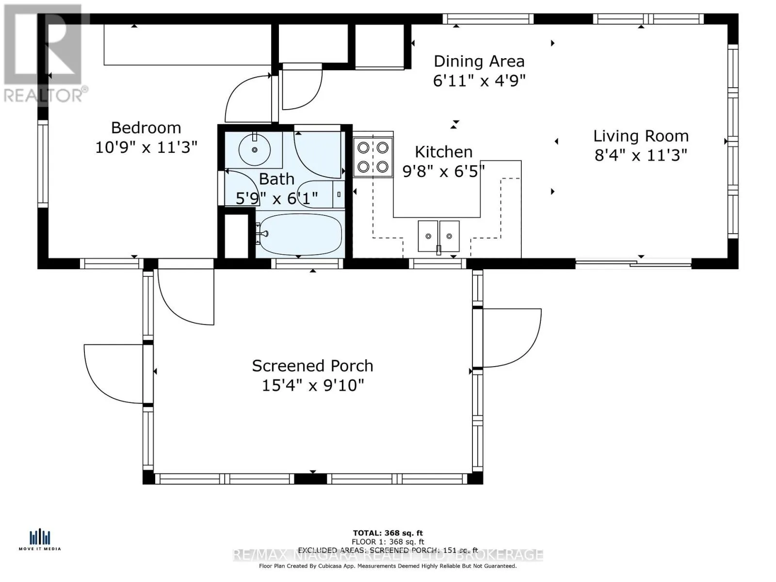
When you enter the park, keep left and unit 14 will be on the right hand side. Looking for a seasonal escape from the hustle and bustle of city life? Unit 14 - 334 Rattlesnake Road is your perfect summer retreat! Located in the peaceful, privately-owned Sandy Acres Park, this seasonal-use property offers the ideal setting to relax, recharge, and enjoy the warmer months. This charming one-bedroom, 400 sq ft mobile home is designed for easy, low-maintenance living perfect for weekend getaways or extended stays during the spring, summer, and fall. The spacious 15'4" x 9'10" screened-in porch extends your living space and makes three-season enjoyment a breeze. A brand-new deck, built in 2024, provides the perfect spot to savor your morning coffee or unwind in the fresh country air. As part of a friendly community on leased land, you'll enjoy access to a large swimming pool and a clubhouse for social gatherings. Green thumbs will appreciate the rich soil for gardening, plus the bonus of pear and peach trees on the property! (id:27476)

Property Highlights

MLS® Number
X12693094
Type
Single Family
Community Name
Dunnville
Ownership Type
Leasehold/Leased Land
Land Size
under 1/2 acre
Parking Space Total
2

Building

Building Type
Mobile Home
Square Footage
0 - 699 sqft
Bathrooms Total
1
Bedrooms Above Ground
1
Bedrooms Total
1
Exterior Finish
Vinyl siding
Fireplace Present
No
Basement Type
None
Basement Features
Building Heating Type
Forced air
Heating Fuel
Propane
Building Cooling Type
None

Utilities

Water
Community Water System, Cistern
Utility Sewer
Septic System

Room Layout

Living room
Main level
3.43 m x 2.54 m
Kitchen
Main level
2.95 m x 1.96 m
Dining room
Main level
2.11 m x 1.45 m
Bedroom
Main level
3.43 m x 3.28 m
Bathroom
Main level
1.85 m x 1.75 m
Sunroom
Main level
4.67 m x 3 m

Location

Learn more about this property
Listing provided by:
RE/MAX NIAGARA REALTY LTD, BROKERAGE
MLS® number:
X12693094
Agent:
Nicki Lumsden
*Indicates required field
Name is required
Email is required
Please enter a valid phone number (e.g., 416-111-1111).

Community Spotlight: Homes For sale in Your Neighborhood