697 Highway 56, Haldimand, Ontario N0A 1R0

Listed for:
$739,900
3 beds
1 baths
Listed 13 days ago
House for rent: 697 Highway 56, Haldimand, Ontario N0A 1R0

View all 24 photos

About

Cross Streets: Concession 2nd. ** Directions: Highway #56 past Empire Corners, property on the right. Rare 10-acre opportunity! Solid 3-bedroom bungalow set on a picturesque 10-acrecountry property, featuring privacy, space, and endless opportunity. Well-built home with a functional layout, 3 bedrooms, 1 bathroom on the main floor. There is potential in the basement for a separate apartment or in-law suite. Ideal for those looking to renovate, expand, or enjoy peaceful rural living. Perfect for hobby farmers, nature lovers, or buyers seeking land for future potential. A rare chance to own a sizable acreage while still being within close distance to all town amenities. Opportunity knocks-bring your vision and make it your own. (id:27476)

Property Highlights

MLS® Number
X12750160
Type
Single Family
Community Name
Haldimand
Ownership Type
Freehold
Land Size
330 x 1320 FT|10 - 24.99 acres
Parking Space Total
10

Building

Building Type
House
Storeys
1.00
Square Footage
1100 - 1500 sqft
Bathrooms Total
1
Bedrooms Above Ground
3
Bedrooms Total
3
Exterior Finish
Brick
Fireplace Present
Yes
Basement Type
N/A, N/A (Partially finished)
Basement Features
Walk out
Building Heating Type
Forced air
Heating Fuel
Natural gas
Building Cooling Type
Central air conditioning

Utilities

Utility Sewer
Septic System

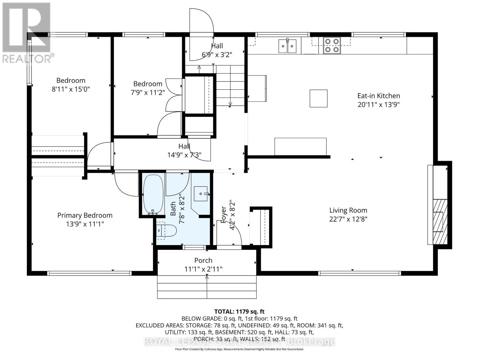
Room Layout

Kitchen
Main level
6.38 m x 4.19 m
Living room
Main level
6.88 m x 3.86 m
Foyer
Main level
1.27 m x 2.49 m
Primary Bedroom
Main level
4.19 m x 3.38 m
Bedroom
Main level
2.72 m x 4.57 m
Bedroom
Main level
2.36 m x 3.4 m
Bathroom
Main level
2.34 m x 2.49 m

Location

Learn more about this property
Listing provided by:
ROYAL LEPAGE STATE REALTY
MLS® number:
X12750160
Agent:
Michelle Mans
*Indicates required field
Name is required
Email is required
Please enter a valid phone number (e.g., 416-111-1111).