92 Hoover Point Lane, Haldimand, Ontario N0A 1P0

Listed for:
$799,000
3 beds
1 baths
Listed 15 days ago
House for rent: 92 Hoover Point Lane, Haldimand, Ontario N0A 1P0

View all 47 photos

About

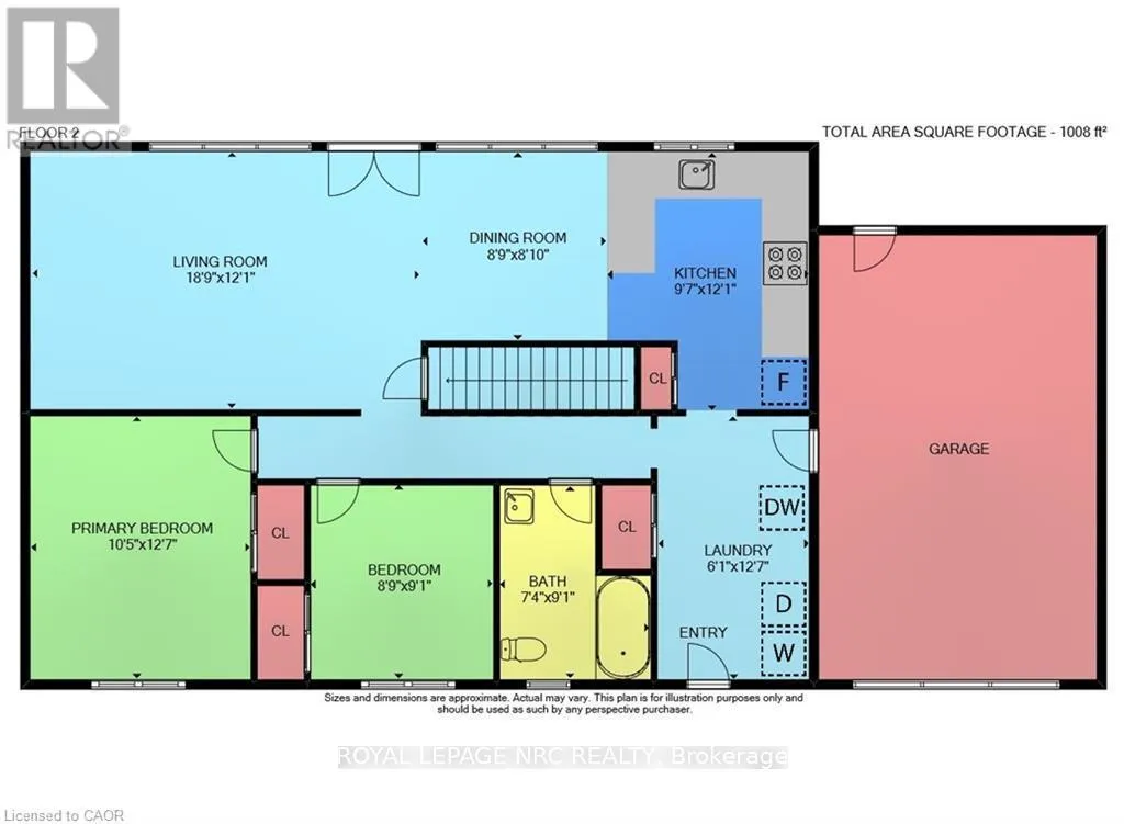
Cross Streets: Lakeshore Road. ** Directions: Off Lakeshore Rd between Haldimand Rd 12 and Erie St S. Lake Erie Living at it's finest! This year-round lake-house/cottage offers nearly 2000 sqft of living space with 3 bedrooms and a finished lower level. It is located on a premium acre waterfront lot on Hoover's Point Lane, featuring panoramic views and a private beach with about 100 ft of sandy shoreline extending into the clear waters of Lake Erie. The house sits on high ground with a gradual slope to the beach, no break-wall needed. The property includes a paved driveway for 4 vehicles and an RV/boat, interlock brick walkways, privacy fenced yard, mature trees, manicured lawn, vibrant gardens, and extraordinary landscape. There is also an attached garage with inside entry and a detached boathouse/workshop. Inside, the custom kitchen has attractive cabinetry, elegant quartz countertops, and hi-end stainless steel appliances. The open concept dining and living room offer large windows with lake views and garden doors leading to a composite deck overlooking the lake offering stunning sunrises as you enjoy your morning coffee. The main floor includes a foyer with laundry and a dishwasher, a designer 4pc bathroom, primary and guest bedrooms, both with custom closets. The finished basement has a 3rd bedroom/home office, family room with gas fireplace, storage room, and utility room with shelving and plenty of storage space. Additional features include a metal roof, updated windows and exterior doors, luxury vinyl plank flooring, 200-amp hydro, central-air, hi-efficiency furnace, electronic air cleaner, full Aerobic septic system, two 5000-gallon cisterns, and Starlink hi-speed internet. Must view to appreciate the attention to detail, quality finishes, & amp; overall "feel" of this lovingly maintained home. Located minutes to Selkirk, Fisherville, and Port Dover, with a public boat launch about 1 km away. Convenient commutes to Dunnville or Cayuga, and 1-2hr drives from Hamilton, Niagara, or Toronto. Ideal for a home, cottage, or for those looking to retire in style! (id:27476)

Property Highlights

MLS® Number
X12893316
Type
Single Family
Community Name
Haldimand
Ownership Type
Freehold
Land Size
100.9 x 179.9 FT|1/2 - 1.99 acres
Parking Space Total
6

Building

Building Type
House
Storeys
1.00
Square Footage
700 - 1100 sqft
Bathrooms Total
1
Bedrooms Above Ground
2
Bedrooms Total
3
Amenities
Fireplace(s) Beach, Hospital, Marina, Park
Exterior Finish
Vinyl siding
Fireplace Present
Yes
Basement Type
Full (Finished)
Basement Features
Building Heating Type
Forced air
Heating Fuel
Natural gas
Building Cooling Type
Central air conditioning

Utilities

Water
Cistern
Utility Sewer
Septic System

Room Layout

Bedroom
Basement
3.63 m x 3.23 m
Family room
Basement
10.79 m x 3.48 m
Utility room
Basement
3.63 m x 5.56 m
Other
Basement
2.82 m x 1.65 m
Laundry room
Main level
3.84 m x 1.85 m
Kitchen
Main level
3.68 m x 2.92 m
Dining room
Main level
2.69 m x 2.67 m
Living room
Main level
5.72 m x 3.68 m
Primary Bedroom
Main level
3.84 m x 3.17 m
Bedroom
Main level
2.77 m x 2.67 m
Bathroom
Main level
2.77 m x 2.24 m

Location

Learn more about this property
Listing provided by:
ROYAL LEPAGE NRC REALTY
MLS® number:
X12893316
Agent:
Darren Papineau
*Indicates required field
Name is required
Email is required
Please enter a valid phone number (e.g., 416-111-1111).

Community Spotlight: Homes For sale in Your Neighborhood