70 Postma Drive, Haldimand, Ontario N1A 0B2

Listed for:
$599,900
3 beds
2 baths
Listed 12 days ago
House for rent: 70 Postma Drive, Haldimand, Ontario N1A 0B2

View all 44 photos

About

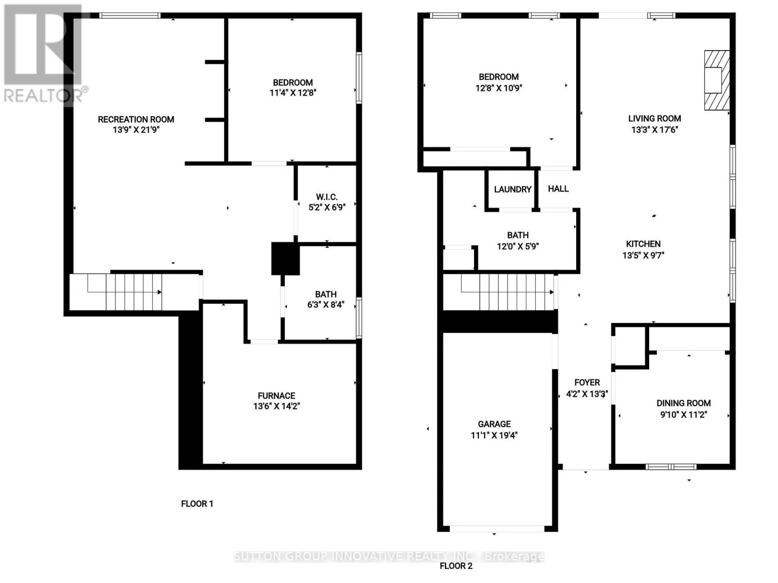
Cross Streets: GEORGE/POSTMA. ** Directions: GEORGE ST. TO POSTMA. Welcome to this well-maintained 2016 home on a quiet street in Dunnville, offering a comfortable layout and a long list of recent updates. Fresh main floor paint(2025), new front and back landscaping (2024), a beach stone garden path (2025),and a stone gas fireplace added in 2024 all contribute to the move-in-ready feel.The main floor features engineered hardwood throughout, an open layout, and a kitchen with island and new black Blanco sink and faucet (2025), open to the living room with gas fireplace. Sliding doors lead to the back deck and gazebo with sun and privacy shields added in 2025. Two bedrooms on the main level, with one currently used as a dining room, plus a 3-piece bathroom with in-unit laundry.The lower level offers additional living space with a bedroom, walk-in closet, rec room, 4-piece bathroom, and utility room.Attached garage. Located close to the Grand River, local amenities, and within a reasonable drive to Hamilton. A solid option for buyers looking for more space and a quieter setting. (id:27476)

Property Highlights

MLS® Number
X12902722
Type
Single Family
Community Name
Dunnville
Ownership Type
Freehold
Land Size
31.8 x 90.6 FT|under 1/2 acre
Parking Space Total
2

Building

Building Type
House
Storeys
1.00
Square Footage
700 - 1100 sqft
Bathrooms Total
2
Bedrooms Above Ground
2
Bedrooms Total
3
Amenities
Fireplace(s) Golf Nearby, Hospital, Park, Place of Worship
Exterior Finish
Stone, Vinyl siding
Fireplace Present
Yes
Basement Type
Full (Finished)
Basement Features
Building Heating Type
Forced air
Heating Fuel
Natural gas
Building Cooling Type
Central air conditioning

Utilities

Water
Municipal water
Utility Sewer
Sanitary sewer

Room Layout

Bathroom
Basement
Measurements not available
Recreational, Games room
Basement
4.19 m x 6.63 m
Bedroom 3
Basement
3.45 m x 3.86 m
Bathroom
Basement
Measurements not available
Kitchen
Main level
4.09 m x 2.92 m
Living room
Main level
4.04 m x 5.33 m
Bedroom
Main level
3.86 m x 3.28 m
Bedroom 2
Main level
3 m x 3.38 m
Bathroom
Main level
Measurements not available

Location

Learn more about this property
Listing provided by:
SUTTON GROUP INNOVATIVE REALTY INC.
MLS® number:
X12902722
Agent:
Laura Doucette
*Indicates required field
Name is required
Email is required
Please enter a valid phone number (e.g., 416-111-1111).