3184 Lakeshore Road, Haldimand, Ontario N1A 2W8

Listed for:
$1,199,000
3 beds
2 baths
Listed 51 days ago
House for rent: 3184 Lakeshore Road, Haldimand, Ontario N1A 2W8

View all 27 photos

About

Aikens Road Soaring ceilings, uninterrupted lake views, and striking modern design define this custom-built detached home set in the charming town of Dunnville. The property benefits from a registered right of way providing effortless access to the lake. Thoughtfully designed to maximize light, space, and connection to its natural surroundings, this residence offers a truly unique living experience.The main living level is designed for both everyday living/entertaining, featuring a striking 23-ft vaulted ceiling with floor-to-ceiling windows and gorgeous lake views. A marble-finished fireplace adds a refined focal point. The open concept space features engineered hardwood flooring, a sleek open-concept kitchen with oversized island, built-in appliances. Walk out to your waterfront-view composite deck with outdoor dining/cooking area and modern, glass railings.Privately set above the living space, the lofted primary suite offers a truly special retreat. Overlooking the main living space below, this airy and light-filled sanctuary feels both connected and secluded, with generous proportions, a walk-in closet, and elevated views that create a calm, resort-like atmosphere.Upon entry at the ground level, an impressive garage space with sauna, gym and mechanical room adds exceptional utility and flexibility. An additional detached garage, storage shed, and expansive asphalt driveway further enhance the functionality of the property.Located just minutes from the Grand River, Byng Island Conservation Area, Rock Point Provincial Park, and local amenities, this home offers the perfect balance of small-town charm and outdoor lifestyle. (id:27476)

Property Highlights

MLS® Number
X12926128
Type
Single Family
Community Name
Dunnville
Ownership Type
Freehold
Land Size
120 x 103 FT
Parking Space Total
8

Building

Building Type
House
Storeys
3.00
Square Footage
1500 - 2000 sqft
Bathrooms Total
2
Bedrooms Above Ground
3
Bedrooms Total
3
Amenities
Beach, Golf Nearby
Exterior Finish
Steel, Stone
Fireplace Present
Yes
Basement Type
None
Basement Features
Building Heating Type
Forced air
Heating Fuel
Propane
Building Cooling Type
Central air conditioning

Utilities

Water
Cistern
Utility Sewer
Septic System

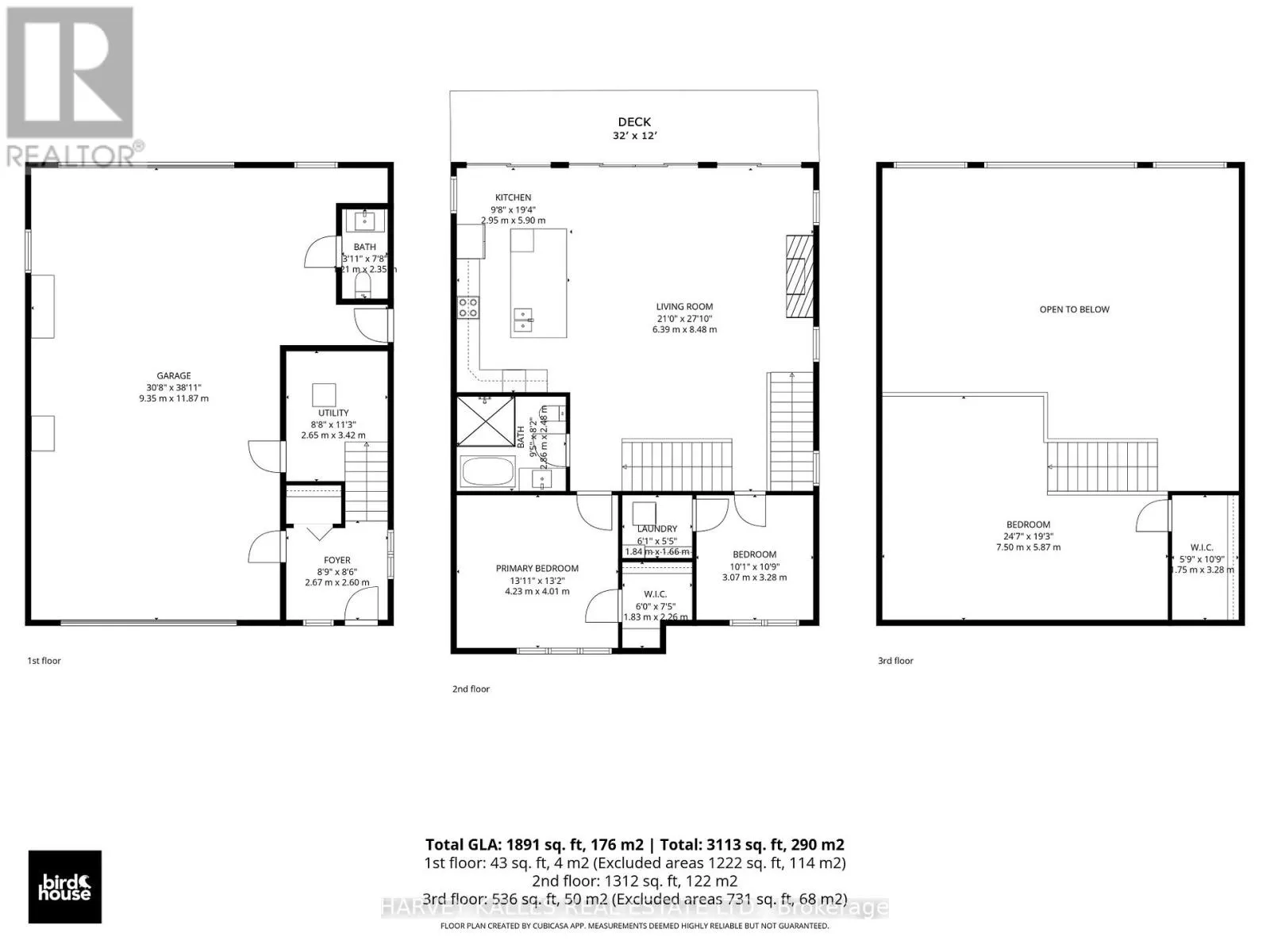
Room Layout

Living room
Main level
6.39 m x 8.48 m
Kitchen
Main level
2.95 m x 5.9 m
Bathroom
Main level
2.86 m x 2.48 m
Bedroom
Main level
4.23 m x 4.01 m
Bedroom 2
Main level
3.07 m x 3.28 m
Laundry room
Main level
1.84 m x 1.66 m
Bedroom 3
Upper Level
7.5 m x 5.87 m
Foyer
Ground level
2.67 m x 2.6 m
Utility room
Ground level
2.65 m x 3.42 m
Partial bathroom
Ground level
1.21 m x 2.35 m

Location

Learn more about this property
Listing provided by:
HARVEY KALLES REAL ESTATE LTD.
MLS® number:
X12926128
Agent:
Donna Thompson
*Indicates required field
Name is required
Email is required
Please enter a valid phone number (e.g., 416-111-1111).

Street Spotlight - For sale