5 Main Street N, Halton Hills, Ontario L7J 1V9

Listed for:
$299,999
0 beds
0 baths
Listed 53 days ago
5 Main Street N, Halton Hills, Ontario L7J 1V9

View all 12 photos

Learn more about this property
Listing provided by:
Keller Williams Home Group Realty
MLS® number:
W12397926
Agent:
Garrett Duval
*Indicates required field
Name is required
Email is required
Please enter a valid phone number (e.g., 416-111-1111).

About

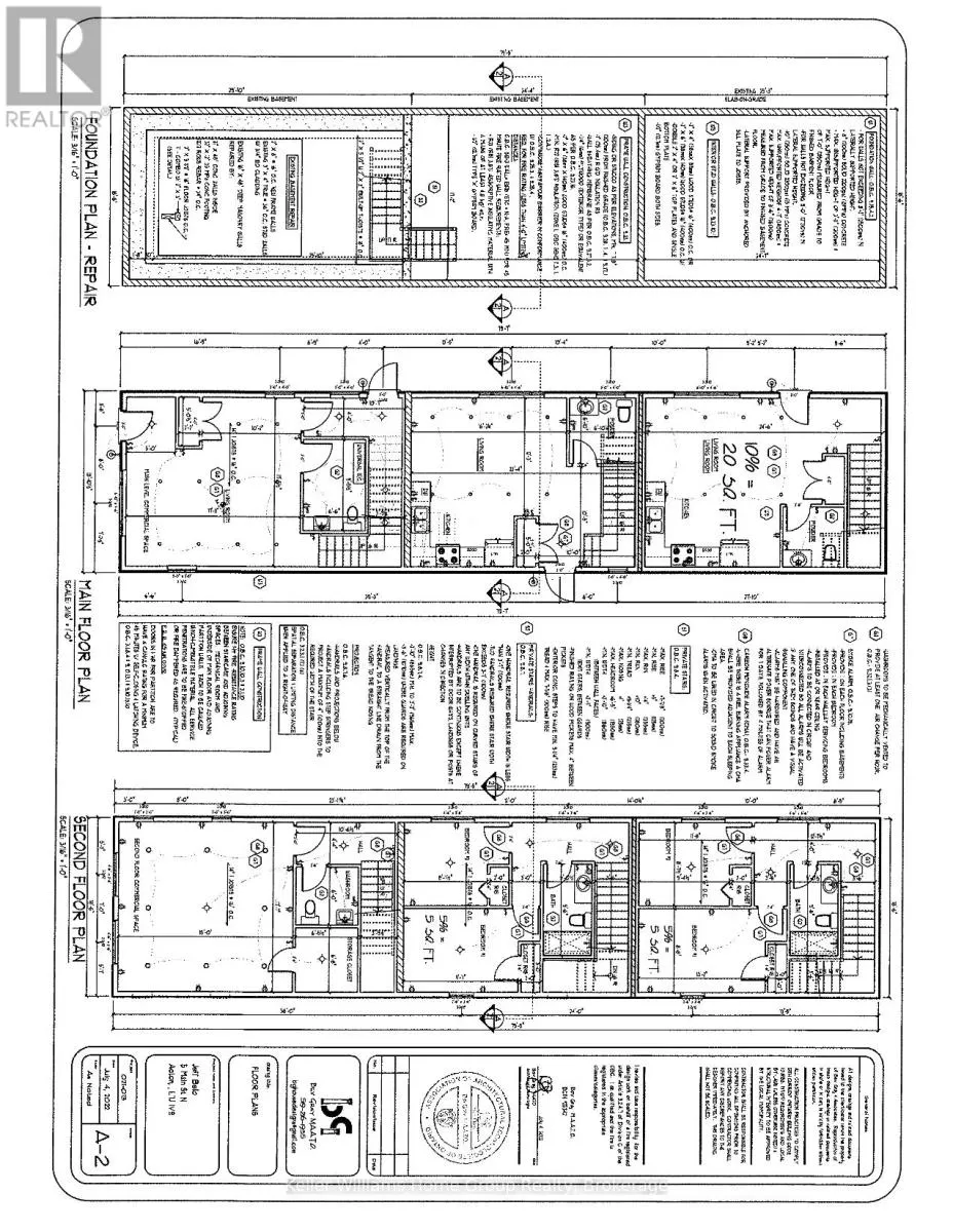
Cross Streets: Mill St & Main St. ** Directions: From Hwy 7 into Acton, property on the east just North of Mill St w, across from plaza. Prime Investment Opportunity! Attention investors and developers! 5 Main Street North offers an exceptional opportunity to bring your vision to life in the heart of Action. This high-exposure lot - 22ft wide by 99ft deep - is ideally positioneed on bustling Main St, offering excellent visibility and foot traffic. A demolition permit is already in the seller's possession saving you valuable time and costs. The lot is ready and waiting for its new owners to create a dynamic mixed-use development or a customized commerical/residential build. Located just steps from shopping, services, and with easy access to major highways, this property provides nearly endless possibilities for retail, office or residential spaces - or a smart combination of all three. Don't miss your chance to secure a strategic spot in a growing community poised for future growth! (id:27476)

Property Highlights

MLS® Number
W12397926
Type
Retail
Community Name
1045 - AC Acton
Land Size
22 x 90 FT

Building

Amenities
Highway
Fireplace Present
No
Basement Type
Basement Features
Building Heating Type
Other
Heating Fuel
Building Cooling Type
None

Utilities

Water
Municipal water

Location

Street Spotlight - For sale