Lot 3 Newman Place, Halton Hills, Ontario L7G 4S4

Listed for:
$1,999,900
4 beds
5 baths
Listed 61 days ago
House for rent: Lot 3 Newman Place, Halton Hills, Ontario L7G 4S4

View all 8 photos

Learn more about this property
Listing provided by:
ROCK STAR REAL ESTATE INC.
MLS® number:
W12414579
Agent:
Paul D'abruzzo
*Indicates required field
Name is required
Email is required
Please enter a valid phone number (e.g., 416-111-1111).

About

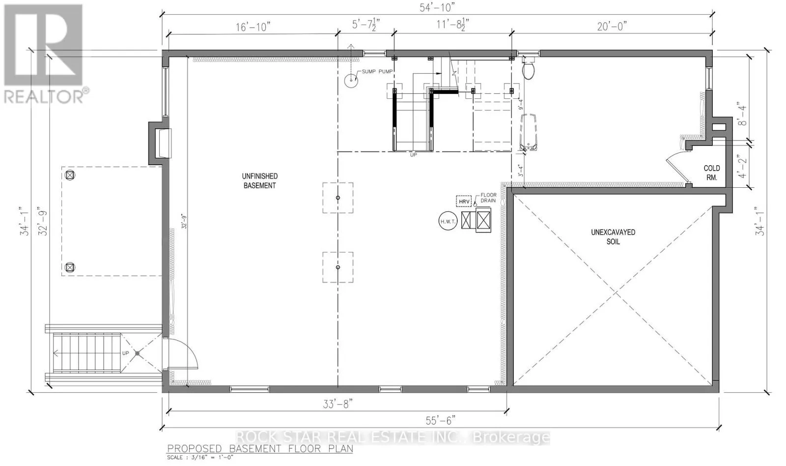
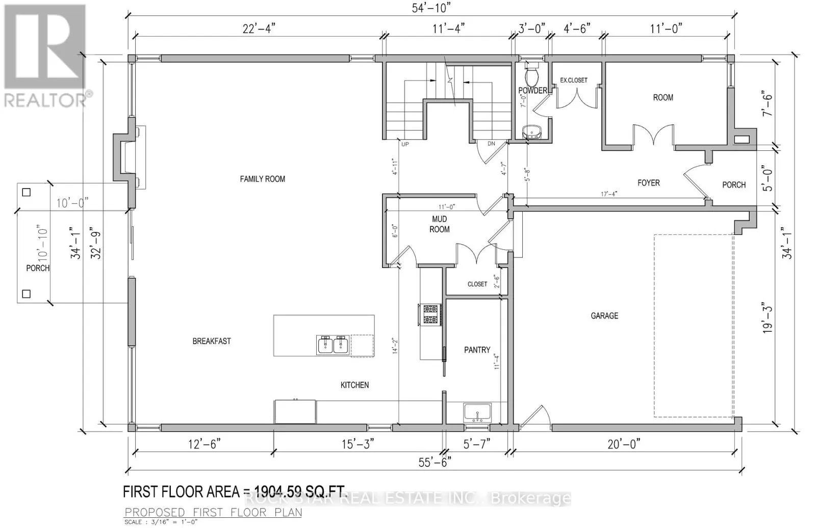
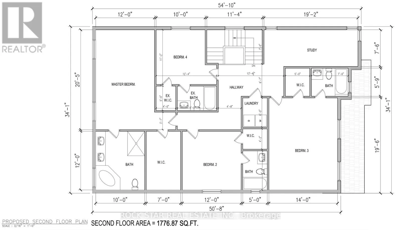
Cross Streets: Trafalgar Rd & Berton. ** Directions: South of Berton Blvd. Custom Built Dream Home on picture-perfect Cul-De-Sac, fronting Newman Place in Georgetown. Professionally designed floor plans range from 3200 - 3800 sqft with emphasis on efficiency, privacy, and the modern family. The deep lot allows for ample entertainment and sanctuary space in your private yard. Parents will appreciate the quiet street while kids play street hockey & hopscotch. Closings and possession in 15-18 months with full Tarion warranty. Quality built from BlueStone Customs and HST included in the price! Appointments with the builder are available to design your custom floor plan. (id:27476)

Property Highlights

MLS® Number
W12414579
Type
Single Family
Community Name
Georgetown
Ownership Type
Freehold
Land Size
40 x 134 FT
Parking Space Total
4

Building

Building Type
House
Storeys
2.00
Square Footage
3500 - 5000 sqft
Bathrooms Total
5
Bedrooms Above Ground
4
Bedrooms Total
4
Amenities
Fireplace(s) Hospital, Park, Schools
Exterior Finish
Brick
Fireplace Present
Yes
Basement Type
Full (Unfinished)
Basement Features
Building Heating Type
Forced air
Heating Fuel
Natural gas
Building Cooling Type
Central air conditioning

Utilities

Water
Municipal water
Utility Sewer
Sanitary sewer

Room Layout

Primary Bedroom
Second level
3.66 m x 6.22 m
Bedroom
Second level
3.66 m x 3.66 m
Bedroom
Second level
3.76 m x 3.4 m
Bedroom
Second level
4.27 m x 5.94 m
Family room
Second level
4.84 m x 2.29 m
Kitchen
Main level
4.27 m x 4.65 m
Dining room
Main level
4.27 m x 3.81 m
Living room
Main level
5.72 m x 6.81 m
Office
Main level
2.34 m x 3.35 m

Location

Community Spotlight: Homes For sale in Your Neighborhood