7037 Beech Street, Hamilton Township, Ontario K9A 4K1

Listed for:
$749,000
3 beds
3 baths
Listed 32 days ago
House for rent: 7037 Beech Street, Hamilton Township, Ontario K9A 4K1

View all 6 photos

About

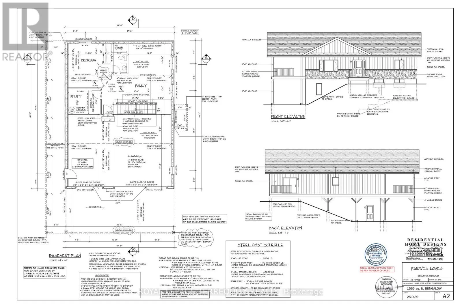
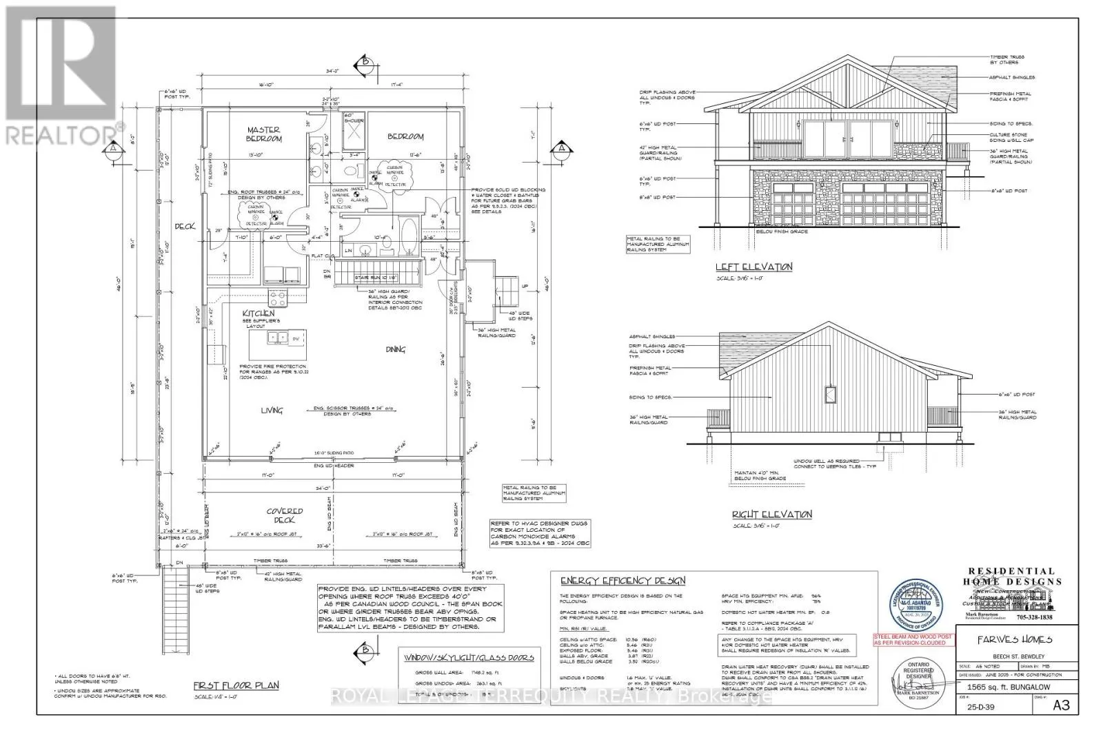
Cross Streets: Cr 28/ Boundary Rd. ** Directions: Head east on Boundary Road toward Bewdley. Continue until you reach Beech Street. Turn right onto Beech Street. Property is on the right-hand side. Customize your dream home before completion! This brand-new bungalow with ICF foundation, to be built on a picturesque 0.58-acre lot, offers the perfect blend of modern design and natural beauty. Featuring 2+1 bedrooms and three baths, this thoughtfully designed home showcases open-concept living with large windows that fill the space with natural light. The gourmet kitchen includes a centre island and flows effortlessly into the living and dining area, complete with an elegant electric fireplace and walkout to a covered deck overlooking the treed lot. The lower level provides a bright, finished walkout basement with an additional bedroom, full bath, and flexible living space ideal for guests, family, or a home office. A spacious three-car attached garage with a man door provides plenty of room for vehicles, tools, and storage, insulated with rough in for heat. Surrounded by mature trees and natural green space, this property offers peace and privacy just minutes from Rice Lake and local amenities. Whether you're looking for a full-time residence or a retreat from city life, this stunning new build can truly be the home of your dreams. Renderings are for illustration purposes only and may not reflect the final finishes, features, or layout of the completed home. (id:27476)

Property Highlights

MLS® Number
X12697174
Type
Single Family
Community Name
Bewdley
Ownership Type
Freehold
Land Size
269.1 x 94.1 FT|1/2 - 1.99 acres
Parking Space Total
7

Building

Building Type
House
Storeys
1.00
Square Footage
1500 - 2000 sqft
Bathrooms Total
3
Bedrooms Above Ground
2
Bedrooms Total
3
Amenities
Fireplace(s) Golf Nearby, Hospital
Exterior Finish
Vinyl siding, Stucco
Fireplace Present
Yes
Basement Type
N/A (Finished)
Basement Features
Building Heating Type
Forced air
Heating Fuel
Natural gas
Building Cooling Type
Central air conditioning

Utilities

Water
Drilled Well
Power
Generator
Utility Sewer
Septic System

Room Layout

Location

Learn more about this property
Listing provided by:
ROYAL LEPAGE TERREQUITY REALTY
MLS® number:
X12697174
Agent:
Mark Prata
*Indicates required field
Name is required
Email is required
Please enter a valid phone number (e.g., 416-111-1111).

Community Spotlight: Homes For sale in Your Neighborhood