12 Weyburn Way, Hamilton, Ontario L8N 2S7

Listed for:
$1,869,900
3 beds
4 baths
Listed 156 days ago
House for rent: 12 Weyburn Way, Hamilton, Ontario L8N 2S7

View all 9 photos

About

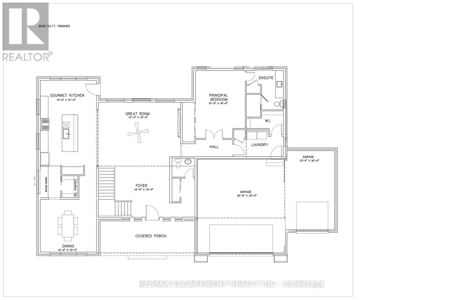
11th Concession E to Hwy 6 to Huntsman Gate to Fireside Dr to Wildan Dr to Logan Crt Welcome to Wildan Estates II, an exclusive new community in Freelton offering custom-built homes on spacious half-acre lots with municipal water, three-car garages, up to 3500 sq. ft. of upscale living. Choose from five thoughtfully designed models bungalows, bungalofts, and two storey homes featuring gourmet kitchens, luxurious bathrooms, 9-foot ceilings, upgraded insulation, EnergyStar windows and high-efficiency HVAC systems. Backed by Tarions warranty, these homes blend quality craftsmanship with rural charm. Nestled between Hamilton and Guelph, the charming village of Freelton offers a serene, scenic setting with a strong sense of community perfect for those seeking a quiet lifestyle without sacrificing convenience. Built by a trusted local homebuilder with over 30 years of experience, each home in Wildan Estates II combines quality craftsmanship with modern design to create a truly exceptional living experience (id:27476)

Property Highlights

MLS® Number
X12208462
Type
Single Family
Community Name
Freelton
Ownership Type
Freehold
Land Size
149 x 185.4 FT
Parking Space Total
6

Building

Building Type
House
Storeys
2.00
Square Footage
2500 - 3000 sqft
Bathrooms Total
4
Bedrooms Above Ground
3
Bedrooms Total
3
Exterior Finish
Brick, Stone
Fireplace Present
Yes
Basement Type
Full (Partially finished)
Basement Features
Building Heating Type
Forced air
Heating Fuel
Natural gas
Building Cooling Type
Central air conditioning

Utilities

Water
Municipal water
Utility Sewer
Septic System

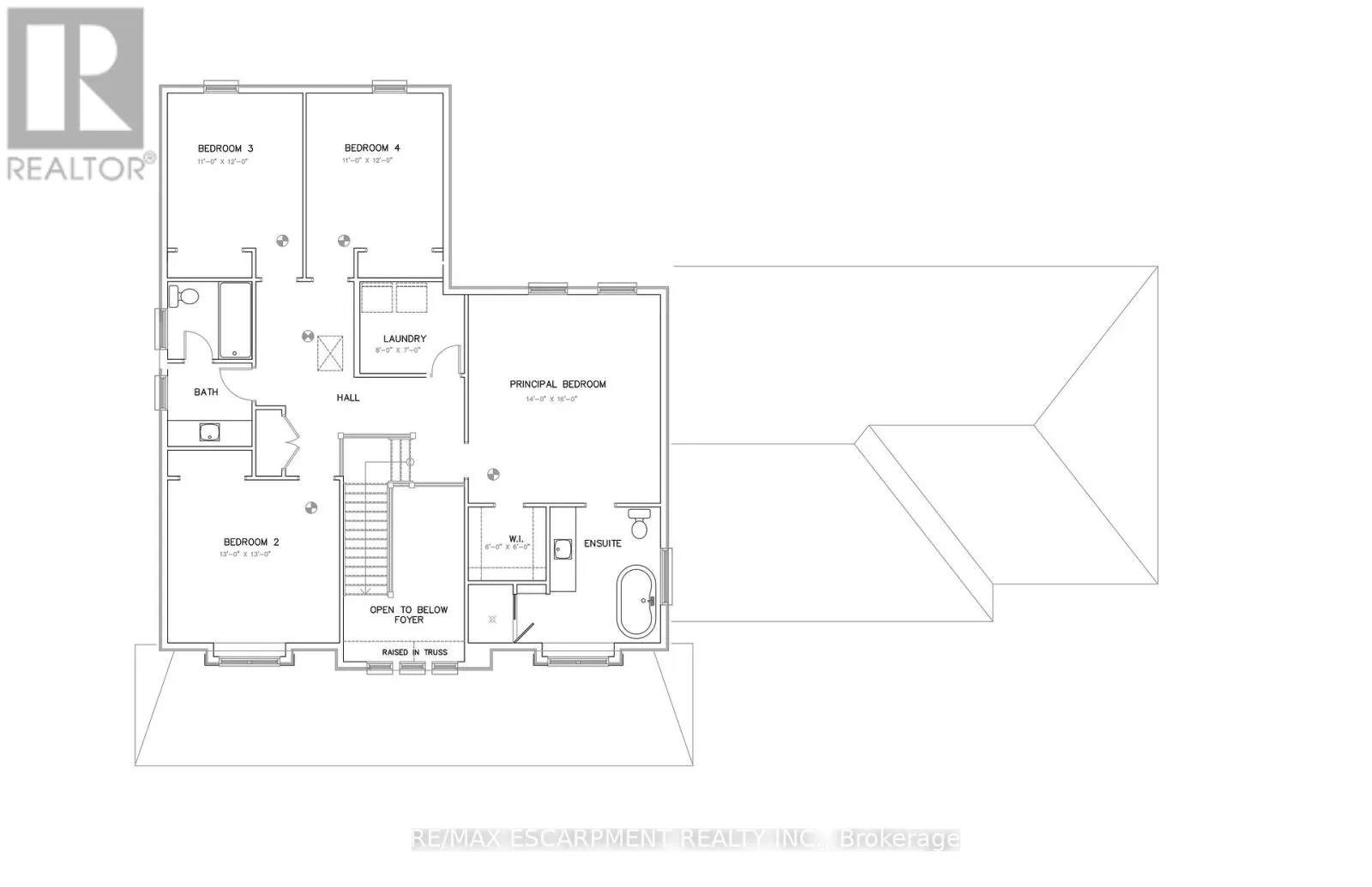
Room Layout

Primary Bedroom
Second level
4.88 m x 4.27 m
Bedroom
Second level
3.96 m x 3.96 m
Bedroom
Second level
3.66 m x 3.35 m
Bedroom
Second level
3.66 m x 3.35 m
Laundry room
Second level
Measurements not available
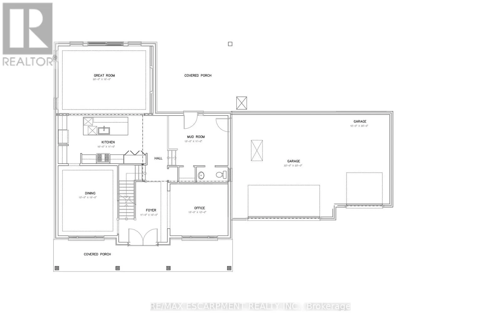
Foyer
Main level
3.35 m x 3.96 m
Mud room
Main level
Measurements not available
Great room
Main level
6.09 m x 4.57 m
Dining room
Main level
4.57 m x 3.96 m
Kitchen
Main level
3.35 m x 3.05 m
Office
Main level
3.96 m x 3.66 m

Location

Learn more about this property
Listing provided by:
RE/MAX ESCARPMENT REALTY INC.
MLS® number:
X12208462
Agent:
Drew Woolcott
*Indicates required field
Name is required
Email is required
Please enter a valid phone number (e.g., 416-111-1111).