15 Logan Court, Hamilton, Ontario L8N 2Z7

Listed for:
$1,897,900
3 beds
2 baths
Listed 340 days ago
House for rent: 15 Logan Court, Hamilton, Ontario L8N 2Z7

View all 9 photos

About

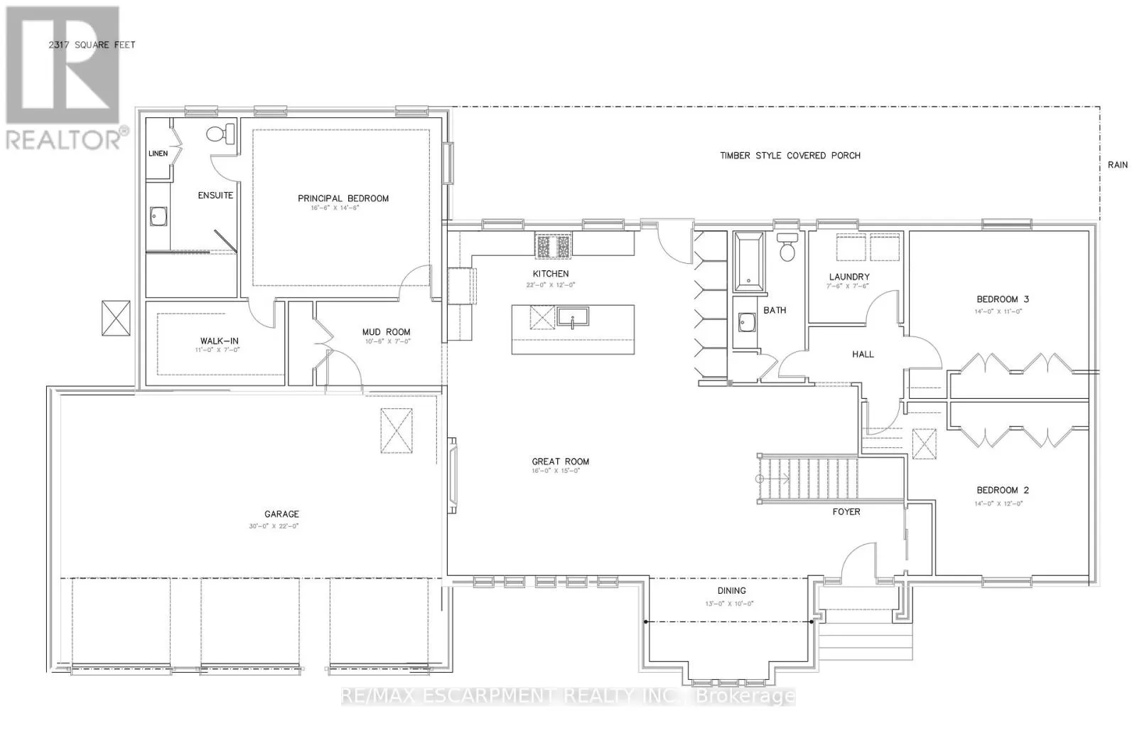
Cross Streets: HWY 6 TO HUNTSMAN GATE TO WILDAN. ** Directions: Hwy 6 to Huntsman Gate to Wildan Dr to Logan Ct. Welcome to Wildan Estates II, an exclusive new community in Freelton offering custom-built homes on spacious half-acre lots with municipal water, three-car garages, up to 3500 sq. ft. of upscale living. Choose your ideal home from the five thoughtfully designed models bungalows, bungalofts, and two-storey homes featuring gourmet kitchens, luxurious bathrooms, 9-foot ceilings, upgraded insulation, EnergyStar windows and high-efficiency HVAC systems. Backed by Tarions warranty, these homes blend quality craftsmanship with rural charm. Nestled between Hamilton and Guelph, the charming village of Freelton offers a serene, scenic setting with a strong sense of community perfect for those seeking a quiet lifestyle without sacrificing convenience. Built by a trusted local homebuilder with over 30 years of experience, each home in Wildan Estates II combines quality craftsmanship with modern design to create a truly exceptional living experience. Taxes are based off vacant land and are to be reassessed (id:27476)

Property Highlights

MLS® Number
X12209771
Type
Single Family
Community Name
Rural Flamborough
Ownership Type
Freehold
Land Size
144 x 183 FT|1/2 - 1.99 acres
Parking Space Total
6

Building

Building Type
House
Storeys
1.00
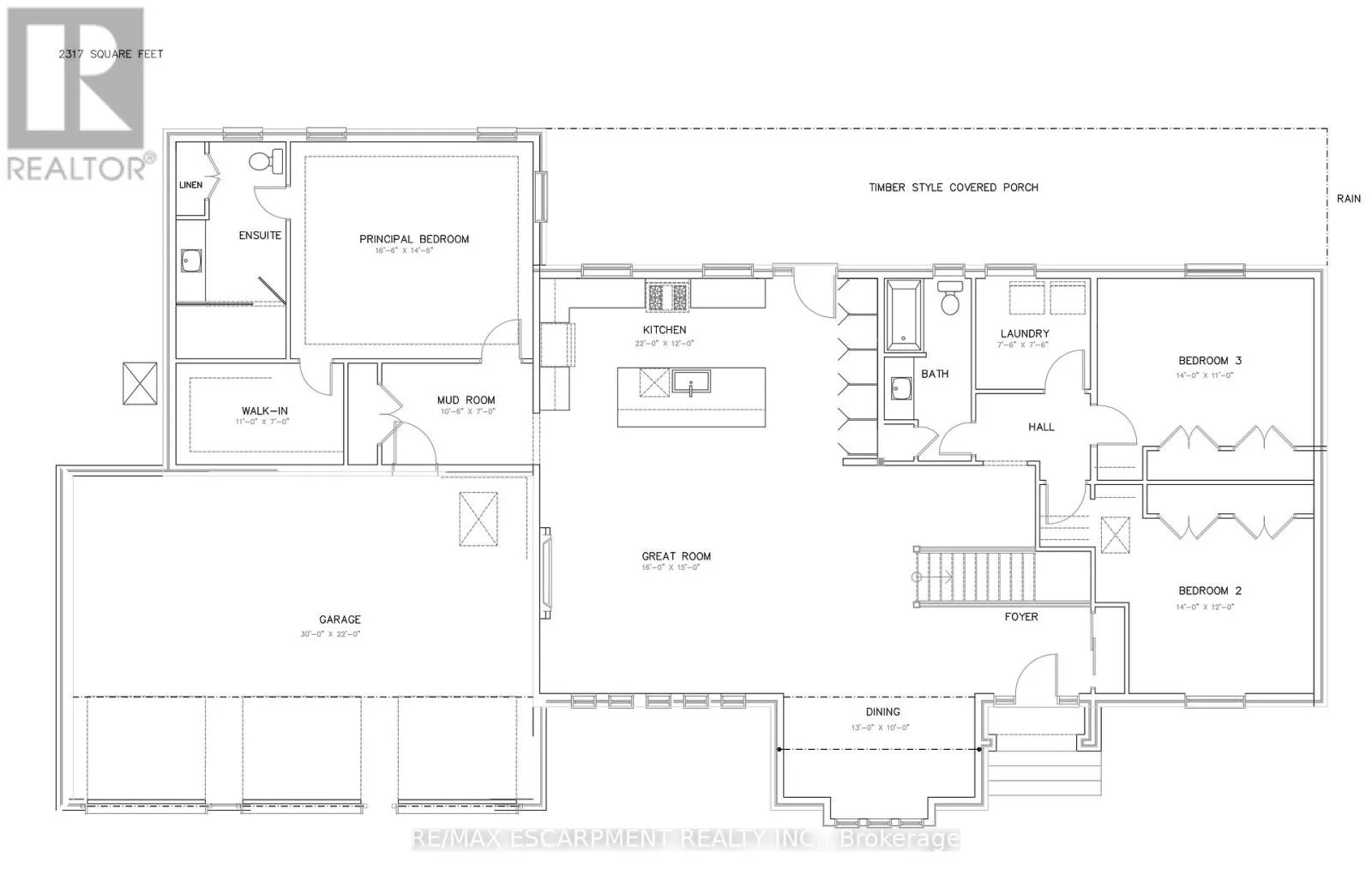
Square Footage
2000 - 2500 sqft
Bathrooms Total
2
Bedrooms Above Ground
3
Bedrooms Total
3
Exterior Finish
Stone
Fireplace Present
Yes
Basement Type
Full (Unfinished)
Basement Features
Building Heating Type
Forced air
Heating Fuel
Natural gas
Building Cooling Type
Central air conditioning

Utilities

Water
Municipal water
Utility Sewer
Septic System

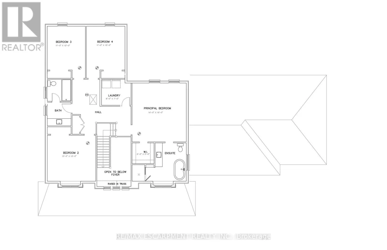
Room Layout

Mud room
Main level
3.2 m x 2.13 m
Bedroom
Main level
4.27 m x 3.35 m
Bedroom
Main level
4.27 m x 3.66 m
Great room
Main level
4.88 m x 4.57 m
Dining room
Main level
3.96 m x 3.05 m
Kitchen
Main level
6.71 m x 3.66 m
Primary Bedroom
Main level
5.03 m x 4.42 m
Laundry room
Main level
Measurements not available

Location

Learn more about this property
Listing provided by:
RE/MAX ESCARPMENT REALTY INC.
MLS® number:
X12209771
Agent:
Drew Woolcott
*Indicates required field
Name is required
Email is required
Please enter a valid phone number (e.g., 416-111-1111).