51 Augusta Street, Hamilton, Ontario L8N 1P8

Listed for:
$949,900
2 beds
4 baths
Listed 107 days ago
Triplex for rent: 51 Augusta Street, Hamilton, Ontario L8N 1P8

View all 50 photos

Learn more about this property
Listing provided by:
RE/MAX Escarpment Realty Inc.
MLS® number:
40747722
Agent:
Raymond Loya
*Indicates required field
Name is required
Email is required
Please enter a valid phone number (e.g., 416-111-1111).

About

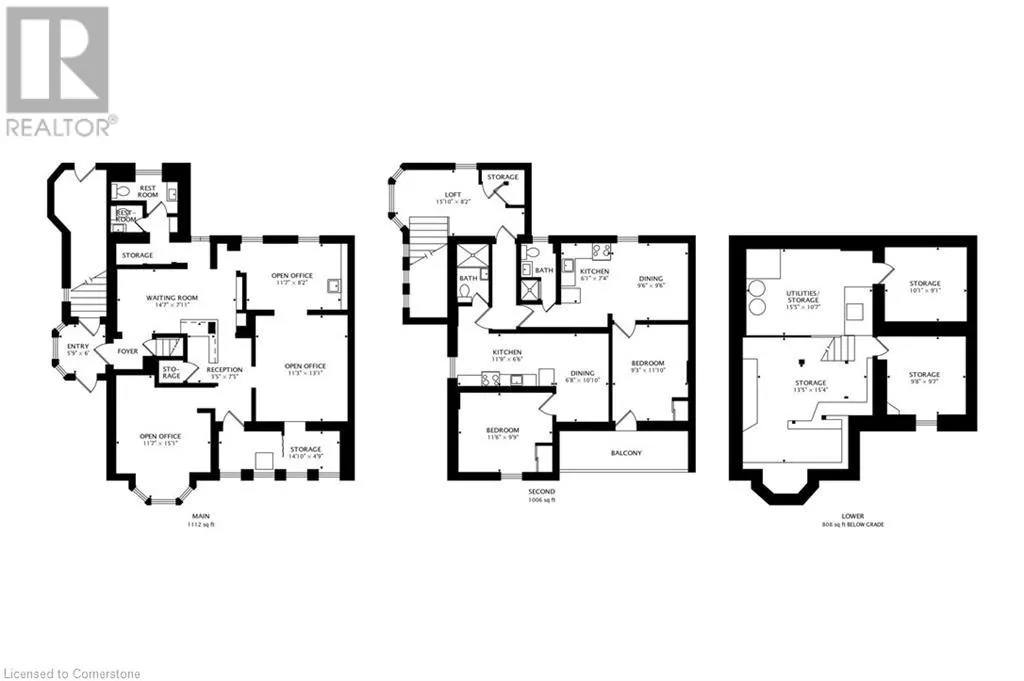
North on John - West on Augusta Amazing opportunity with this beautiful 3-unit building located just steps from trendy James St and the new GO Station. 2,926sf total space including 808sf of storage in the basement, 1112sf on the main level and another 1006sf on the 2nd floor. Must be toured to see the endless possibilities for a large single Tenant, a live-work set up or a 3 unit investment property. A few minutes walk to the beautiful Hamilton Harbour and the Bayfront. Located on the main Bus Route. Currently set up as 2 residential renovated units and 1 commercial storefront. Units are separately metered and Tenants pay their Gas and Electricity. If you are looking for options for your professional office/retail space, this is it! Be in the heart of the action near great restaurants, law firms, medical facilities and more. Financing support available for qualified applicants. (id:27476)

Property Highlights

MLS® Number
40747722
Type
Multi-family
Ownership Type
Freehold
Land Size
under 1/2 acre
Parking Space Total
2

Building

Building Type
Triplex
Storeys
2.00
Square Footage
2118 sqft
Bathrooms Total
4
Bedrooms Total
2
Amenities
Public Transit
Exterior Finish
Brick
Fireplace Present
No
Basement Type
Partial (Finished)
Basement Features
Building Heating Type
Forced air
Heating Fuel
Natural gas
Building Cooling Type
Central air conditioning

Utilities

Water
Municipal water
Utility Sewer
Municipal sewage system

Location