51 Augusta Street, Hamilton, Ontario L8N 1P8

Listed for:
$949,900
0 beds
0 baths
Listed 189 days ago
51 Augusta Street, Hamilton, Ontario L8N 1P8

View all 50 photos

Learn more about this property
Listing provided by:
RE/MAX ESCARPMENT REALTY INC.
MLS® number:
X12264451
Agent:
Raymond Loya
*Indicates required field
Name is required
Email is required
Please enter a valid phone number (e.g., 416-111-1111).

About

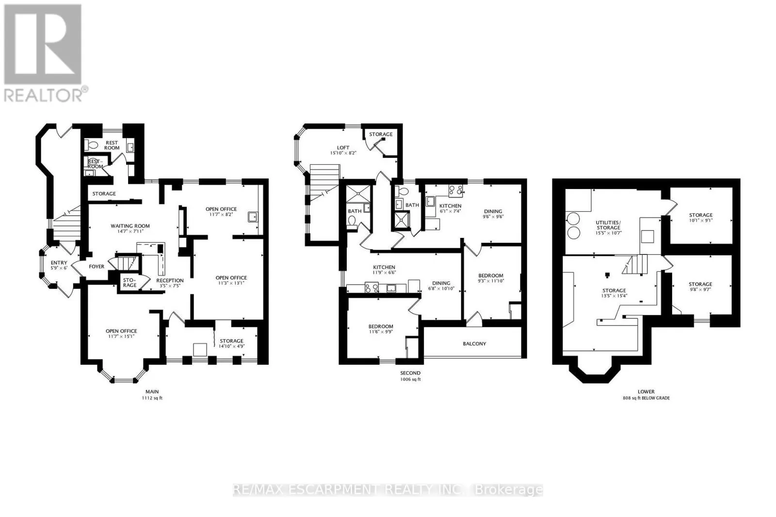
Cross Streets: John St S and James Street. ** Directions: North on John - West on Augusta. Amazing opportunity with this beautiful 3-unit building located just steps from trendy James St and the new GO Station. 2,926sf total space including 808sf of storage in the basement, 1112sf on the main level and another 1006sf on the 2nd floor. Must be toured to see the endless possibilities for a large single Tenant, a live-work set up or a 3 unit investment property. A few minutes walk to the beautiful Hamilton Harbour and the Bayfront. Located on the main Bus Route. Currently set up as 2 residential renovated units and 1 commercial storefront. Units are separately metered and Tenants pay their Gas and Electricity. If you are looking for options for your professional office/retail space, this is it! Be in the heart of the action near great restaurants, law firms, medical facilities and more. Financing support available for qualified applicants. (id:27476)

Property Highlights

MLS® Number
X12264451
Type
Retail
Community Name
Corktown
Land Size
37.5 x 66 FT

Building

Square Footage
2926 sqft
Fireplace Present
No
Basement Type
Basement Features
Building Heating Type
Forced air
Heating Fuel
Natural gas
Building Cooling Type
Fully air conditioned

Utilities

Water
Municipal water

Location