361 Cannon Street E, Hamilton, Ontario L8L 2C3

Listed for:
$17
0 beds
0 baths
Listed 136 days ago
361 Cannon Street E, Hamilton, Ontario L8L 2C3

View all 12 photos

About

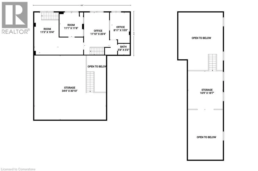
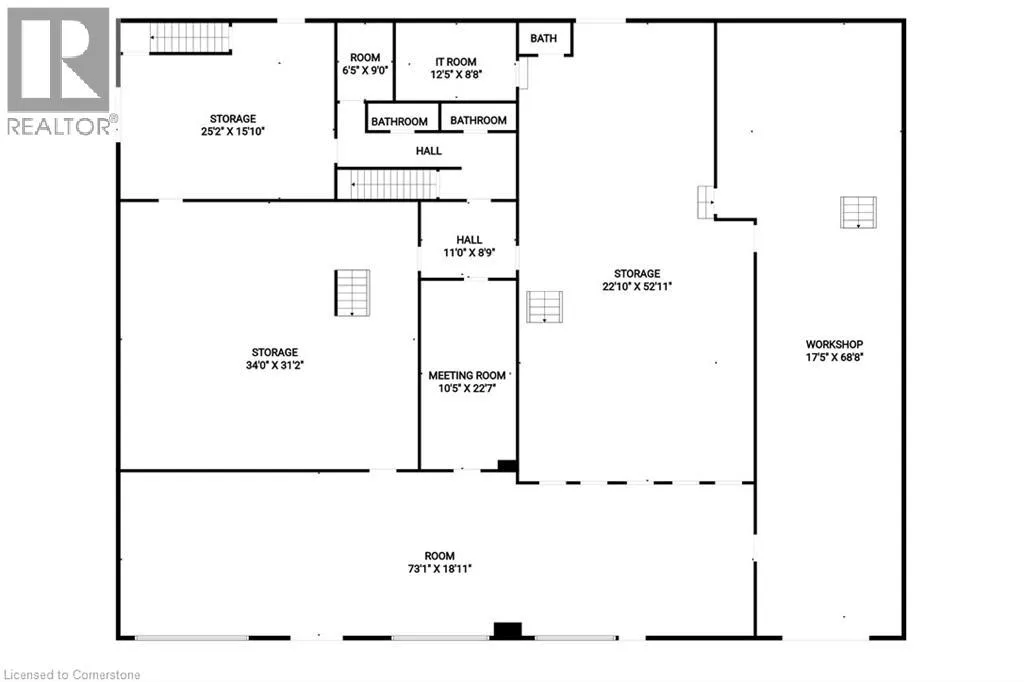
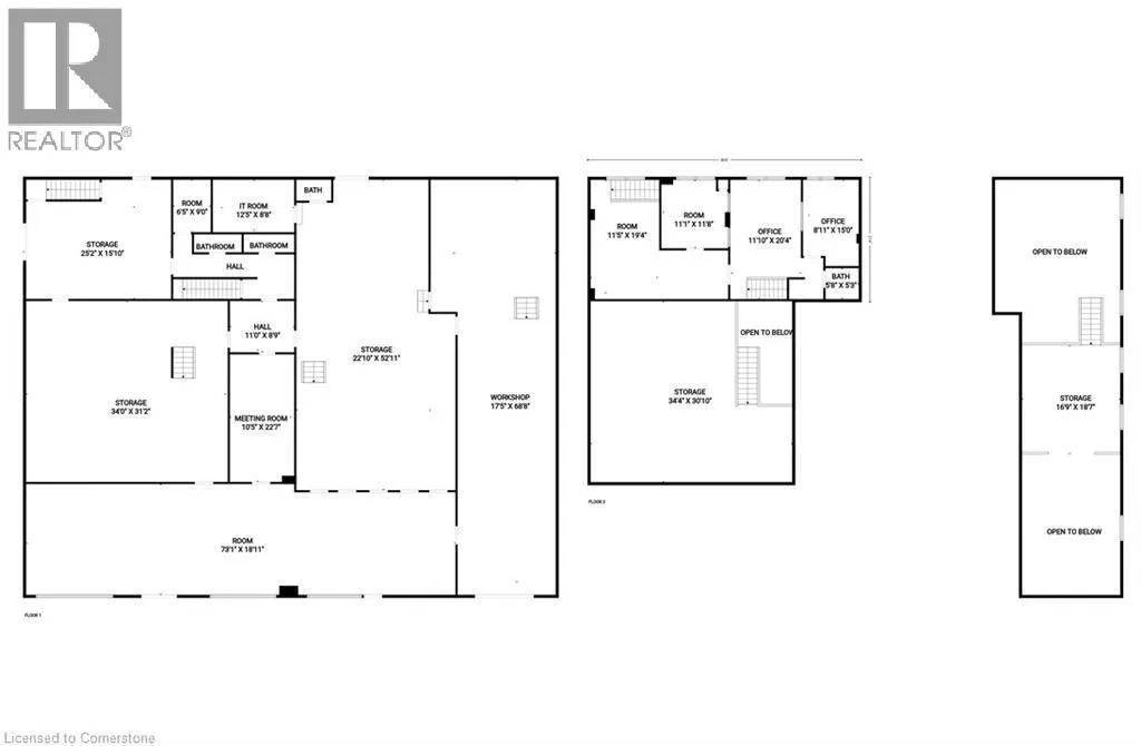
Wentworth St N and Cannon St E Prime Commercial Building with Additional Parking Lot – For Lease in Downtown Hamilton with Drive in bay and office space. A fantastic opportunity to lease a freestanding commercial building with 7,568 sq ft of flexible space, ideally situated in a high-traffic, high-visibility area of Downtown. With a generous lot size 97.11 ft x 115.24 ft and BOUNS vacant parking lot 371 Cannon Street East 90.19 ft x 39.07 ft it makes perfect place for staff and customer access – approximately 25 parking available. The main property has been most recently used as an auto parts store. Zoned C2, this property supports a wide range of commercial uses such as medical Clinic, Veterinary Service, Financial Establishment, Retail and much more—making it ideal for various types of businesses looking to grow or relocate. Whether you're launching a new venture or expanding your current operations, this space offers exceptional flexibility, zoning advantages and well-established commercial corridor with strong foot and vehicle traffic and rare on-site parking in the heart of the city. (id:27476)

Property Highlights

MLS® Number
40754589
Type
Industrial
Ownership Type
Freehold
Land Size
under 1/2 acre
Parking Space Total
25

Building

Storeys
1.00
Square Footage
7568 sqft
Amenities
Hospital, Public Transit
Exterior Finish
Brick Veneer, Concrete
Fireplace Present
No
Basement Type
None
Basement Features
Building Heating Type
Heating Fuel
Building Cooling Type

Utilities

Water
Municipal water
Utility Sewer
Municipal sewage system

Location

Learn more about this property
Listing provided by:
Right at Home Realty
MLS® number:
40754589
Agent:
Burim Hashani
*Indicates required field
Name is required
Email is required
Please enter a valid phone number (e.g., 416-111-1111).