361 Cannon Street E, Hamilton, Ontario L8L 2C3

Listed for:
$17
0 beds
4 baths
Listed 179 days ago
361 Cannon Street E, Hamilton, Ontario L8L 2C3

View all 14 photos

About

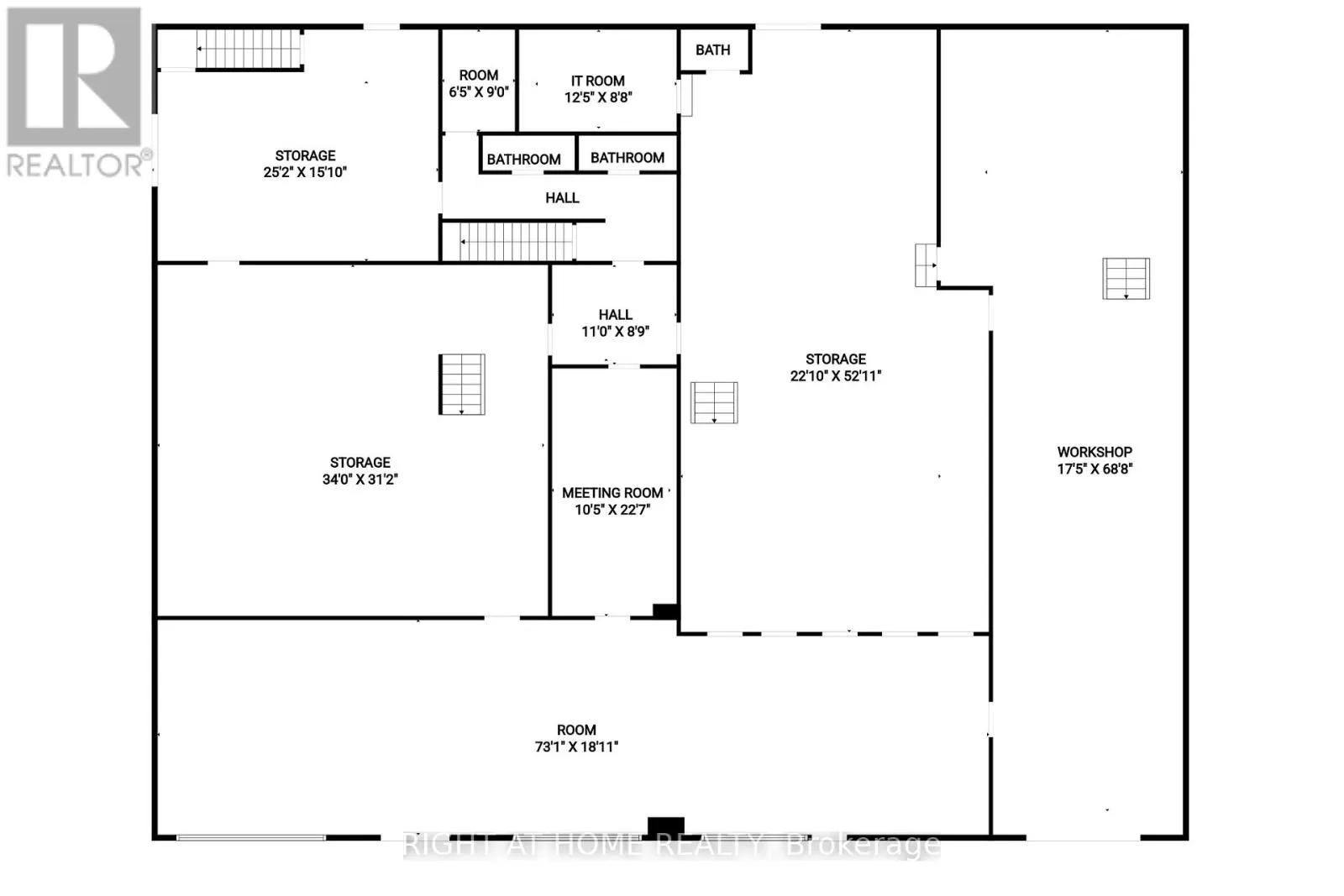
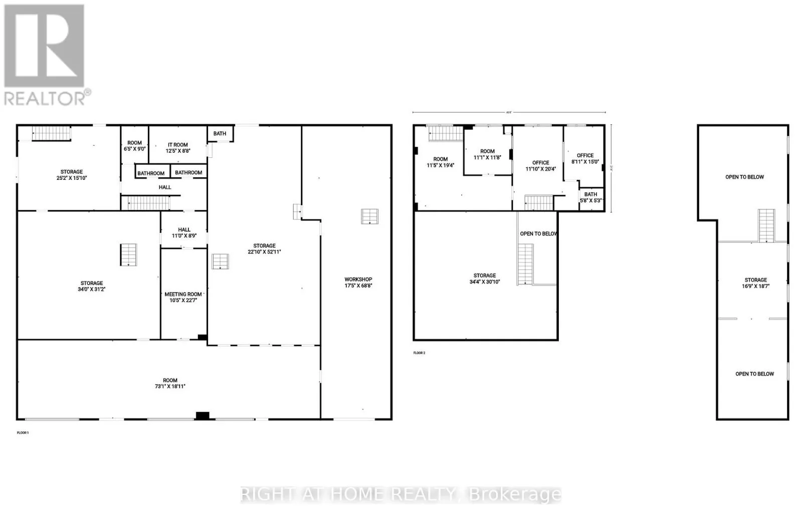
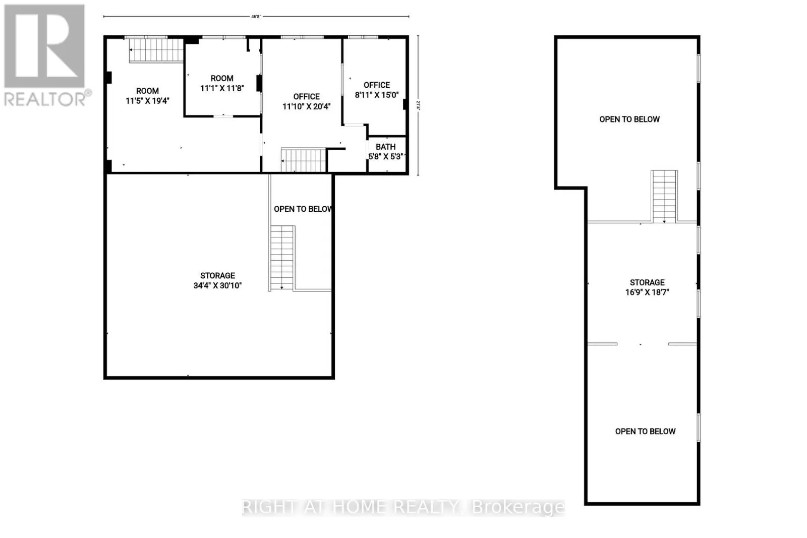
Cross Streets: Cannon St E and Wentworth St N. ** Directions: Wentworth St N and Cannon St E. Prime Commercial Building with Additional Parking Lot For Lease in Downtown Hamilton with Drive in bay and office space. A fantastic opportunity to lease a freestanding commercial building with 7,568 sq ft of flexible space, ideally situated in a high-traffic, high-visibility area of Downtown. With a generous lot size 97.11 ft x 115.24 ft and BOUNS vacant parking lot 371 Cannon Street East 90.19 ft x 39.07 ft it makes perfect place for staff and customer access approximately 25 parking available. The main property has been most recently used as an auto parts store. Zoned C2, this property supports a wide range of commercial uses such as medical Clinic, Veterinary Service, Financial Establishment, Retail and much more making it ideal for various types of businesses looking to grow or relocate. Whether you're launching a new venture or expanding your current operations, this space offers exceptional flexibility, zoning advantages and well-established commercial corridor with strong foot and vehicle traffic and rare on-site parking in the heart of the city. (id:27476)

Property Highlights

MLS® Number
X12328736
Type
Retail
Community Name
Landsdale
Land Size
Bldg=95.5 x 115 FT ; 115.24 ft x 97.11 ftx115.44 ftx97.06 ft
Parking Space Total
25

Building

Square Footage
11184 sqft
Bathrooms Total
4
Amenities
Highway, Public Transit
Fireplace Present
No
Basement Type
Basement Features
Building Heating Type
Forced air
Heating Fuel
Natural gas
Building Cooling Type
Fully air conditioned

Utilities

Water
Municipal water

Location

Learn more about this property
Listing provided by:
RIGHT AT HOME REALTY
MLS® number:
X12328736
Agent:
Burim Hashani
*Indicates required field
Name is required
Email is required
Please enter a valid phone number (e.g., 416-111-1111).