446 East 36th Street, Hamilton, Ontario L8V 4A5

Listed for:
$669,900
3 beds
2 baths
Listed 168 days ago
House for rent: 446 East 36th Street, Hamilton, Ontario L8V 4A5

View all 44 photos

About

North of Mohawk Rd, East of Upper Sherman Brick bungalow on a premium lot backing onto Macassa Park! This home offers a rare combination of A+ location, lot size, and versatility, sitting on an impressive 51’ x 184’ property with direct gate access to the park & playground. The main level has been thoughtfully redesigned to maximize flow and natural light, featuring a welcoming living room, a custom oak kitchen, and a bright dining area with sliding doors that walk out to the backyard. Two comfortable bedrooms and an updated 4-piece bathroom complete this level. The newly renovated lower level is spacious and adaptable, showcasing a cozy gas fireplace, open-concept family area, third bedroom, 3-pc bathroom + laundry. This space is designed for a future in-law suite, teen retreat, or separate apartment, adding value and flexibility. The backyard is like having your own private park—fully fenced with endless room for children and pets to enjoy. Highlights include a two-tier deck, 18ft above-ground pool (liner 2024), large storage shed, and a private gate that opens directly onto Macassa Park. Potential for a garage or ADU. A brand-new double-wide concrete driveway provides ample parking for 4 vehicles. This is a home that truly offers a family-friendly neighbourhood, investment potential, and a move-in ready, all in one package—don’t miss out! (id:27476)

Property Highlights

MLS® Number
40761310
Type
Single Family
Ownership Type
Freehold
Land Size
under 1/2 acre
Parking Space Total
4

Building

Building Type
House
Storeys
1.00
Square Footage
1750 sqft
Bathrooms Total
2
Bedrooms Above Ground
2
Bedrooms Total
3
Amenities
Hospital, Park, Playground, Public Transit, Schools
Exterior Finish
Other
Fireplace Present
No
Basement Type
Full (Finished)
Basement Features
Building Heating Type
Forced air
Heating Fuel
Natural gas
Building Cooling Type
Central air conditioning

Utilities

Water
Municipal water
Utility Sewer
Municipal sewage system

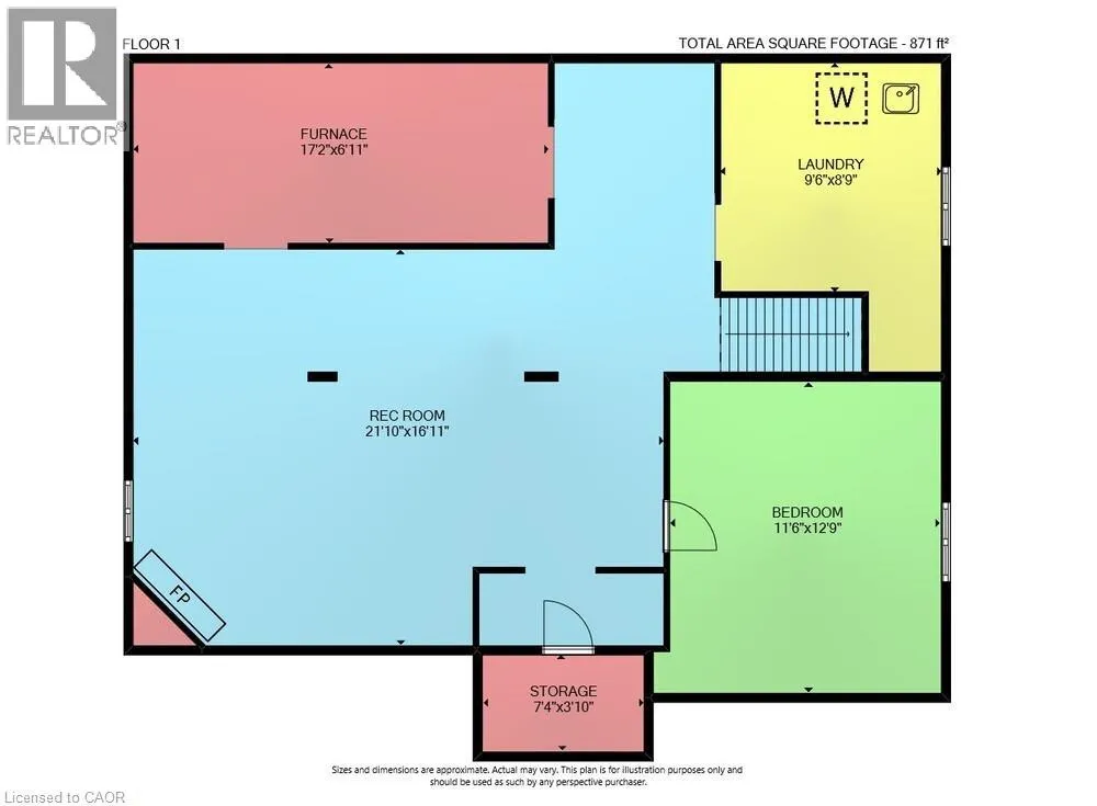
Room Layout

3pc Bathroom
Basement
8'0'' x 6'0''
Other
Basement
17'2'' x 6'11''
Laundry room
Basement
9'6'' x 8'9''
Storage
Basement
7'4'' x 3'10''
Bedroom
Basement
12'9'' x 11'6''
Recreation room
Basement
21'10'' x 16'11''
Bedroom
Main level
9'1'' x 10'1''
4pc Bathroom
Main level
5'1'' x 7'9''
Primary Bedroom
Main level
9'10'' x 11'3''
Living room
Main level
18'6'' x 13'3''
Eat in kitchen
Main level
21'7'' x 11'0''

Location

Learn more about this property
Listing provided by:
Coldwell Banker Community Professionals
MLS® number:
40761310
Agent:
Paul Mcdowell
*Indicates required field
Name is required
Email is required
Please enter a valid phone number (e.g., 416-111-1111).