48 Kingsmount Street N, Hamilton, Ontario L8S 3L3

Listed for:
$829,000
6 beds
2 baths
Listed 86 days ago
House for rent: 48 Kingsmount Street N, Hamilton, Ontario L8S 3L3

View all 38 photos

Learn more about this property
Listing provided by:
EXP REALTY
MLS® number:
X12363180
Agent:
Jeffany Yam
*Indicates required field
Name is required
Email is required
Please enter a valid phone number (e.g., 416-111-1111).

About

Cross Streets: Main St W and Kingsmount St N. ** Directions: Off Main St W. Repriced to sell! Amazing opportunity! This well-maintained home near McMaster University has been cared for as if the owners lived in it themselves. A top-notch student rental*, it has always been occupied by responsible, and respectful students who treated it with pride. Featuring 5+1 bedrooms, 2 full bathrooms, and numerous updates including electrical and updated roof, this home has been meticulously maintained. With important safety features already completed, the property is in excellent condition and ready for its next chapter. Only approximately a 12 min walk from McMaster University, this location offers both convenience and steady rental demand in a high-growth area. Whether you are adding to your portfolio or securing housing for students, this property provides proven rental potential and peace of mind. Don't let this investment property fly away. Book your showing today and move forward with confidence knowing this home has already shown its value. *Photos may differ as tenant belongings have changed (id:27476)

Property Highlights

MLS® Number
X12363180
Type
Single Family
Community Name
Ainslie Wood
Ownership Type
Freehold
Land Size
40 x 100 FT
Parking Space Total
3

Building

Building Type
House
Storeys
2.00
Square Footage
700 - 1100 sqft
Bathrooms Total
2
Bedrooms Above Ground
5
Bedrooms Total
6
Exterior Finish
Vinyl siding, Brick
Fireplace Present
No
Basement Type
Full (Finished)
Basement Features
Building Heating Type
Forced air
Heating Fuel
Natural gas
Building Cooling Type
Central air conditioning

Utilities

Water
Municipal water
Utility Sewer
Sanitary sewer

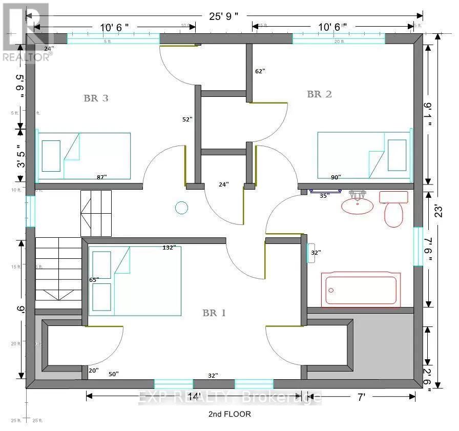
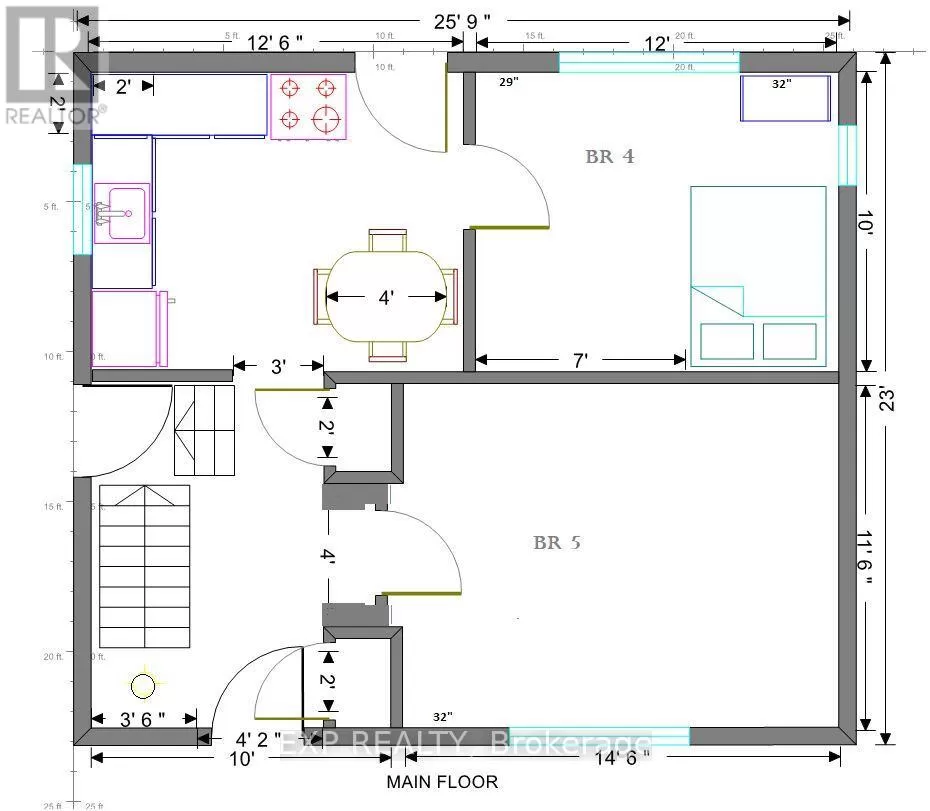
Room Layout

Bedroom 3
Second level
4.34 m x 2.92 m
Bedroom 4
Second level
3.29 m x 2.83 m
Bedroom 5
Second level
3.19 m x 2.83 m
Bedroom
Basement
4.95 m x 3.28 m
Laundry room
Basement
3.26 m x 2.47 m
Bedroom
Ground level
4.45 m x 3.61 m
Bedroom 2
Ground level
3.51 m x 3.1 m
Kitchen
Ground level
3.95 m x 3.17 m

Location

Community Spotlight: Homes For sale in Your Neighborhood