3 Jaczenko Terrace, Hamilton, Ontario L9B 1T8

Listed for:
$720,000
1 beds
1 baths
Listed 72 days ago
Row / Townhouse for rent: 3 Jaczenko Terrace, Hamilton, Ontario L9B 1T8

View all 8 photos

Learn more about this property
Listing provided by:
RE/MAX Escarpment Realty Inc.
MLS® number:
40768149
Agent:
Sheri Lin Robins
*Indicates required field
Name is required
Email is required
Please enter a valid phone number (e.g., 416-111-1111).

About

South East corner of Garth Street & Rymal Road West Virtually brand New 1-Bed 1-Bath Bungalow Town located in the much sought after gated community of St. Elizabeth Village! This home boasts upgraded cabinetry and countertops in the eat-in Kitchen, and a large living room for entertaining. No basement to deal with! Modern finishes, classic design, Enjoy all the amenities the Village has to offer such as the indoor heated pool, gym, sauna, golf simulator and more. Property taxes, water, and all exterior maintenance are included in the monthly fees. (id:27476)

Property Highlights

MLS® Number
40768149
Type
Single Family
Maintenance Fee
724.00
Ownership Type
Life Lease
Land Size
under 1/2 acre
Parking Space Total
1

Building

Building Type
Row / Townhouse
Storeys
1.00
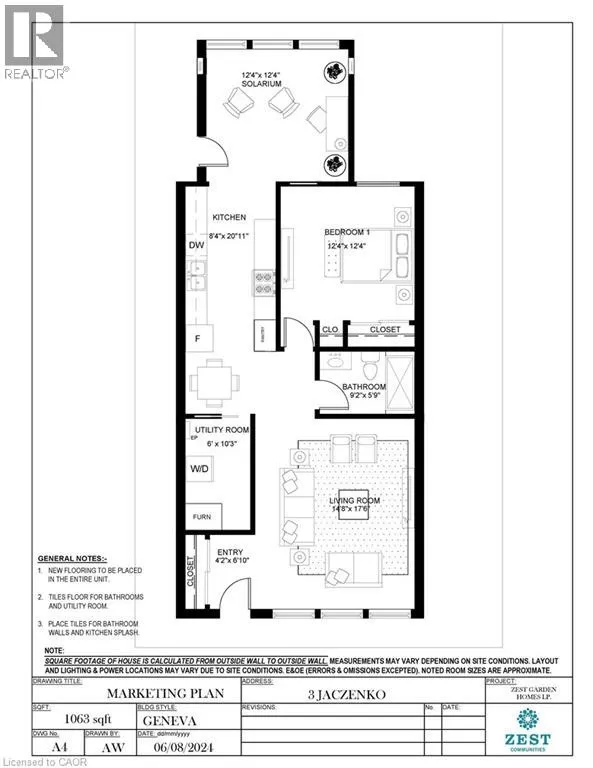
Square Footage
1063 sqft
Bathrooms Total
1
Bedrooms Above Ground
1
Bedrooms Total
1
Amenities
Exercise Centre, Guest Suite, Party Room Airport, Golf Nearby, Hospital, Place of Worship, Public Transit, Shopping
Fireplace Present
No
Basement Type
None
Basement Features
Building Heating Type
Forced air
Heating Fuel
Natural gas
Building Cooling Type
Central air conditioning

Utilities

Water
Municipal water
Utility Sewer
Municipal sewage system

Room Layout

Den
Main level
12'4'' x 12'4''
Utility room
Main level
6'0'' x 10'3''
3pc Bathroom
Main level
9'2'' x 5'9''
Eat in kitchen
Main level
8'4'' x 20'11''
Living room
Main level
14'8'' x 17'6''
Bedroom
Main level
12'4'' x 12'4''

Location

Street Spotlight - For sale