60 Cesar Place, Hamilton, Ontario L9G 0G3

Listed for:
$1,499,999
4 beds
2 baths
Listed 202 days ago
House for rent: 60 Cesar Place, Hamilton, Ontario L9G 0G3

View all 24 photos

About

Wilson & Shaver PRIVATE LENDING AVAILABLE BY THE BUILDER. 2.5% INTEREST, 10% DOWN. FULLY OPEN Brand New 2 STOREY homes on Executive lots in the Heart of Ancaster, tucked away on a safe & quiet cul de sac road. This particular 2storey holds 2535 sf. with 4 beds, open living space and 2.5 baths with main floor laundry for easy living Loaded with pot lights, granite/quartz counter tops, and hardwood flooring of your choice. Seconds to Hwy Access, all amenities & restaurants. All Room sizes are approx, Changes have been made to floor plan layout. Built and can be shown. (id:27476)

Property Highlights

MLS® Number
X12395694
Type
Single Family
Community Name
Ancaster
Ownership Type
Freehold
Land Size
44 x 100 FT
Parking Space Total
4

Building

Building Type
House
Storeys
2.00
Square Footage
2500 - 3000 sqft
Bathrooms Total
2
Bedrooms Above Ground
4
Bedrooms Total
4
Exterior Finish
Stone, Stucco
Fireplace Present
Yes
Basement Type
Full (Unfinished)
Basement Features
Building Heating Type
Forced air
Heating Fuel
Natural gas
Building Cooling Type
Central air conditioning

Utilities

Water
Municipal water
Utility Sewer
Sanitary sewer

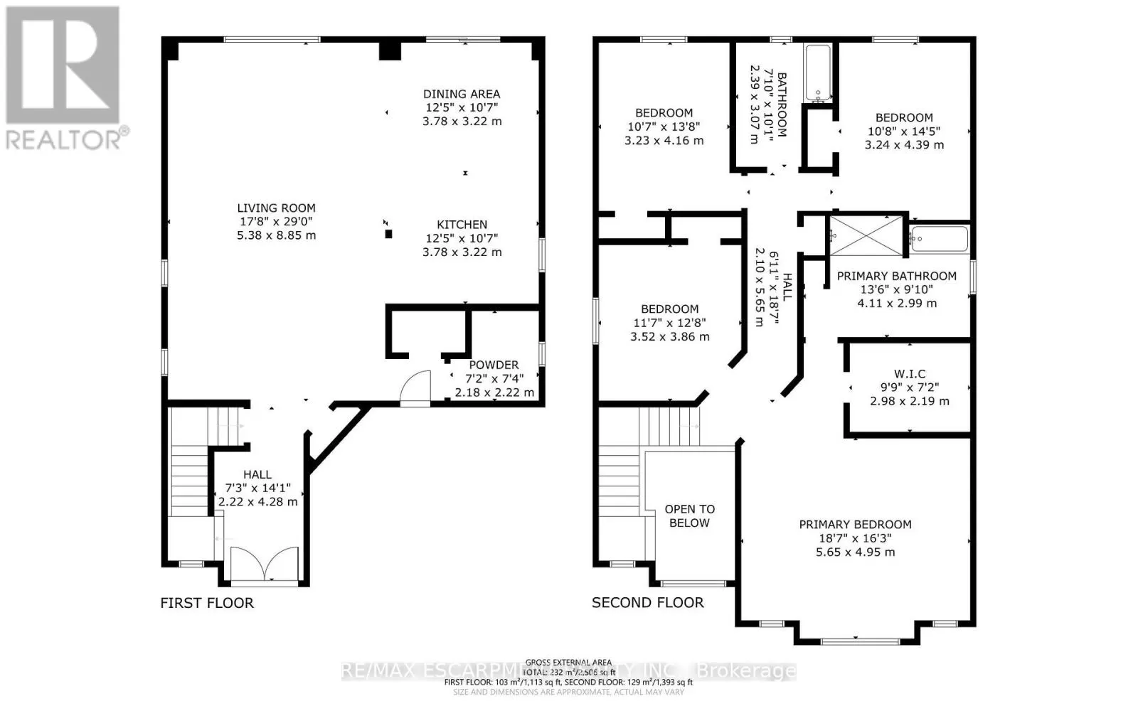
Room Layout

Bathroom
Second level
Measurements not available
Bathroom
Second level
Measurements not available
Bedroom 2
Second level
4.09 m x 3.61 m
Bedroom 2
Second level
4.04 m x 3.61 m
Bedroom 2
Second level
4.09 m x 3.63 m
Primary Bedroom
Second level
5.61 m x 4.67 m
Bathroom
Main level
Measurements not available
Dining room
Main level
3.96 m x 3.73 m
Kitchen
Main level
6.48 m x 3.89 m
Family room
Main level
5.08 m x 4.57 m
Laundry room
Main level
Measurements not available

Location

Learn more about this property
Listing provided by:
RE/MAX ESCARPMENT REALTY INC.
MLS® number:
X12395694
Agent:
Savannah Toscani
*Indicates required field
Name is required
Email is required
Please enter a valid phone number (e.g., 416-111-1111).

Street Spotlight - For sale