93 John Street S, Hamilton, Ontario L8N 2C2

Listed for:
$850,000
0 beds
0 baths
Listed 114 days ago
93 John Street S, Hamilton, Ontario L8N 2C2

View all 35 photos

Learn more about this property
Listing provided by:
eXp Realty
MLS® number:
40769683
Agent:
Roland Hsu
*Indicates required field
Name is required
Email is required
Please enter a valid phone number (e.g., 416-111-1111).

About

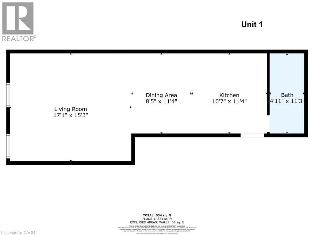
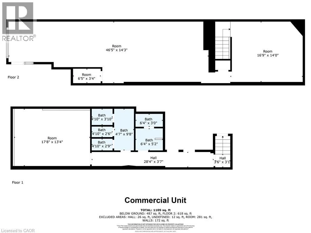
GO SOUTH ON JOHN ST FROM MAIN ST E, BUILDING IS ON THE EAST SIDE, BETWEEN TWO ALLEYWAYS Prime investment opportunity in the heart of downtown Hamilton. This fully renovated mixed-use property features a street-level storefront with excellent visibility, plus two additional floors and a functional basement. Offering a cap rate of 6.2% at asking, this property provides strong potential for steady passive income. With nearly 3,000 sq. ft. of commercial space, the main floor impresses with soaring 11-foot ceilings and modern pot lighting throughout. The building is well-equipped with two furnaces (one installed in 2020), two A/C units, 400-amp service, and two separate panels. Its unbeatable location, just steps from the Hamilton GO Station, ensures convenience and accessibility for both tenants and customers. (id:27476)

Property Highlights

MLS® Number
40769683
Type
Other
Ownership Type
Freehold
Land Size
under 1/2 acre

Building

Storeys
2.00
Square Footage
2240 sqft
Fireplace Present
No
Basement Type
Full
Basement Features
Building Heating Type
Heating Fuel
Building Cooling Type

Utilities

Water
Municipal water
Utility Sewer
Municipal sewage system

Location