297 Mary Street N Unit# 1, Hamilton, Ontario L8L 4W3

Listed for:
$1,799
1 beds
1 baths
Listed 46 days ago
House for rent: 297 Mary Street N Unit# 1, Hamilton, Ontario L8L 4W3

View all 21 photos

Learn more about this property
Listing provided by:
Michael St. Jean Realty Inc.
MLS® number:
40772831
Agent:
Michael St. Jean
*Indicates required field
Name is required
Email is required
Please enter a valid phone number (e.g., 416-111-1111).

About

North on Mary from King St E. FIRST MONTH FREE - Located seconds to West harbour Go Station - Move in today - Fully renovated from top to bottom - new, clean, modern and spacious... Perfect for those working downtown. Seconds to Art district, general hospital and Bay Front Park. Everything is new and not been lived in since renovation. Over 600 square foot unit with parking included is available today. Terrace and private backyard making the perfect outdoor space. Call direct to view! (id:27476)

Property Highlights

MLS® Number
40772831
Type
Single Family
Ownership Type
Freehold
Land Size
under 1/2 acre
Parking Space Total
1

Building

Building Type
House
Storeys
1.00
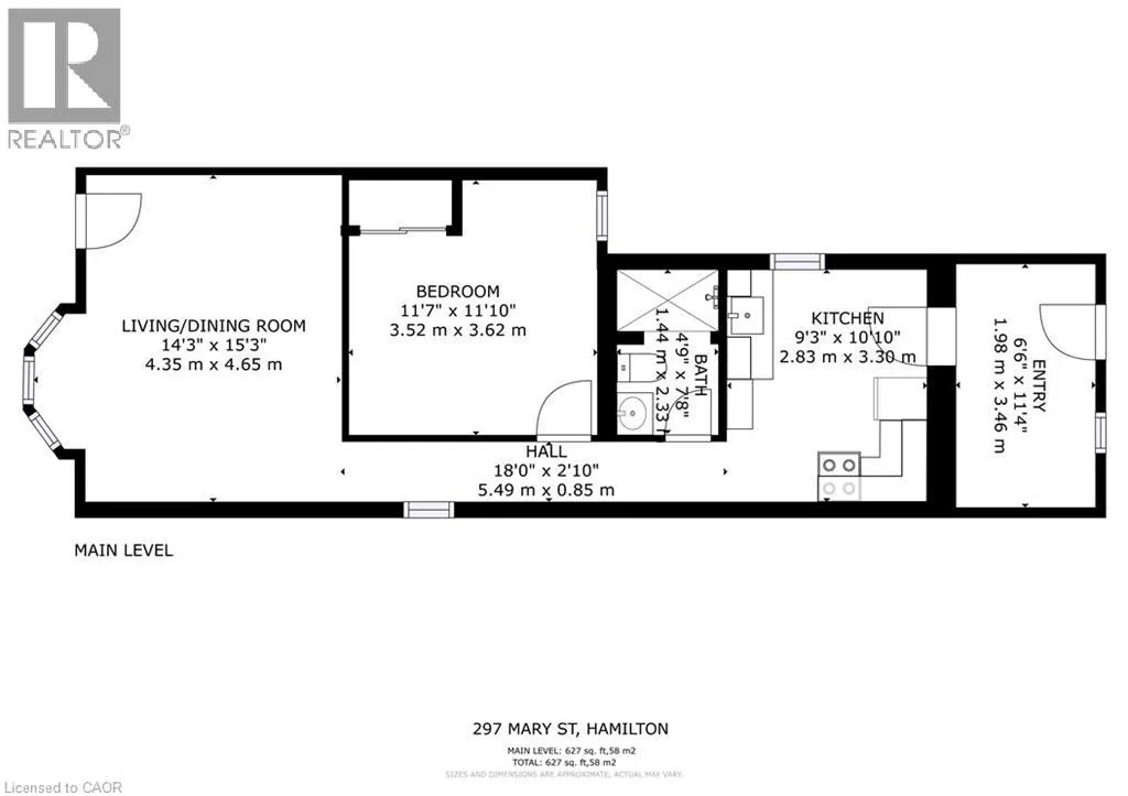
Square Footage
700 sqft
Bathrooms Total
1
Bedrooms Above Ground
1
Bedrooms Total
1
Amenities
Hospital, Park, Place of Worship, Playground, Public Transit, Schools, Shopping
Exterior Finish
Brick
Fireplace Present
No
Basement Type
Full (Partially finished)
Basement Features
Building Heating Type
Forced air
Heating Fuel
Natural gas
Building Cooling Type
Central air conditioning

Utilities

Water
Municipal water
Utility Sewer
Municipal sewage system

Room Layout

4pc Bathroom
Main level
Measurements not available
Bedroom
Main level
11'7'' x 11'10''
Kitchen
Main level
9'3'' x 10'10''
Living room
Main level
14'3'' x 15'3''

Location