100 Burland Crescent Unit# 2, Hamilton, Ontario L8H 7T5

Listed for:
$14
0 beds
0 baths
Listed 47 days ago
100 Burland Crescent Unit# 2, Hamilton, Ontario L8H 7T5

View all 17 photos

Learn more about this property
Listing provided by:
Realty Network
MLS® number:
40775267
Agent:
Lucas Colalillo
*Indicates required field
Name is required
Email is required
Please enter a valid phone number (e.g., 416-111-1111).

About

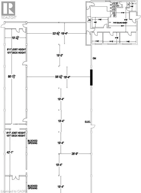
From Parkdale Ave N, turn west onto Burland Cres. The property is in the southwest corner of the U-shape crescent. This 12,900 sq ft industrial unit features: two 5-ton cranes, 100 Amp and 600 Volt power, joist heights of up to 17' 10, 1,900 sq ft of office space, a fenced-in yard, and plenty of parking. The property is zoned “M5 - General Industrial” which is ideal for manufacturing, industrial, production, services, warehouse, or the like. This convenient location is only 4-minutes from the QEW, 4-minutes to the Red Hill Valley Pkwy, 8- minutes to Burlington, and is roughly the midway point between the United States border and the city of Toronto. (id:27476)

Property Highlights

MLS® Number
40775267
Type
Industrial
Ownership Type
Freehold
Land Size
under 1/2 acre

Building

Storeys
1.00
Square Footage
12931 sqft
Amenities
Public Transit
Fireplace Present
No
Basement Type
None
Basement Features
Building Heating Type
Heating Fuel
Building Cooling Type

Utilities

Water
Municipal water
Utility Sewer
Municipal sewage system

Location