388 East 25th Street, Hamilton, Ontario L8V 3B1

Listed for:
$488,000
0 beds
0 baths
Listed 208 days ago
388 East 25th Street, Hamilton, Ontario L8V 3B1

View all 7 photos

About

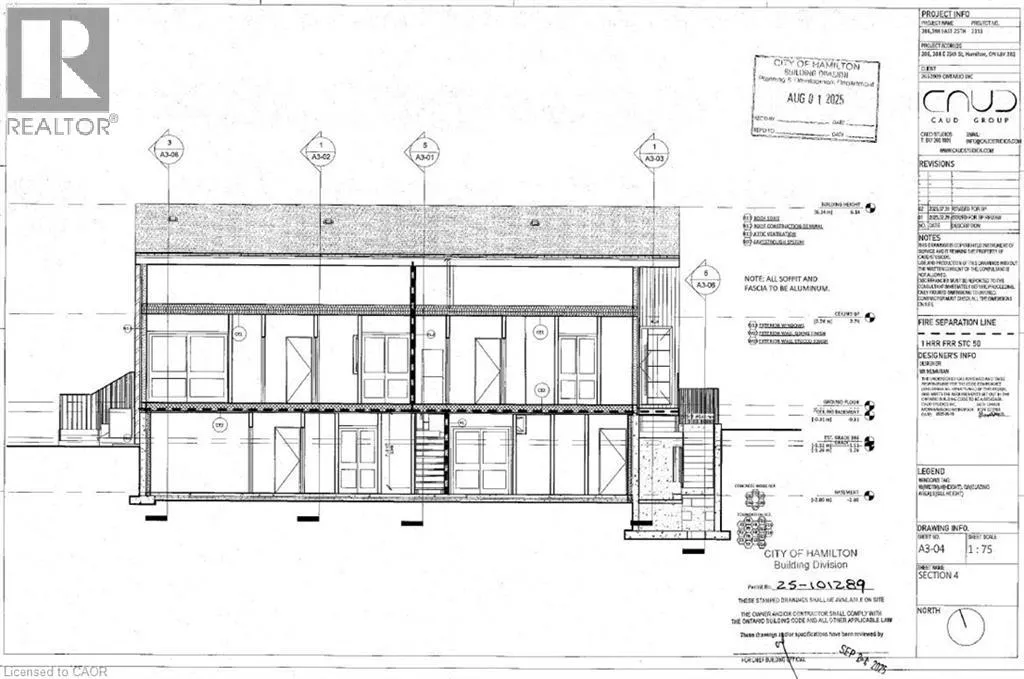
Upper Sherman, take a left on Franklin Road, then a right on East 25th. Exceptional opportunity on the Hamilton Mountain. This residential lot at 388 East 25th Street comes fully approved for a legal triplex, with all development charges already paid and a building permit issued and ready for immediate construction. Please note — this is one of two side-by-side lots, and both properties must be purchased together as a package. Ideal for builders or investors looking to fast-track a high-demand rental project without delays or red tape. Located in a mature, established neighbourhood just moments from Juravinski Hospital, LINC access, schools, public transit, and major amenities. This area is known for its strong rental demand and long-term growth — a rare chance to build income and value in a premium location. (id:27476)

Property Highlights

MLS® Number
40780892
Type
Vacant Land
Ownership Type
Freehold
Land Size
under 1/2 acre

Building

Amenities
Hospital, Public Transit, Schools
Fireplace Present
No
Basement Type
None
Basement Features
Building Heating Type
Heating Fuel
Building Cooling Type

Utilities

Water
Municipal water
Utility Sewer
Municipal sewage system

Location

Learn more about this property
Listing provided by:
RE/MAX Escarpment Realty Inc.
MLS® number:
40780892
Agent:
Tobias Richard Smulders
*Indicates required field
Name is required
Email is required
Please enter a valid phone number (e.g., 416-111-1111).