1 Archdeacon Clark Trail, Hamilton, Ontario L9B 2M2

Listed for:
$699,000
2 beds
2 baths
Listed 76 days ago
Row / Townhouse for rent: 1 Archdeacon Clark Trail, Hamilton, Ontario L9B 2M2

View all 40 photos

Learn more about this property
Listing provided by:
RE/MAX Escarpment Realty Inc.
MLS® number:
40781695
Agent:
Sheri Lin Robins
*Indicates required field
Name is required
Email is required
Please enter a valid phone number (e.g., 416-111-1111).

About

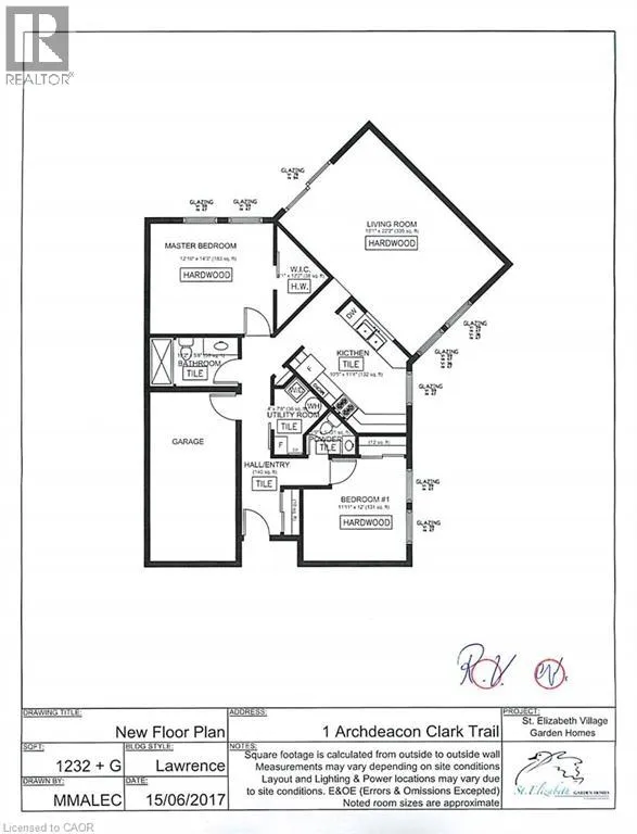
South East Corner of Garth Street & Rymal Road West Welcome to this beautifully maintained bungalow in the sought-after gated 55+ community of St. Elizabeth Village. This 1,232 sq. ft. home offers true one-floor living with no stairs, an attached garage, and a double driveway that fits two vehicles—perfect for ease and convenience. Inside, you’ll find 2 spacious bedrooms and 1.5 bathrooms, including a large main bath featuring a roll-in shower—ideal for those with mobility needs. The open-concept kitchen, living, and dining area boasts soaring 16-ft vaulted ceilings, creating a bright and airy feel. Rich hardwood flooring runs throughout the main living space and both bedrooms, offering a warm and elegant touch. Tucked into a quiet pocket of the Village, the home offers tranquil views of one of the community’s 14 scenic ponds—a perfect spot to relax and unwind. St. Elizabeth Village offers an unmatched lifestyle with resort-style amenities, including a heated indoor pool, gym, saunas, hot tub, golf simulator, woodworking shop, stained glass studio, and wellness services such as a doctor’s office, pharmacy, and massage clinic—all within the community. Located just minutes from shopping, grocery stores, restaurants, and with public transit that comes right into the Village, everything you need is close at hand. Monthly fees cover property taxes, water, exterior maintenance, and access to resort-style amenities. RSA This is retirement living at its finest—don't miss your chance to call this exceptional home yours! (id:27476)

Property Highlights

MLS® Number
40781695
Type
Single Family
Maintenance Fee
975.32
Ownership Type
Life Lease
Land Size
under 1/2 acre
Parking Space Total
3

Building

Building Type
Row / Townhouse
Storeys
1.00
Square Footage
1232 sqft
Bathrooms Total
2
Bedrooms Above Ground
2
Bedrooms Total
2
Amenities
Exercise Centre, Guest Suite, Party Room Airport, Golf Nearby, Hospital, Place of Worship, Public Transit
Exterior Finish
Brick
Fireplace Present
No
Basement Type
None
Basement Features
Building Heating Type
Forced air
Heating Fuel
Natural gas
Building Cooling Type
Central air conditioning

Utilities

Water
Municipal water
Utility Sewer
Municipal sewage system

Room Layout

Utility room
Main level
7'8'' x 4'
2pc Bathroom
Main level
5'0'' x 5'9''
Bedroom
Main level
12'0'' x 11'11''
3pc Bathroom
Main level
5'8'' x 10'2''
Kitchen
Main level
11'4'' x 10'5''
Bedroom
Main level
14'3'' x 12'10''
Living room/Dining room
Main level
22'2'' x 15'1''

Location