176 Highland Road W, Hamilton, Ontario L8J 2S6

Listed for:
$829,900
3 beds
2 baths
Listed 1 day ago
House for rent: 176 Highland Road W, Hamilton, Ontario L8J 2S6

View all 42 photos

Learn more about this property
Listing provided by:
Bradbury Estate Realty Inc., Brokerage
MLS® number:
X12488718
Agent:
Dianna Bradbury
*Indicates required field
Name is required
Email is required
Please enter a valid phone number (e.g., 416-111-1111).

About

Cross Streets: First St. ** Directions: First and Highland Rd. Your Dream Home with a Backyard Paradise on Stoney Creek Mountain! Welcome to a home designed for living and loving every moment. Tucked away in the desirable Stoney Creek Mountain community, this detached beauty offers a perfect blend of style, comfort, and functionality. Step outside to your private backyard oasis, where summer days feel like a getaway. Enjoy a sparkling heated saltwater pool, plenty of green space for kids or pets, two oversized storage sheds, and meticulous landscaping that makes every corner picture-perfect. Whether you're hosting friends or enjoying a quiet evening under the stars, this backyard has it all. Inside, the main level shines with gleaming hardwood floors and a renovated kitchen featuring granite countertops, new stainless steel appliances, and a large island with seating for four. The freshly finished lower level adds even more living space, complete with pot lights, vinyl floors, and shiplap feature walls for that modern farmhouse feel. Upstairs, the spacious primary suite offers ensuite access and a walk-in closet large enough to impress. Car lovers and hobbyists will love the heated double garage, offering plenty of space for projects or parking, plus an electric car charger for convenience and sustainability. All this, just minutes from restaurants, shopping, schools, and quick access to the LINC and Red Hill Parkway. (id:27476)

Property Highlights

MLS® Number
X12488718
Type
Single Family
Community Name
Stoney Creek Mountain
Ownership Type
Freehold
Land Size
47 x 114.8 FT|under 1/2 acre
Parking Space Total
4

Building

Building Type
House
Storeys
2.00
Square Footage
1100 - 1500 sqft
Bathrooms Total
2
Bedrooms Above Ground
3
Bedrooms Total
3
Amenities
Fireplace(s)
Exterior Finish
Brick, Aluminum siding
Fireplace Present
Yes
Basement Type
Full (Finished)
Basement Features
Building Heating Type
Forced air
Heating Fuel
Natural gas
Building Cooling Type
Central air conditioning

Utilities

Water
Municipal water
Utility Sewer
Sanitary sewer

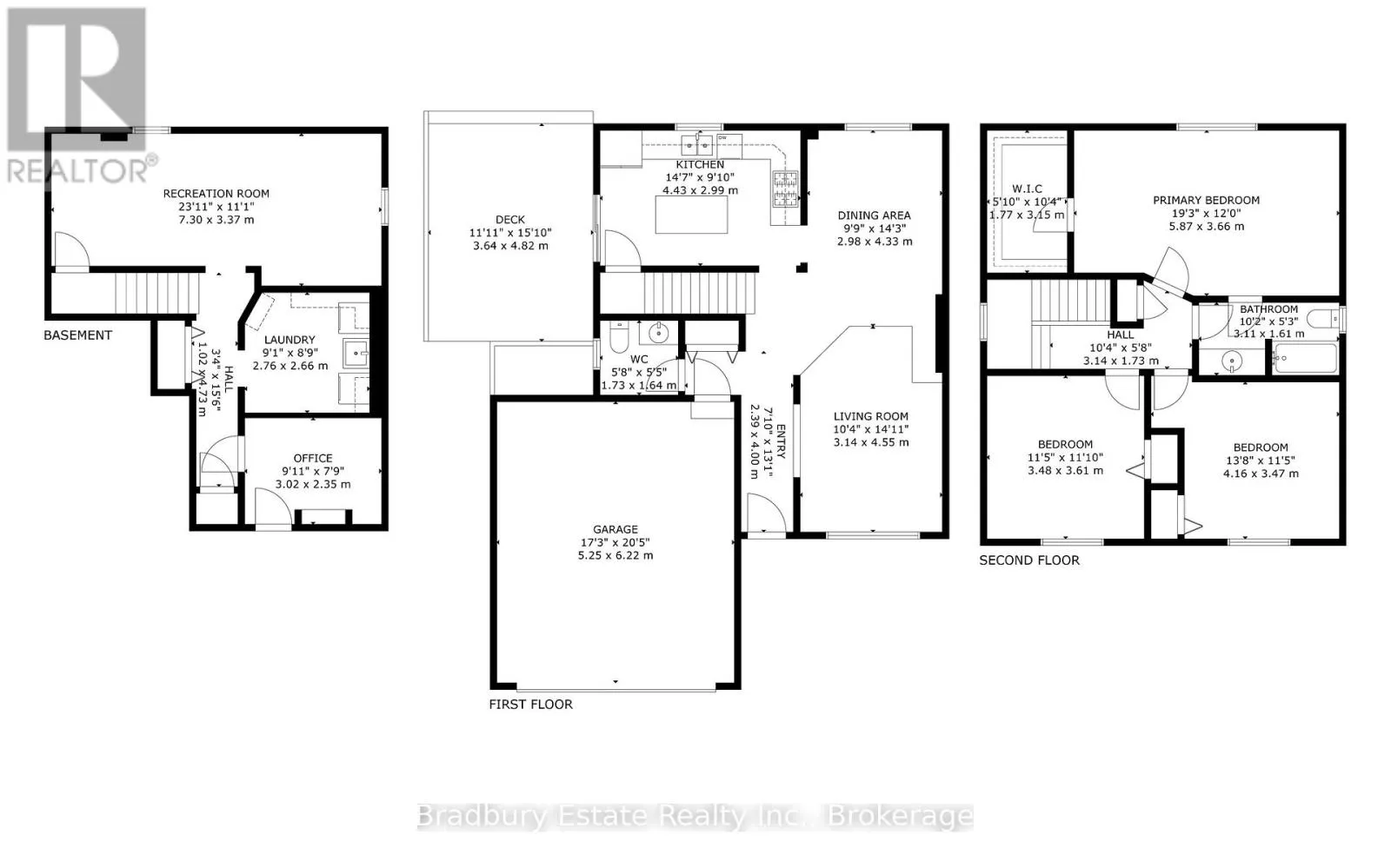
Room Layout

Primary Bedroom
Second level
5.89 m x 3.68 m
Bathroom
Second level
Measurements not available
Bedroom 2
Second level
3.63 m x 3.51 m
Bedroom 3
Second level
4.24 m x 3.43 m
Laundry room
Basement
2.76 m x 2.66 m
Family room
Basement
7.26 m x 3.38 m
Office
Basement
3.05 m x 2.39 m
Living room
Main level
4.32 m x 3 m
Dining room
Main level
4.37 m x 3.23 m
Kitchen
Main level
4.47 m x 3.07 m
Bathroom
Main level
Measurements not available

Location